Реализация объекта недвижимости приостановлена

Информация о коттедже

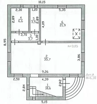
298.0 м2
Площадь
2
Этажность
12.0 cоток
Участок

Дополнительная информация

Дом продаётся вместе с участком
есть
Развернуть

Дом в Ленинградская область, Ломоносовский район, Виллозское городское ...

Предлагается к продаже благоустроенный современный дом для круглогодичного проживания. Общая площадь дома 200 кв.м. + терасса 100 кв.м. Земельный участок 12 соток - ровный, сухой, правильной формы. Коммуникации - электричество - 15 квт, отопление - электрический котел, горячая вода - бойлер, вода - скважина, канализация - септик. 1 этаж - просторная кухня-столовая, уютная гостиная, сан.узел, подсобная комната с техническим оборудованием для обслуживания дома, комната ( кабинет/ спальня). 2 этаж - 3 комнаты, сан.узел. Удобная локация - от КАДа 18 км, до Красного села 7 км. От ст. метро Кировский завод/ Юго-Западная ходит автобус 546, остановка рядом. Много интересных мест для отдыха и путешествий поблизости - озеро и парк в Дудергофе, усадьба Демидовых в Тайцах, лыжный курорт Туттори -парк ... Прямая продажа, два взрослых собственника. Звоните, подробности по телефону.

Читать полностью

    Реализация объекта недвижимости приостановлена

    Не нашли подходящего объявления?

    Оставьте заявку, и наши риэлторы подберут купить дом в районе Ломоносовского района

    (0)