420 000 000 Р 5 369 000 $ или 4 560 600

Информация о коттедже

970 м2
Площадь
3
Этажность
83 cоток
Участок

Дополнительная информация

Дом продаётся вместе с участком
есть
Развернуть
Агент
+7 (981) 021-88-96
Начать чат с агентом

Коттедж в Ленинградская область, Выборгский район, Первомайское с/пос, ...

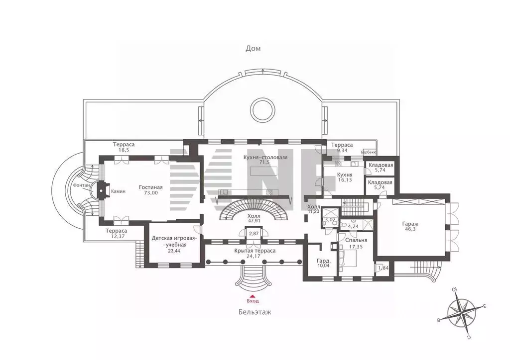
Лот: 9911906. В Курортном направлении, в охраняемом благоустроенном коттеджном посёлке на участке 83 сотки предлагается к продаже 2-этажный особняк площадью 970 кв. м.Первый этаж представлен просторной кухонно-столовой зоной, гостиной с камином, детской игровой, дополнительной кухней и комнатой для персонала, есть выход в гараж (на 2 автомобиля).Пространство второго этажа занимают мастер-спальная с кабинетом, гардеробом и ванной комнатой; 2 детские комнаты с собственными санузлами и гардеробными; гостевая спальня.В цоколе расположились SPA-зона с бассейном с выходом в зимний сад, множество кладовых, прачечная, массажный кабинет, комната отдыха.Дом оборудован всеми современными системами жизнеобеспечения и рассчитан на постоянное проживание, полностью меблирован.На территории выполнен ландшафтный дизайн, сделан профессиональный теннисный корт. Построен хозяйственный блок с квартирой для охраны и гаражом на 4 м/м. Отдельный банный комплекс. Все здания выполнены в едином архитектурном стиле.

Читать полностью

    Для того, чтобы купить 3-этажный коттедж по адресу: Первомайское, позвоните по телефону +7 (981) 021-88-96. Торопитесь! Объявление №50013974589 о продаже трехэтажного коттеджа опубликовано Вчера.

    Позвонить Написать
    420 000 000 Р5 369 000 $ или 4 560 600
    Агент
    +7 (981) 021-88-96
    Начать чат с агентом
    Похожие предложения
    Дом в Ленинградская область, Выборгский район, Первомайское с/пос, ... - Фото 1
    Дом в Ленинградская область, Выборгский район, Первомайское с/пос, ... - Фото 2
    3 этажа, общая площадь 926м², участок 83 сотки

    В закрытом поселке Малое Репино на функциональном участке в 83 сотки расположено харизматичное поместье в английском стиле. Фасады основного и гостевого домов выполнены в благородном красном цвете кирпича, истинный английский стиль подчеркнут строгими...
    • 3 эт.
    • 926 м²
    • 83 сот.
    420 000 000 Р
    Агент
    +7 (911) Показать номер
    Посмотреть контакты
    Дом в Ленинградская область, Выборгский район, Первомайское с/пос, ... - Фото 1
    Дом в Ленинградская область, Выборгский район, Первомайское с/пос, ... - Фото 2
    3 этажа, общая площадь 926м², участок 83 сотки

    В закрытом поселке Малое Репино на функциональном участке в 83 сотки расположено харизматичное поместье в английском стиле. Фасады основного и гостевого домов выполнены в благородном красном цвете кирпича, истинный английский стиль подчеркнут строгими...
    • 3 эт.
    • 926 м²
    • 83 сот.
    420 000 000 Р
    Агент
    +7 (911) Показать номер
    Посмотреть контакты
    Продается дом в КП Успенские дачи - Фото 1
    Продается дом в КП Успенские дачи - Фото 2
    общая площадь 1060м², участок 25 соток

    ID 4435 Современный пятиуровневый коттедж, расположенный на лесном участке с большим количеством роскошных вековых сосен в стародачном месте на Рублево-Успенском направлении. Поселок оснащен всеми инфраструктурными элементами, необходимыми для полноценного...
    • 1 060 м²
    • 25 сот.
    411 700 000 Р
    Агент
    +7 (495) Показать номер
    Посмотреть контакты
    Продается дом в КП Монтевиль - Фото 1
    Продается дом в КП Монтевиль - Фото 2
    общая площадь 700м², участок 16 соток

    ID 7435 Дом построен в современном стиле со строгими и лаконичными фасадами. Эксплуатируемая кровля (275,74 кв.м.) позволяет создать зону для отдыха на свежем воздухе. Общая площадь строений с учетом эксплуатируемой кровли и СПА составляет 941,02 кв.м....
    • 700 м²
    • 16 сот.
    428 000 000 Р
    Агент
    +7 (495) Показать номер
    Посмотреть контакты
    Продается дом в КП Павлово - Фото 1
    Продается дом в КП Павлово - Фото 2
    общая площадь 900м², участок 33 сотки

    ID 13716 Дом под отделку, площадью 900 кв. м., расположенный в КП Павлово всего в 15 км от МКАД по Новорижскому шоссе. В доме высокие потолки и большая площадь остекления, что создает ощущение простора, обеспечивают хорошую циркуляцию воздуха и естественное...
    • 900 м²
    • 33 сот.
    420 000 000 Р
    Агент
    +7 (495) Показать номер
    Посмотреть контакты

    Не нашли подходящего объявления?

    Оставьте заявку, и наши риэлторы подберут купить дом в районе Первомайского

    (0)