39 500 000 Р 507 500 $ или 434 600

Информация о коттедже

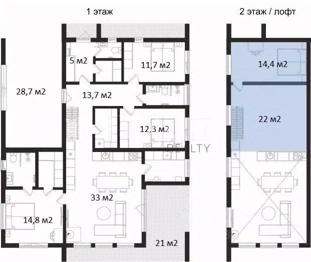
151 м2
Площадь
1
Этажность
10 cоток
Участок

Дополнительная информация

Дом продаётся вместе с участком
есть
Развернуть
Агент
+7 (981) 250-95-81
Начать чат с агентом

Коттедж, 151 м

ID: 312417В золотом треугольнике Выборгского района,на территории Русской Финляндии в 15 мин от ЗСД и 34 мин. от Васильевского острова в КП премиум-класса Репиноф ( Репино Парк 2 ) возведен дом премиум-класса с отделкой, ИПОТЕКА 6 СЕМЕЙНАЯ, ВОЗМОЖЕН ОБМЕН НА КВАРТИРУ В СПБ и ЛО Дом на монолитной плите, с системой теплого пола, стены и потолок сборные утепленные плиты заводского изготовления. Отделка соответствует фото. В данный момент возводится забор. ЗВОНИТЕ, ПИСЬМА НЕ ДОХОДЯТ. Всегда рады Вам

Читать полностью

    Для того, чтобы купить 1-этажный коттедж по адресу: Ленинское, коттеджный посёлок Ленинское, позвоните по телефону +7 (981) 250-95-81. Торопитесь! Объявление №50016922497 о продаже одноэтажного коттеджа опубликовано 05 апреля 2026.

    Позвонить Написать
    39 500 000 Р507 500 $ или 434 600
    Агент
    +7 (981) 250-95-81
    Начать чат с агентом
    Похожие предложения
    Дом в Ленинградская область, Выборгский район, Первомайское с/пос, ... - Фото 1
    Дом в Ленинградская область, Выборгский район, Первомайское с/пос, ... - Фото 2
    2 этажа, общая площадь 200м², участок 17 соток

    Уникальное предложение Два смежных участка с собственным выходом к озеру и эксклюзивными видовыми характеристиками на воду и купола Константино - Еленинского монастыря. Общая площадь двух участков 17 соток, есть кирпичный дом, который можно использовать...
    • 2 эт.
    • 200 м²
    • 17 сот.
    40 000 000 Р
    Агент
    +7 (981) Показать номер
    Посмотреть контакты
    Дом в Ленинградская область, Выборгский район, Первомайское с/пос, ... - Фото 1
    Дом в Ленинградская область, Выборгский район, Первомайское с/пос, ... - Фото 2
    1 этаж, общая площадь 130м², участок 16 соток

    Арт.Камерный коттеджный посёлок в 10 км от ЗСД — формат загородной жизни, в котором сохраняется связь с городом. Дорога до центра занимает около 35 минут, при этом само пространство выстроено вокруг природной панорамы участка, возможность переключаться...
    • 1 эт.
    • 130 м²
    • 16 сот.
    41 000 000 Р
    Агент
    +7 (981) Показать номер
    Посмотреть контакты
    Коттедж в Ленинградская область, Выборгский район, Рощинское городское ... - Фото 1
    Коттедж в Ленинградская область, Выборгский район, Рощинское городское ... - Фото 2
    2 этажа, общая площадь 275м², участок 14 соток

    Ленинградская область, Выборгский район, Рощинское городское поселениеГОТОВОЕ ДОМОВЛАДЕНИЕ НА БЕРЕГУ НАХИМОВСКОГО ОЗЕРА В КЛУБНОМ ПОСЕЛКЕ КП ПИРС НА 18 УЧАСТКОВО ДОМЕ: Общая площадь: 274,76 м;Полезная площадь: 201,85 м;Площадь первого этажа: 105,99 м;Площадь...
    • 2 эт.
    • 275 м²
    • 14 сот.
    41 000 000 Р
    Агент
    +7 (981) Показать номер
    Посмотреть контакты
    Дом в Ленинградская область, Выборгский район, Первомайское с/пос, ... - Фото 1
    Дом в Ленинградская область, Выборгский район, Первомайское с/пос, ... - Фото 2
    2 этажа, общая площадь 236м², участок 10 соток

    Арт.Предлагается к продаже капитальный кирпичный дом для большой семьи в закрытом клубном поселке Высокое Симагино . Это место, где начинается настоящая загородная жизнь: тишина соседнего леса, близость Симагинских озер и при этом полная приватность...
    • 2 эт.
    • 236 м²
    • 10 сот.
    39 000 000 Р
    Агент
    +7 (981) Показать номер
    Посмотреть контакты
    Дом в Ленинградская область, Выборгский район, Рощинское городское ... - Фото 1
    Дом в Ленинградская область, Выборгский район, Рощинское городское ... - Фото 2
    2 этажа, общая площадь 213м², участок 24 сотки

    Арт.В продаже уютный, комфортный и продуманный дом 213 м2, расположенный в благоустроенном коттеджном посёлке. Ровный и большой участок 25 соток расположен на границе с лесом Внимание - Дом подходит под льготную ипотеку Hoвый дом 213 м2 (156 м2 + 57 м2...
    • 2 эт.
    • 213 м²
    • 24 сот.
    39 700 000 Р
    Агент
    +7 (911) Показать номер
    Посмотреть контакты

    Не нашли подходящего объявления?

    Оставьте заявку, и наши риэлторы подберут купить дом в районе Ленинского

    (0)