Россия, Санкт-Петербург, пос. Парголово, Горское ш., 6соор1
10 848 000 Р 133 600 $ или 116 000

Информация об помещении

1
Этаж

Состояние и оснащение

Количество этажей
1
Развернуть
Агент
+7 (981) 899-74-35
Начать чат с агентом

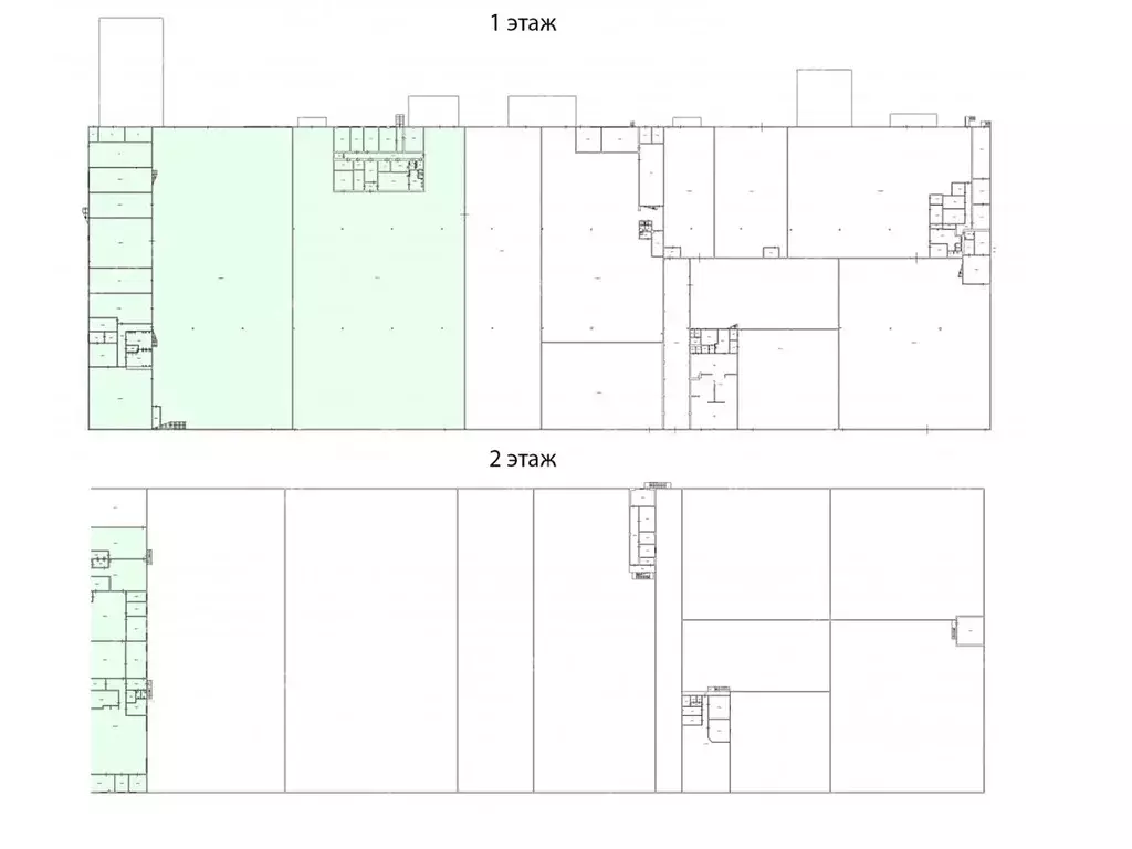
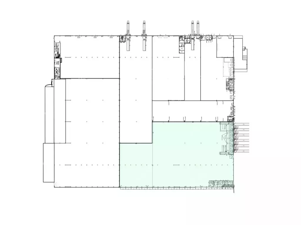
Склад в Санкт-Петербург пос. Парголово, Горское ш., 6соор1 (4520 м)

ПРЯМОЙ ОБЪЕКТ БЕЗ ПЕРЕПЛАТ. Агентам платим за клиента. Многофункциональный логистический комплекс Осиновая роща расположен на севере Санкт-Петербурга на пересечении Горского, Выборгского шоссе и КАД.Налоговая: 17. Лифты: Нет. Вентиляция: Приточно-вытяжная. Кондиционирование: Центральное. Безопасность: Круглосуточная охрана, Контроль доступа, Система пожаротушений, Видеонаблюдение. Парковка: Наземная. Описание помещения: Помещение состоит из четырех камер.Температурный режим от плюс 10 градусов до минус 18 градусов.Камеры оборудованы 5-и ярусными фронтальными стеллажами.Уровень пола 1,2 м.10 погрузочных доков.Планировка: открытая. Типовой ремонт. Высокие потолки. Высота потолка: 11м. Тип налогообложения: С НДС. Доп. параметры склада и производства: Отапливаемый, Холодильные камеры. Лот

Читать полностью
    Позвонить Написать
    10 848 000 Р133 600 $ или 116 000
    Агент
    +7 (981) 899-74-35
    Начать чат с агентом
    Похожие предложения
    Склад в Санкт-Петербург 1-й Верхний пер., 12 (8208 м) - Фото 1
    Склад в Санкт-Петербург 1-й Верхний пер., 12 (8208 м) - Фото 2
    Складское помещение 8 208 кв. м в Reforma Парнас от собственника. Объект скоро освободится. Успейте забронировать на выгодных условиях. Готовность ко въезду уточняется по запросу. Направление: Север. Шоссе: Новоприозерское. Расстояние от КАД: 2 км....
    • 1/1 эт.
    10 260 000 Р
    Агент
    +7 (981) Показать номер
    Посмотреть контакты
    Склад в Санкт-Петербург пос. Петро-Славянка, Софийская ул. (8676 м) - Фото 1
    Склад в Санкт-Петербург пос. Петро-Славянка, Софийская ул. (8676 м) - Фото 2
    Складское помещение 8 675.7 кв. м в Терминал 78 от собственника. Объект на стадии активного строительства, готовность ко въезду уточняется по запросу. Направление: Юг. Шоссе: Софийская ул. Расстояние от КАД: 3.5 км. Характеристики:- Класс: A; - Ограничения...
    • 1/1 эт.
    11 321 789 Р
    Агент
    +7 (981) Показать номер
    Посмотреть контакты
    Склад в Санкт-Петербург пос. Шушары, Московское ш., 177Б (9132 м) - Фото 1
    Склад в Санкт-Петербург пос. Шушары, Московское ш., 177Б (9132 м) - Фото 2
    Складское помещение 9 131.9 кв. м в АКМ Лоджистикс от собственника. Объект скоро освободится. Успейте забронировать на выгодных условиях. Готовность ко въезду уточняется по запросу. Направление: Юг. Шоссе: Московское. Расстояние от КАД: 7 км. Характеристики:-...
    • 1/1 эт.
    11 305 293 Р
    Агент
    +7 (981) Показать номер
    Посмотреть контакты
    Склад в Санкт-Петербург Мебельная ул., 5Б (8759 м) - Фото 1
    Склад в Санкт-Петербург Мебельная ул., 5Б (8759 м) - Фото 2
    Складское помещение 8 758.5 кв. м в Мебельная 5 от собственника. Объект скоро освободится. Успейте забронировать на выгодных условиях. Готовность ко въезду уточняется по запросу. Направление: Север. Шоссе: Приморское. Расстояние от КАД: 11.7 км. Характеристики:-...
    • 1/1 эт.
    10 510 200 Р
    Агент
    +7 (981) Показать номер
    Посмотреть контакты
    Склад в Санкт-Петербург 1-й Верхний пер., 12 (8208 м) - Фото 1
    Склад в Санкт-Петербург 1-й Верхний пер., 12 (8208 м) - Фото 2
    Аренда сухого склада в комплексе класса В. Готовность к въезду уточняется по запросу.Склад расположен в северном направлении. Выезд на пр. Культуры. Расстояние от КАД - 2 км.Идеальная локация - промзона Парнас - самая крупная промышленная зона на севере...
    • 1/1 эт.
    10 260 000 Р
    Агент
    +7 (981) Показать номер
    Посмотреть контакты

    Не нашли подходящего объявления?

    Оставьте заявку, и наши риэлторы подберут склад в районе Санкт-Петербурга

    (0)