Россия, Санкт-Петербург, пос. Петро-Славянка
11 321 789 Р 139 800 $ или 120 500

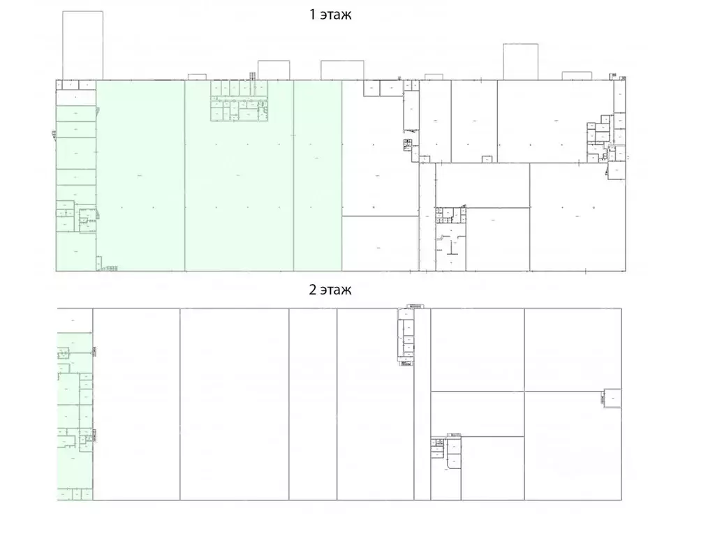
Информация об помещении

1
Этаж

Состояние и оснащение

Количество этажей
1
Развернуть
Агент
+7 (981) 145-24-02
Начать чат с агентом

Склад в Санкт-Петербург пос. Петро-Славянка, Софийская ул. (8676 м)

Складское помещение 8 675.7 кв. м в Терминал 78 от собственника. Объект на стадии активного строительства, готовность ко въезду уточняется по запросу. Направление: Юг. Шоссе: Софийская ул. Расстояние от КАД: 3.5 км. Характеристики:- Класс: A; - Ворота: Доки; - Ограничения по электроэнергии: 1.7 мВт; - Тип склада: Сухой склад; - Высота потолков: 12.4 м; - Нагрузка на пол: 10 т/ кв.м; - Система пожаротушения: Внешние гидранты и внутренние пожарные краны, Спринклерная; - Тип пола: Полы с антипылевым покрытием; - Пожарная сигнализация: Да; - Уровень пола: 1.2 м; - Шаг колонн: 12x24 м. Арендная ставка: 1 305./кв. м в месяц. Финансовые условия: - В стоимость включено: OPEX, НДС; - Оплачивается отдельно: Коммунальные услуги; - Налог: Включая НДС. Без комиссии и скрытых платежей. Оперативно организуем просмотр и предоставим необходимую информацию. Точное местоположение объекта можно найти по данным координатам: 59.807947,30.468859 ID = c_1765619

Читать полностью
    Позвонить Написать
    11 321 789 Р139 800 $ или 120 500
    Агент
    +7 (981) 145-24-02
    Начать чат с агентом
    Похожие предложения
    Склад в Санкт-Петербург пос. Шушары, Московское ш., 177Б (9132 м) - Фото 1
    Склад в Санкт-Петербург пос. Шушары, Московское ш., 177Б (9132 м) - Фото 2
    Складское помещение 9 131.9 кв. м в АКМ Лоджистикс от собственника. Объект скоро освободится. Успейте забронировать на выгодных условиях. Готовность ко въезду уточняется по запросу. Направление: Юг. Шоссе: Московское. Расстояние от КАД: 7 км. Характеристики:-...
    • 1/1 эт.
    11 305 293 Р
    Агент
    +7 (981) Показать номер
    Посмотреть контакты
    Склад в Санкт-Петербург 1-й Верхний пер., 12 (8208 м) - Фото 1
    Склад в Санкт-Петербург 1-й Верхний пер., 12 (8208 м) - Фото 2
    ПОКАЗ В УДОБНОЕ ВРЕМЯ. Агентам платим за клиента. Офисно-складской комплекс вблизи КАД и Суздальского проспекта в Выборгском районе.Здание возведено на участке между Кольцевой дорогой и Суздальским проспектом.Налоговая: 17. Лифты: Есть. Вентиляция:...
    • 1/5 эт.
    10 260 000 Р
    Агент
    +7 (981) Показать номер
    Посмотреть контакты
    Склад в Санкт-Петербург пос. Парголово, Горское ш., 6соор1 (4520 м) - Фото 1
    Склад в Санкт-Петербург пос. Парголово, Горское ш., 6соор1 (4520 м) - Фото 2
    ПОКАЗ В УДОБНОЕ ВРЕМЯ. Агентам платим за клиента. Многофункциональный логистический комплекс Осиновая роща расположен на севере Санкт-Петербурга на пересечении Горского, Выборгского шоссе и КАД.Налоговая: 17. Лифты: Нет. Вентиляция: Приточно-вытяжная....
    • 1/1 эт.
    10 848 000 Р
    Агент
    +7 (981) Показать номер
    Посмотреть контакты
    Склад в Ленинградская область, Ломоносовский район, Виллозское ... - Фото 1
    Склад в Ленинградская область, Ломоносовский район, Виллозское ... - Фото 2
    Аренда сухого склада в комплексе класса А. Площади указаны с учетом офисных помещений и мезонина.Складской комплекс расположен в южном направлении. Выезд на Волхонское шоссе. Расстояние от КАД - 2 км. Технические параметры:- класс: А- рабочая высота потолков:...
    • 1/1 эт.
    10 621 000 Р
    Агент
    +7 (981) Показать номер
    Посмотреть контакты
    Склад в Санкт-Петербург Мебельная ул., 5Б (8759 м) - Фото 1
    Склад в Санкт-Петербург Мебельная ул., 5Б (8759 м) - Фото 2
    Складское помещение 8 758.5 кв. м в Мебельная 5 от собственника. Объект скоро освободится. Успейте забронировать на выгодных условиях. Готовность ко въезду уточняется по запросу. Направление: Север. Шоссе: Приморское. Расстояние от КАД: 11.7 км. Характеристики:-...
    • 1/1 эт.
    10 510 200 Р
    Агент
    +7 (981) Показать номер
    Посмотреть контакты

    Не нашли подходящего объявления?

    Оставьте заявку, и наши риэлторы подберут склад в районе Санкт-Петербурга

    (0)