Россия, Санкт-Петербург, пос. Шушары, просп. Новгородский, 8

Реализация объекта недвижимости приостановлена

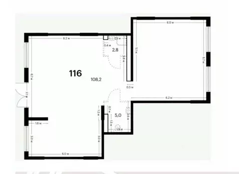
Информация об помещении

1
Этаж

Состояние и оснащение

Количество этажей
24
Развернуть

Помещение свободного назначения в Санкт-Петербург пос. Шушары, просп. ...

ID: 832273Сдается помещение свободного назначения под любой вид деятельности Помещение имеет два отдельных входа и два санузла, можно использовать под двух арендаторов В 2026 году напротив входа в помещение будет располагаться трамвайная линия, планируется завершение строительства путей скоростного трамвая из Купчино Мощность 15кВт, есть возможность увеличить.Звоните,записывайтесь на просмотр.

Читать полностью

    Реализация объекта недвижимости приостановлена

    Не нашли подходящего объявления?

    Оставьте заявку, и наши риэлторы подберут псн в районе Санкт-Петербурга

    (0)