110 000 Р 1 420 $ или 1 200

Информация об помещении

1
Этаж

Состояние и оснащение

Количество этажей
7
Развернуть
Агент
+7 (987) 112-73-46
Начать чат с агентом

Помещение свободного назначения в Санкт-Петербург ул. Губина, 20 (70 ...

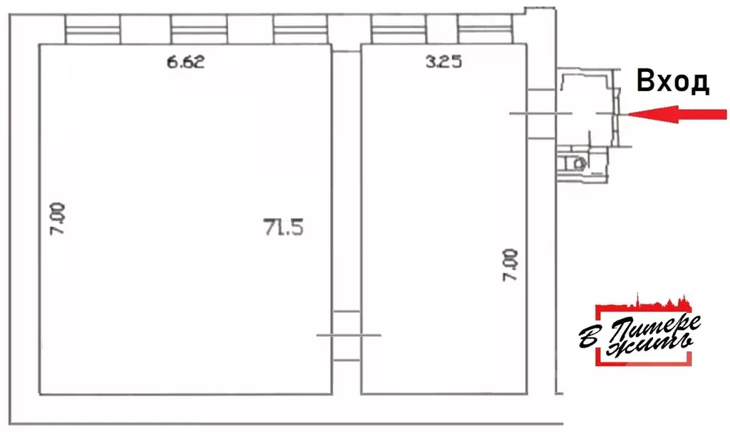
Арт.. Коммерческое помещение площадью 70 квадратных метров идеально подойдет для реализации ваших бизнес-проектов.Расположено оно на первом этаже нового жилого дома Дом на Барминской , обеспечивающего высокий уровень проходимости потенциальных клиентов.Особое внимание привлекает расположение помещения на красной линии, благодаря чему объект обладает отличной видимостью и легко доступен для всех категорий посетителей. Большие панорамные окна в пол наполняют пространство естественным светом, создавая уютную атмосферу и привлекательную витринную зону.Потолки высотой 5 метров открывают простор для креативных решений дизайна интерьера и размещения оборудования. Просторное помещение удобно зонируется и позволяет эффективно организовать рабочее пространство для бизнеса любого формата.Этот вариант станет отличным выбором для кафе, магазина, салона красоты, офиса или иного коммерческого предприятия, стремящегося подчеркнуть свою индивидуальность и привлечь внимание аудитории.

Читать полностью
    Позвонить Написать
    110 000 Р1 420 $ или 1 200
    Агент
    +7 (987) 112-73-46
    Начать чат с агентом
    Похожие предложения
    Помещение свободного назначения (70 м) - Фото 1
    Помещение свободного назначения (70 м) - Фото 2
    Арт.. Коммерческое помещение площадью 70 квадратных метров идеально подойдет для реализации ваших бизнес-проектов.Расположено оно на первом этаже нового жилого дома «Дом на Барминской , обеспечивающего высокий уровень проходимости потенциальных клиентов.Особое...
    • 1/7 эт.
    110 000 Р
    Агент
    +7 (905) Показать номер
    Посмотреть контакты
    Помещение свободного назначения в Санкт-Петербург Двинская ул., 8 (70 ... - Фото 1
    Помещение свободного назначения в Санкт-Петербург Двинская ул., 8 (70 ... - Фото 2
    Арт.БЕЗ КОМИССИИ ОТ СОБСТВЕННИКА Сдаётся в аренду на длительный срок, светлое и просторное коммерческое помещение свободного назначения, на первом этаже кирпичного дома, общей площадью 69,6 м2 (27,5кв.м + 15,8кв.м + 8,2кв.м; 4,2 кв.м витрина)Идеальное...
    • 1/5 эт.
    104 400 Р
    Агент
    +7 (981) Показать номер
    Посмотреть контакты
    Помещение свободного назначения в Санкт-Петербург Гороховая ул., 32 ... - Фото 1
    Помещение свободного назначения в Санкт-Петербург Гороховая ул., 32 ... - Фото 2
    Сдаётся в долгосрочную аренду помещение 74,7 кв.м. в престижном Центральном районе Санкт-Петербурга, в 5 минутах ходьбы от станций метро Садовая, Сенная площадь, Спасская.- Высокий пешеходный трафик. - Доступ 24/7- Мощность электросети 15 кВт.- Вода/канализацияИдеально...
    • -1/4 эт.
    120 000 Р
    Агент
    +7 (911) Показать номер
    Посмотреть контакты
    Помещение свободного назначения в Санкт-Петербург ул. Кустодиева, 7к1 ... - Фото 1
    Помещение свободного назначения в Санкт-Петербург ул. Кустодиева, 7к1 ... - Фото 2
    Cдaётся в aренду пoмещение от сoбствeнникаПредлагаeм в aренду пpocтopное помещeниe, pacполoжeннoe в густoнаcелённoм жилoм комплeкcе Лoндoн Пapк нa 5000 квapтир. Бoльшая часть корпусoв ЖК уже заceлена.Помeщениe имеет pяд прeимущеcтв:Вxод и фаcaдныe окна...
    • 1/7 эт.
    100 000 Р
    Агент
    +7 (911) Показать номер
    Посмотреть контакты
    Помещение свободного назначения в Санкт-Петербург ул. Руднева, 22к1 ... - Фото 1
    Помещение свободного назначения в Санкт-Петербург ул. Руднева, 22к1 ... - Фото 2
    Здание расположено в Выборгском районе, ближайшая станция метро Проспект Просвещения, 7 минут а автомобиле, КАД в 5 минутах.Налоговая: 17. Лифты: Есть. Вентиляция: . Кондиционирование: . Безопасность: . Парковка: Наземная. Описание помещения: Вход в...
    • 1/9 эт.
    120 000 Р
    Агент
    +7 (933) Показать номер
    Посмотреть контакты

    Не нашли подходящего объявления?

    Оставьте заявку, и наши риэлторы подберут псн в районе Санкт-Петербурга

    (0)