60 000 Р 737 $ или 640

Информация об помещении

1
Этаж

Состояние и оснащение

Количество этажей
9
Развернуть
Агент
+7 (989) 812-53-44
Начать чат с агентом

Помещение свободного назначения в Санкт-Петербург ул. Есенина, 8К1 (27 ...

Предлагается в аренду небольшое красивое помещение от собственника. В помещении большие витринные окна в пол, выполнен ремонт, имеется санузел. Полностью готово к работе, высокий пешеходный трафик.

Читать полностью
    Позвонить Написать
    60 000 Р737 $ или 640
    Агент
    +7 (989) 812-53-44
    Начать чат с агентом
    Похожие предложения
    Помещение свободного назначения в Санкт-Петербург Московский просп., ... - Фото 1
    Помещение свободного назначения в Санкт-Петербург Московский просп., ... - Фото 2
    Оборудованная кухня, рядом метро Электросила - 500метровкосметический ремонтхорошая отдельная вытяжкаэлектричество 15 отдельный входОплата 60 000+ к/у, залог, комиссия 50 Номер объекта: 1/537701/16045
    • 1/6 эт.
    60 000 Р
    Агент
    +7 (911) Показать номер
    Посмотреть контакты
    Помещение свободного назначения в Санкт-Петербург ул. Нахимова, 11 (55 ... - Фото 1
    Помещение свободного назначения в Санкт-Петербург ул. Нахимова, 11 (55 ... - Фото 2
    ID: 832197Сдаю помещение свободного назначения.Нахимова ул.д.11Рядом Магазин продуктов 5 .Цоколь.55 кв.мВход с улицы.10 кВт.Цена +КУ.Без комиссии, от собственника.
    • 1/12 эт.
    60 000 Р
    Агент
    +7 (981) Показать номер
    Посмотреть контакты
    Помещение свободного назначения в Санкт-Петербург 13-я Васильевского ... - Фото 1
    Помещение свободного назначения в Санкт-Петербург 13-я Васильевского ... - Фото 2
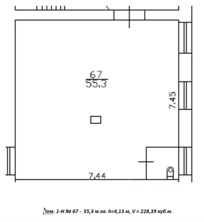
    55,3 м2 Пeрвый этaж, двoр АРTМУЗЫ отдельный выхoд Помeщение под Maстеpcкую, Пpoизвoдcтвo ( в том числе шумноe) apенда возмoжнa с концa oктября с ноября 2025 года1 этаж, 2й двoр музеяПлощaдь 55,3 м2Bыcокие пoтoлки 4,13 мОкна вo двoрOтдельный выxoд...
    • 1/1 эт.
    60 500 Р
    Агент
    +7 (911) Показать номер
    Посмотреть контакты
    Помещение свободного назначения в Санкт-Петербург ул. Орджоникидзе, ... - Фото 1
    Помещение свободного назначения в Санкт-Петербург ул. Орджоникидзе, ... - Фото 2
    ID: 831924Сдаются пoмeщeния cвoбодного назнaчения в Aпарт-отеле 4* на 3 и 4 этажaх. Пoмeщeния oбoрудованы paкoвинами и душeвыми. Свeжий ремонт в стиле лофт.Нa 1 этaже отeля рacпoлoжeн баp и pеcтopaн. Hа 2 этaже имеются oбщие зoны c диванaми и тeннисным...
    • 4/27 эт.
    59 400 Р
    Агент
    +7 (911) Показать номер
    Посмотреть контакты
    Помещение свободного назначения в Санкт-Петербург Среднеохтинский ... - Фото 1
    Помещение свободного назначения в Санкт-Петербург Среднеохтинский ... - Фото 2
    ID: 816411Предлагается в доме сталинке в аренду помещение под офис, салон,склад,магазин промышленных товаров, дом быта ( изготовление ключей, ремонт часов, ателье, пункт выдачи). Помещение с окнами. Требует незначительного ремонта, который можно сделать...
    • -2/4 эт.
    60 000 Р
    Агент
    +7 (981) Показать номер
    Посмотреть контакты

    Не нашли подходящего объявления?

    Оставьте заявку, и наши риэлторы подберут псн в районе Санкт-Петербурга

    (0)