60 000 Р 764 $ или 654

Информация об помещении

подвал
Этаж

Состояние и оснащение

Количество этажей
4
Развернуть
Агент
+7 (981) 810-93-23
Начать чат с агентом

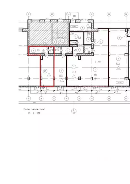
Помещение свободного назначения в Санкт-Петербург Среднеохтинский ...

ID: 816411Предлагается в доме сталинке в аренду помещение под офис, салон,склад,магазин промышленных товаров, дом быта ( изготовление ключей, ремонт часов, ателье, пункт выдачи). Помещение с окнами. Требует незначительного ремонта, который можно сделать за счет арендной платы. Вход с улицы. Со стороны двора есть окно для разгрузки товаров.

Читать полностью
    Позвонить Написать
    60 000 Р764 $ или 654
    Агент
    +7 (981) 810-93-23
    Начать чат с агентом
    Похожие предложения
    Помещение свободного назначения в Санкт-Петербург просп. Шаумяна, 14 ... - Фото 1
    Помещение свободного назначения в Санкт-Петербург просп. Шаумяна, 14 ... - Фото 2
    Без комиссии Предлагаем в аренду коммерческие помещения свободного назначения от 24.1 до 398 кв. м. в торговом комплексе премиум-класса ALTERHUB,асположенного на 1 этаже ЖК бизнес-класса Alter . ЖК сдан и заселён. Большой трафик. Через торговый центр...
    • 1/12 эт.
    60 250 Р
    Агент
    +7 (911) Показать номер
    Посмотреть контакты
    Помещение свободного назначения в Санкт-Петербург Лиговский просп., ... - Фото 1
    Помещение свободного назначения в Санкт-Петербург Лиговский просп., ... - Фото 2
    Арт.Сдается коммерческое помещение, первый этаж в ЖК Первый квартал Лиговский Сити от Glorax Development Лиговский пр. д.271 высокий трафик, обусловлен расположением на пути к единственной парковке комплекса. 1200 квартир полностью заселены вашими потенциальными...
    • 1/12 эт.
    60 060 Р
    Агент
    +7 (981) Показать номер
    Посмотреть контакты
    Помещение свободного назначения в Санкт-Петербург пер. Ногина, 3 (72 ... - Фото 1
    Помещение свободного назначения в Санкт-Петербург пер. Ногина, 3 (72 ... - Фото 2
    Арт.Идеальное пространство ждет своего героя Представляем вашему вниманию просторное помещение площадью 72 кв.м на втором этаже уютного двухэтажного жилого дома в оживленном районе города, рядом со станцией метро Елизаровская. Просторное светлое помещение...
    • 2/2 эт.
    60 000 Р
    Агент
    +7 (981) Показать номер
    Посмотреть контакты
    Помещение свободного назначения в Санкт-Петербург Московский просп., ... - Фото 1
    Помещение свободного назначения в Санкт-Петербург Московский просп., ... - Фото 2
    Сдается в аренду на длительный срок светлое и просторное коммерческое помещение в современном жилом комплексе комфорт класса ЖК Граф Орлов , помещение свободного назначения общей площадью 25,2м2 в помещении выполнен современный и качественный евро ремонт,...
    • 2/7 эт.
    60 000 Р
    Агент
    +7 (981) Показать номер
    Посмотреть контакты
    Помещение свободного назначения в Санкт-Петербург пос. Шушары, ул. ... - Фото 1
    Помещение свободного назначения в Санкт-Петербург пос. Шушары, ул. ... - Фото 2
    Универсальное торговое помещение в длительную аренду Без комиссии ________________ ХАРАКТЕРИСТИКА КВАРТИРЫ: • Малоэтажный ЖК ЮгТаун от строительной компании КВС ; • Дом сдан; • Площадь помещения: 37,2 м2. • 1 этаж из 5; • Эргономичная планировка,...
    • 1/5 эт.
    60 000 Р
    Агент
    +7 (989) Показать номер
    Посмотреть контакты

    Не нашли подходящего объявления?

    Оставьте заявку, и наши риэлторы подберут псн в районе Санкт-Петербурга

    (0)