972 500 Р 12 630 $ или 10 800

Информация о помещении и здании

3
Этаж
7
Этажность
Развернуть
Агент
+7 (911) 788-67-34
Начать чат с агентом

Офис в Санкт-Петербург Петроградская наб., 20 (389 м)

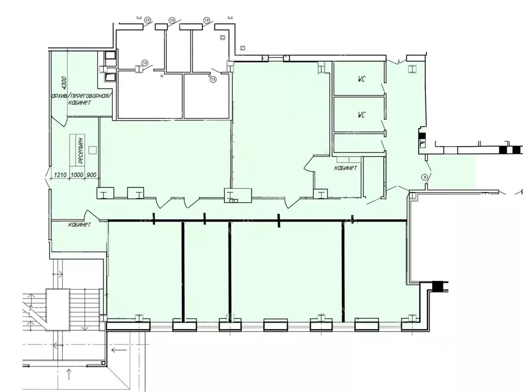
Сдается в аренду помещение в бизнес-центре класса А с хорошей транспортной доступностью. Отличное решение для представительского офиса.Бизнес-центр расположен в Петроградском районе и находится в 15 минутах от метро Горьковская. Здание реконструировано в 2006 году, оснащено всеми необходимыми инженерными системами, в том числе приточно-вытяжной вентиляцией и кодиционированием.Адрес: Санкт-Петербург, Петроградская наб. д. 20, лит. А.Ближайшее метро: Горьковская.Арендная ставка:уб/м2 в мес.включая НДС, коммунальные услуги, OPEXотдельно оплачиваются электричество, уборкаХарактеристики помещения:Планировка: кабинетнаяТелекоммуникации: интернет, wi-fi и телефонная линияВентиляция: приточно-вытяжнаяКондиционирование: центральноеХарактеристики бизнес-центра:Общая площадь: 19 771 м2Этажность: 7Парковка: 72 машино-места по в мес.Пассажирские лифты: 4 шт.Пропускная система: естьИнфраструктура: магазины, кафе, ресторан, конференц-зал, столовая, центральная рецепция, фитнес-клубДоговор аренды заключается напрямую с собственником бизнес-центра.Какие-либо дополнительные проценты и комиссии отсутствуют.Звоните, мы покажем помещение в любое удобное для вас время.

Читать полностью
    Позвонить Написать
    972 500 Р12 630 $ или 10 800
    Агент
    +7 (911) 788-67-34
    Начать чат с агентом
    Похожие предложения
    Офис в Санкт-Петербург Петроградская наб., 20 (389 м) - Фото 1
    Офис в Санкт-Петербург Петроградская наб., 20 (389 м) - Фото 2
    3-й этаж, всего 7 этажей

    Предлагается в аренду офисный блок, с видом на внутреннее пространство Атриума Делового центра. Площадь - 388.5 м.кв.Третий этаж. Два независимых входа из трех лифтовых зон. Смешанная планировка, зона Open space , кабинеты и переговорные. В офисе...
    • 3/7 эт.
    971 250 Р
    Агент
    +7 (911) Показать номер
    Посмотреть контакты
    Офис в Санкт-Петербург Петроградская наб., 20 (388 м) - Фото 1
    Офис в Санкт-Петербург Петроградская наб., 20 (388 м) - Фото 2
    3-й этаж, всего 7 этажей

    Офисное помещение в БЦ VEDAHOUSE (класс А): 388,5 м, 3 этаж- Площадь: 388,5 м.- Готовность к въезду: февраль 2026 года.- Помещение выполнено с качественной чистовой отделкой и сочетает несколько зон:open space;кабинеты;переговорные;кухня;с/у- Два независимых...
    • 3/7 эт.
    970 000 Р
    Агент
    +7 (911) Показать номер
    Посмотреть контакты
    Офис в Санкт-Петербург Петроградская наб., 20 (389 м) - Фото 1
    Офис в Санкт-Петербург Петроградская наб., 20 (389 м) - Фото 2
    3-й этаж, всего 7 этажей

    Просторный офис с собственной кухней и санузлами, доступ 24/7; прямая аренда, без комиссии.• Площадь: 388,5 м, 3 этаж, класс А • Планировка: open space, кабинеты, переговорные, кухня, с/у• Состояние: современный ремонт • Парковка: открытая наземная, 25...
    • 3/7 эт.
    971 250 Р
    Агент
    +7 (911) Показать номер
    Посмотреть контакты
    Офис в Санкт-Петербург Петроградская наб., 20 (389 м) - Фото 1
    Офис в Санкт-Петербург Петроградская наб., 20 (389 м) - Фото 2
    3-й этаж, всего 7 этажей

    Офисное помещение 388.5 кв. м в бизнес-центре VEDAHOUSE.Район: Петроградский. Ближайшие станции метро: Горьковская, Площадь Ленина. Характеристики:- Класс: A; - Арендопригодная площадь: 14413.4; - Код налоговой: 13; - Размер типового этажа: 2000; - Наличие...
    • 3/7 эт.
    971 250 Р
    Агент
    +7 (981) Показать номер
    Посмотреть контакты
    Офис в Санкт-Петербург ул. Руставели, 31А (485 м) - Фото 1
    Офис в Санкт-Петербург ул. Руставели, 31А (485 м) - Фото 2
    2-й этаж, всего 2 этажа

    Двухэтажное здание бизнес-класса расположено в Калининском районе на улице Руставели. Объект находится на первой линии с удобным выездом на основные магистрали города и съезд на Кольцевую автодорогу.Налоговая: 18. Лифты: Нет. Вентиляция: Приточно-вытяжная....
    • 2/2 эт.
    970 000 Р
    Агент
    +7 (933) Показать номер
    Посмотреть контакты

    Не нашли подходящего объявления?

    Оставьте заявку, и наши риэлторы подберут офис в районе Санкт-Петербурга

    (0)