56 664 000 Р 697 400 $ или 607 500

Информация об помещении

1
Этаж

Состояние и оснащение

Количество этажей
2
Развернуть
Агент
+7 (911) 277-52-58
Начать чат с агентом

Помещение свободного назначения в Санкт-Петербург Литовская ул., 16 ...

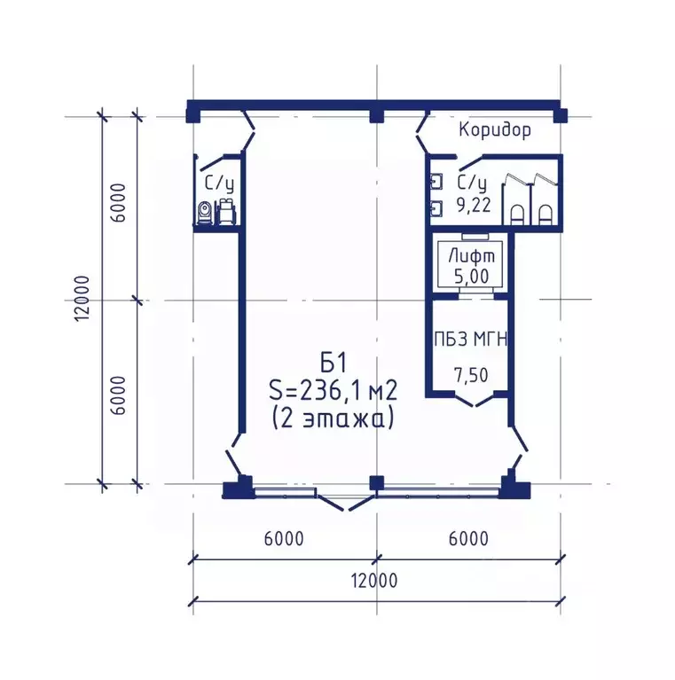
Продажа двухуровневого торгово-коммерческого помещения 236,1 м в технопарке L618 (здание 2.1).Уникальный формат: помещение занимает два уровня и предоставляет максимальную гибкость для организации бизнеса — производства, торговли или сервиса. ЛокацияСанкт-Петербург, ул. Литовская, д.16. Активно развивающаяся деловая локация. 15 минут до метро пешком. О проектеТехнопарк L618 — современный индустриально-деловой комплекс с развитой внутренней инфраструктурой. Монолитный каркас, панорамное остекление, грузопассажирские лифты, благоустроенная территория.Центральным архитектурным элементом станет арт-объект Песочные часы со смотровой площадкой. Параметры помещения- Площадь помещения — 236,1 м, два уровня, вход с 1 этажа.- Высота потолков — 4,5 м, нагрузка на пол — 3 т/м.- Двухуровневый формат открывает широкие возможности для зонирования и организации уникального пространства. Подходит для различных видов бизнеса- флагманский шоурум;- ресторан или кафе;- фитнес-клуб;- учебный центр;- производство с выставочным залом. Инвестиционный потенциалДвухуровневые форматы пользуются высоким спросом у арендаторов и формируют устойчивый арендный поток. Для комплекса L618 прогнозируется рост стоимости до 30 к вводу.Срок ввода — 2 квартал 2027 года. Обращайтесь — подберем оптимальный вариант под ваш бизнес или инвестиционные задачи.

Читать полностью
    Позвонить Написать
    56 664 000 Р697 400 $ или 607 500
    Агент
    +7 (911) 277-52-58
    Начать чат с агентом
    Похожие предложения
    Помещение свободного назначения в Санкт-Петербург Литовская ул., 16 ... - Фото 1
    Помещение свободного назначения в Санкт-Петербург Литовская ул., 16 ... - Фото 2
    РАБОТАЕМ С АГЕНТАМИ. РЕНТАВИК— участник ассоциации КОКОН. На территории 3,5 га запланировано строительство технопарка общей площадью 25 313 м2, начало строительства-май 2025 года, ввод в эксплуатацию 2 квартал 2026 года. Комплекс будет включать в себя...
    • 2/3 эт.
    56 500 000 Р
    Агент
    +7 (933) Показать номер
    Посмотреть контакты
    Помещение свободного назначения в Санкт-Петербург наб. Реки Фонтанки, ... - Фото 1
    Помещение свободного назначения в Санкт-Петербург наб. Реки Фонтанки, ... - Фото 2
    Арт.Вашему вниманию предлагается коммерческое помещение, превращенное талантливыми дизайнерами в 5 независимых апартаментов, располагающих индивидуальным санузлом, просторной душевой и полноценной кухней. Интересный , необычный дизайн, качественный ремонт,...
    • 2/3 эт.
    58 000 000 Р
    Агент
    +7 (911) Показать номер
    Посмотреть контакты
    Помещение свободного назначения в Санкт-Петербург Белоостровская ул., ... - Фото 1
    Помещение свободного назначения в Санкт-Петербург Белоостровская ул., ... - Фото 2
    Продается помещение свободного назначения 3, по адресу г. Санкт-Петербург, Приморский район, ул. Белоостровская, д. 28, лит. А, корпус ЖК ДОМИНО - встроенные помещения в ДОМИНО на 1 этаже, с площадью 142.6 м2.
    • 1/1 эт.
    57 989 618 Р
    Агент
    +7 (958) Показать номер
    Посмотреть контакты
    Помещение свободного назначения в Санкт-Петербург бул. Измайловский, ... - Фото 1
    Продается помещение, расположенное в здании в апарт-отеле Well. Помещение с большими витринными окнами и отдельным входом. Отлично подойдет для бизнеса с высоким клиентским потоком: магазин, кофейня, салон красоты, аптека, шоурум, офис продаж, пункт выдачи...
    • 1/10 эт.
    57 020 000 Р
    Агент
    +7 (911) Показать номер
    Посмотреть контакты
    Помещение свободного назначения в Санкт-Петербург Московский просп., ... - Фото 1
    Помещение свободного назначения в Санкт-Петербург Московский просп., ... - Фото 2
    Продаётся коммерческое помещение свободного назначения площадь - 224,9кв.м;высокий первый этаж жилого дома, Сталинка потолки 3,20 м;2 входа: отдельный вход с фасада и со стороны двора;возможность парковки, бесплатно, в шаговой доступности;все коммуникации...
    • 1/6 эт.
    58 000 000 Р
    Агент
    +7 (989) Показать номер
    Посмотреть контакты

    Не нашли подходящего объявления?

    Оставьте заявку, и наши риэлторы подберут псн в районе Санкт-Петербурга

    (0)