58 000 000 Р 761 600 $ или 642 500

Информация об помещении

2
Этаж

Состояние и оснащение

Количество этажей
3
Развернуть
Агент
+7 (911) 277-01-42
Начать чат с агентом

Помещение свободного назначения в Санкт-Петербург наб. Реки Фонтанки, ...

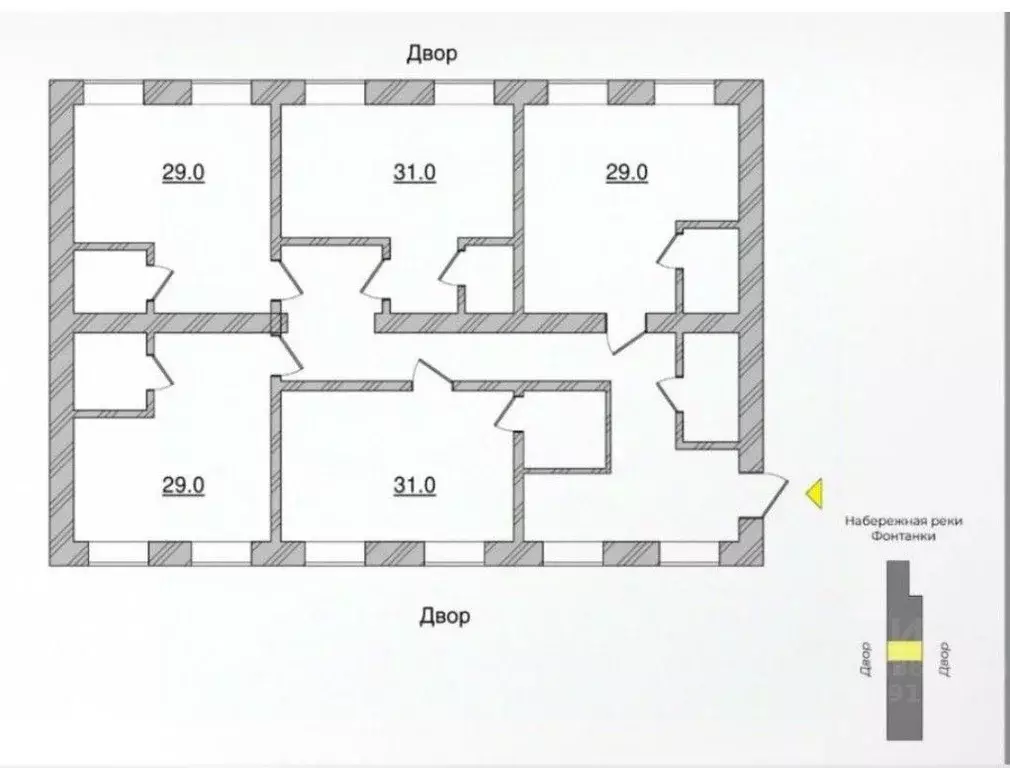
Арт.Вашему вниманию предлагается коммерческое помещение, превращенное талантливыми дизайнерами в 5 независимых апартаментов, располагающих индивидуальным санузлом, просторной душевой и полноценной кухней. Интересный , необычный дизайн, качественный ремонт, внимание к деталям, комфорт и уединение.Каждый апартамент имеет свой характер и атмосферу. Вы попадаете в мир волшебства и вдохновения Светлая , просторная входная группа, есть места для хранения велосипедов и колясок, техническая комната с санузлом.Помещение располагается на 2-м этаже. Вход в парадную и лестница в общей стилистике апартаментов. Качественно, дорого и красиво Это арт-объект, приносящий высокий доход, кардинально отличающийся от стандартных мини отелей и доходных домов. Месторасположение в сердце Петербурга, в самой оживленной и популярной у гостей города части Центрального района, гарантирует высокий спрос и доходность круглогодично. Лучшие туристические маршруты: набережнаяеки Фонтанки, Невский проспект, Адмиралтейство, Эрмитаж и другие музеи. Рестораны и кафе, бизнес-центры , учебные и государственные учреждения, всё находится в пешей доступности. Внутри дома, в просторных зеленых дворах, идет реконструкция исторических зданий: их планируют приспособить под музей лейб-гвардии и выставочные пространства. Там же появятся различные мастерские, коворкинги, творческие студии и уютные кафе.Планировка согласована с КГИоП. В собственности юридического лица. Продажа с НДС.

Читать полностью
    Позвонить Написать
    58 000 000 Р761 600 $ или 642 500
    Агент
    +7 (911) 277-01-42
    Начать чат с агентом
    Похожие предложения
    Помещение свободного назначения в Санкт-Петербург ул. ... - Фото 1
    Помещение свободного назначения в Санкт-Петербург ул. ... - Фото 2
    Код объекта: 1854572.270 квадратов под любой бизнес с панорамными окнами в бизнес-центреОписание объекта:- Год постройки: 2006.- Тип коммерческого объекта: свободного назначения.- Вход в помещение: отдельный.- Доступ в помещение: свободный.- Оборудование:...
    • 3/4 эт.
    58 000 000 Р
    Агент
    +7 (911) Показать номер
    Посмотреть контакты
    Помещение свободного назначения в Санкт-Петербург ул. Вавиловых, 14 ... - Фото 1
    Помещение свободного назначения в Санкт-Петербург ул. Вавиловых, 14 ... - Фото 2
    ПЛАТИМ АГЕНТАМ. Поможем с планом рассадки, ремонтом, мебелью. Smart Medical Center будет реализован на пересечение Светлановского и Северного проспектов в Калининском районе Петербурга. Ввод в эксплуатацию намечен на четвертый квартал 2023 года.Налоговая:...
    • 3/5 эт.
    57 221 640 Р
    Агент
    +7 (933) Показать номер
    Посмотреть контакты
    Помещение свободного назначения в Санкт-Петербург Белоостровская ул., ... - Фото 1
    Помещение свободного назначения в Санкт-Петербург Белоостровская ул., ... - Фото 2
    Продается помещение свободного назначения 3, по адресу г. Санкт-Петербург, Приморский район, ул. Белоостровская, д. 28, лит. А, корпус ЖК Domino - встроенные помещения в Domino на 1 этаже, с площадью 142.6 м2.
    • 1/1 эт.
    57 989 618 Р
    Агент
    +7 (958) Показать номер
    Посмотреть контакты
    Помещение свободного назначения в Санкт-Петербург Ленинский просп., ... - Фото 1
    Помещение свободного назначения в Санкт-Петербург Ленинский просп., ... - Фото 2
    Коммерческое помещение номер - 9Н.Продажа апартаментов 211,39 м в апарт-отеле YES Leader в деловом квартале на площади Конституции.Апарт-отель YES Leader — это стабильный ежемесячный доход в престижном Московском районе - Семь больших окон.- Вход с улицы.-...
    • 2/24 эт.
    57 075 300 Р
    Агент
    +7 (989) Показать номер
    Посмотреть контакты
    Помещение свободного назначения в Санкт-Петербург Белоостровская ул., ... - Фото 1
    Помещение свободного назначения в Санкт-Петербург Белоостровская ул., ... - Фото 2
    Продается помещение свободного назначения 3, по адресу г. Санкт-Петербург, Приморский район, ул. Белоостровская, д. 28, лит. А, корпус ЖК Domino - встроенные помещения в Domino на 1 этаже, с площадью 142.6 м2.
    • 1/1 эт.
    57 989 618 Р
    Агент
    +7 (911) Показать номер
    Посмотреть контакты

    Не нашли подходящего объявления?

    Оставьте заявку, и наши риэлторы подберут псн в районе Санкт-Петербурга

    (0)