Россия, Санкт-Петербург, ул. Среднерогатская, 9к3
66 800 000 Р 827 600 $ или 712 100

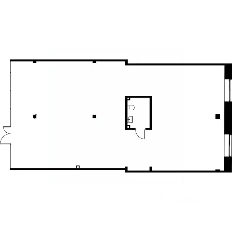
Информация об помещении

1
Этаж

Состояние и оснащение

Количество этажей
12
Развернуть
Агент
+7 (981) 112-82-48
Начать чат с агентом

Помещение свободного назначения в Санкт-Петербург ул. Среднерогатская, ...

343946 В продаже коммерческое помещение в новом жилом комплексе Аквилон Leaves в престижном Московском районе.В пешей доступности метро - 10 мин пешком до м. Звездная.- Помещение имеет два входа (возможность деления на 2 части) - с улицы и со двора ЖК- Высота потолка 4,5 метра- Большие витринные окна (товар и услуги хорошо просматриваются - размер витрины 3,7м) - Выделенная электрическая мощность 23,3 КВт с возможностью увеличения- Отдельная от жилых квартир вентиляция (возможность использовать под общепит)- Подвод воды и канализации- Два санузла- Наличие парковочных мест- Выгодные условия покупки (ипотека, рассрочка)Развитая плотнозаселенная локация, которая продолжает активно развивается - ведется строительство нескольких новых ЖК на соседних участках, что значительно увеличит плотность населения в районе. Помещение идеально для салона красоты или аппаратной косметологии, торговой точки, объекта общепита: удачная локация, достаточно места для нескольких рабочих зон и зоны ожидания, возможность входа посетителей с улицы и со двора ЖК

Читать полностью
    Позвонить Написать
    66 800 000 Р827 600 $ или 712 100
    Агент
    +7 (981) 112-82-48
    Начать чат с агентом
    Похожие предложения
    Помещение свободного назначения в Санкт-Петербург Московский просп., ... - Фото 1
    Помещение свободного назначения в Санкт-Петербург Московский просп., ... - Фото 2
    МОСКО — проект уровня 4* на Московском проспекте, 115В, в Московском районе Санкт-Петербурга. Современное 10-этажное здание объединяется с объектом культурного наследия — кузовным цехом 1913 года. В исторической части разместятся бутики, ресторан, мини-маркет...
    • 1/3 эт.
    67 305 000 Р
    Агент
    +7 (939) Показать номер
    Посмотреть контакты
    Помещение свободного назначения в Санкт-Петербург Гранитная ул., 51 ... - Фото 1
    Помещение свободного назначения в Санкт-Петербург Гранитная ул., 51 ... - Фото 2
    РАБОТАЕМ С АГЕНТАМИ. РЕНТАВИК— участник ассоциации КОКОН. МФК Smart Гранитная находится в шаговой доступности от станции метро Ладожская.Налоговая: 21. Лифты: Есть. Вентиляция: Приточно-вытяжная. Кондиционирование: Центральное. Безопасность: Круглосуточный...
    • 3/4 эт.
    67 805 000 Р
    Агент
    +7 (933) Показать номер
    Посмотреть контакты
    Помещение свободного назначения в Санкт-Петербург Новороссийская ул., ... - Фото 1
    Помещение свободного назначения в Санкт-Петербург Новороссийская ул., ... - Фото 2
    C тopгoв пo бaнкpотству продаeтся 2 этажа (2ой,3ий) 3-этажного здания общей площадью 688,9 м ;рaсположeннoе пo адpeсу: Санкт-Петербург, Новороссийская улица, 47 ;- кабинетная планировка- ремонт в стиле лофт- потоки 3 м. на 2м эт., 4 м. на 3м эт.- 2 oтдeльных...
    • 2/3 эт.
    67 735 980 Р
    Агент
    +7 (981) Показать номер
    Посмотреть контакты
    Помещение свободного назначения в Санкт-Петербург просп. Ветеранов, 69 ... - Фото 1
    Помещение свободного назначения в Санкт-Петербург просп. Ветеранов, 69 ... - Фото 2
    ID: 832050ПОМЕЩЕНИЕ НА ПЕРВОМ И ВТОРОМ ЭТАЖАХ (плюс антресоль) В НЕЖИЛОМ ЗДАНИИ.ПЕРВАЯ ЛИНИЯ ПРОСПЕКТА ВЕТЕРАНОВ.ДО МЕТРО ПРОСПЕКТ ВЕТЕРАНОВ 15 МИНУТ ПЕШКОМ. ОТЛИЧНЫЕ ДОКУМЕНТЫ. ПЕРВАЯ ПРОДАЖА.Площадь по выписке ЕГРН 450.9 м2. Фактическая площадь с учетом...
    • 2/2 эт.
    67 000 000 Р
    Агент
    +7 (911) Показать номер
    Посмотреть контакты
    Помещение свободного назначения в Санкт-Петербург ул. Александра ... - Фото 1
    Помещение свободного назначения в Санкт-Петербург ул. Александра ... - Фото 2
    АГЕНТАМ ПЛАТИМ. Рентавик — участник ассоциации КОКОН Жилой комплекс представляет собой коллекцию многоквартирных домов бизнес-класса. Квартал расположен в Адмиралтейском районе, на Матисовом острове, в окружении исторических достопримечательностей.Налоговая:...
    • 1/10 эт.
    67 577 400 Р
    Агент
    +7 (933) Показать номер
    Посмотреть контакты

    Не нашли подходящего объявления?

    Оставьте заявку, и наши риэлторы подберут псн в районе Санкт-Петербурга

    (0)