Реализация объекта недвижимости приостановлена

Информация об помещении

2
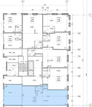
Этаж

Состояние и оснащение

Количество этажей
5
Развернуть

Помещение свободного назначения в Санкт-Петербург ул. Вавиловых, 14 ...

ПОКАЗ В УДОБНЫЙ ДЕНЬ И ЧАС. Агентам платим вознаграждение за клиента. Smart Medical Center будет реализован на пересечение Светлановского и Северного проспектов в Калининском районе Петербурга. Ввод в эксплуатацию намечен на четвертый квартал 2023 года.Налоговая: 18. Лифты: Есть. Вентиляция: Приточно-вытяжная. Кондиционирование: Центральное. Безопасность: Круглосуточная охрана, Система пожаротушений, Видеонаблюдение. Парковка: Наземная. Описание помещения: Блок состоит из двух помещений. Оснащены всеми необходимыми коммуникациями и системами.Планировка: открытая. Под чистовую отделку. Тип налогообложения: С НДС. Лот

Читать полностью

    Реализация объекта недвижимости приостановлена

    Не нашли подходящего объявления?

    Оставьте заявку, и наши риэлторы подберут псн в районе Санкт-Петербурга

    (0)