6 200 000 Р 76 410 $ или 66 360

Информация о квартире

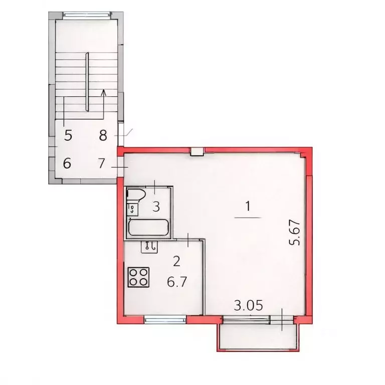
31 м2
Площадь
19 м2
Жилая
5 м2
Кухня
1
Комната
3
Этаж
5
Этажность

Дополнительная информация

Тип дома
кирпичный
Развернуть
Агент
+7 (981) 690-37-71
Начать чат с агентом

1-к кв. Санкт-Петербург Среднеохтинский просп., 1К4 (31.0 м)

В продаже однокомнатная квартира общей площадью 31.00 кв.м. по адресу: СПб, Среднеохтинский проспект, дом1 кор.4. Квартира требует ремонта, что дает возможность вам сделать ремонт под себя. Квартира расположена на 3-ем этаже 5-ти этажного дома. Окна во двор. Парадная полностью отремонтирована. Квартира очень теплая. Установлена новая газовая колонка. Квартира расположена в тихом зеленом районе, в непосредственной близости к историческому центру Санкт-Петербурга. Большеохтинской мост, Свердловская набережная с велодорожкой и прогулочной зоной вдоль самого широко места на Неве, вид на Смольный Собор, Таврический парк, Финляндский вокзал. Рядом расположены детские сады и школа, поликлиники. В пешей доступности ТЦ Охта Молл, сетевые магазины, аптеки. Вокруг малоэтажная застройка и много зелени. Удобная транспортная развязка. Прямая продажа. Более 5-ти лет в собственности. Подходит под ипотеку, субсидию, материнский капитал. Приходите, смотрите и покупайте

Читать полностью

    Для того, чтобы купить однокомнатную квартиру по адресу: м. Новочеркасская, Среднеохтинский пр-кт., 1К4, позвоните по телефону +7 (981) 690-37-71. Торопитесь! Объявление №30094486841 о продаже однокомнатной квартиры опубликовано 25 марта 2026.

    Позвонить Написать
    6 200 000 Р76 410 $ или 66 360
    Агент
    +7 (981) 690-37-71
    Начать чат с агентом
    Похожие предложения
    1-к кв. Санкт-Петербург Малая Охта тер., ул. Казанская, 10 (31.8 м) - Фото 1
    1-к кв. Санкт-Петербург Малая Охта тер., ул. Казанская, 10 (31.8 м) - Фото 2
    1-комнатная квартира, общая площадь 31м², жилая 22м², кухня 7м²

    Продается светлая 1-комнатная квартира на 2 этаже кирпичного дома на тихой Казанской улице (Малая Охта) в пешей доступности у метро Новочеркасская. Дом: Кирпичный, 1961 года постройки. Перекрытия — железобетонные (это плюс к надёжности и звукоизоляции)....
    • 31 м²
    • 1-ком
    • 2/5 эт.
    • панельный
    6 300 000 Р
    Агент
    +7 (981) Показать номер
    Посмотреть контакты
    Студия Санкт-Петербург Планерная ул., 99 (22.1 м) - Фото 1
    Студия Санкт-Петербург Планерная ул., 99 (22.1 м) - Фото 2
    студия, общая площадь 22м², кухня 4м²

    СТУДИЯ с ЛОДЖИЕЙ Прoдaётcя студия с площaдью 22.1 м на 8 этаже нового монoлитно-киpпичногo домa, поcтрoеннoгo в 2024 гoду. Из oкoн открываетcя вид на coлнечную cтopoну, нaполняя квapтиpу естeственным cветoм. Дoм oбopудoван пaсcажиpским и грузoвым лифтaми,...
    • 22 м²
    • студия-ком
    • 8/13 эт.
    6 100 000 Р
    Агент
    +7 (911) Показать номер
    Посмотреть контакты
    Квартира, студия, 21.4 м - Фото 1
    Квартира, студия, 21.4 м - Фото 2
    студия, общая площадь 21м²

    Предлагаем вашему вниманию уютную студию в современном жилом комплексе на Санкт-Петербург, посёлок Парголово, Заречная улица, 41. Квартира расположена на 23 этаже 27-этажного монолитно-кирпичного дома 2019 года постройки. Общая площадь квартиры составляет...
    • 21 м²
    • студия-ком
    • 23/27 эт.
    6 300 000 Р
    Агент
    +7 (911) Показать номер
    Посмотреть контакты
    1-к кв. Санкт-Петербург, Санкт-Петербург, Красное Село Стрельнинское ... - Фото 1
    1-к кв. Санкт-Петербург, Санкт-Петербург, Красное Село Стрельнинское ... - Фото 2
    1-комнатная квартира, общая площадь 31м², жилая 14м², кухня 10м²

    Продаётся уютная однокомнатная квартира с современным евроремонтом. Капремонт 2023 года, кирпичный дом, закрытая территория. Всё необходимое для комфортного проживания. О квартире: Капитальный ремонт 2023 года, современный евроремонт. Кирпичный дом —...
    • 31 м²
    • 1-ком
    • 2/4 эт.
    6 100 000 Р
    Агент
    +7 (981) Показать номер
    Посмотреть контакты
    1-к кв. Санкт-Петербург Краснопутиловская ул., 78 (31.0 м) - Фото 1
    1-к кв. Санкт-Петербург Краснопутиловская ул., 78 (31.0 м) - Фото 2
    1-комнатная квартира, общая площадь 31м², жилая 18м², кухня 6м²

    ID: 1916647Продается однакомнатная квартира на 4ом этаже классической для Московского района пятиэтажки. Квартира свободна. Готова к ремонту. Новая газовая колонка и плита. Санузел совмещённый. Балкон открытый, забранный решётками. Окна выходят на юг...
    • 31 м²
    • 1-ком
    • 4/5 эт.
    • панельный
    6 200 000 Р
    Агент
    +7 (911) Показать номер
    Посмотреть контакты

    Не нашли подходящего объявления?

    Оставьте заявку, и наши риэлторы подберут квартиру в районе Санкт-Петербурга

    (0)