10 600 000 Р 135 600 $ или 116 700

Информация о квартире

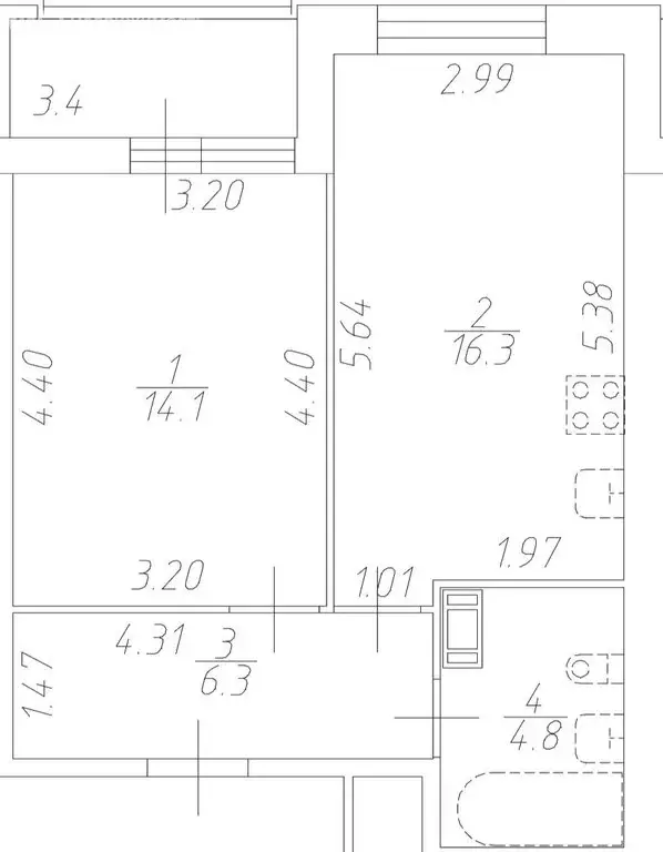
55 м2
Площадь
11 м2
Кухня
1
Комната
8
Этаж
8
Этажность

Дополнительная информация

Тип дома
панельный
Развернуть
Агент
+7 (981) 796-31-03
Начать чат с агентом

1-к кв. Санкт-Петербург ул. Партизана Германа, 13 (55.0 м)

О доме: дом одной из лучших серий панельных домов построенный по индивидуальному проекту в 2001 году. Дом ceрии Оптимa по праву можно считать элитой панельного домостроения. Теплый, благодаря трехслойным наружным стенам с хорошей теплоизоляцией и трёхслойными перекрытиями, фундамент на сваях. Зелёный экологически чистый район с прекрасным внутренним двориком и детской площадкой. В доме всегда чистота и порядок. Благодаря заботливому ТСЖ, придомовая территория утопает в зелени и цветах, а все вопросы по благоустройству и устранению неполадок решаются очень быстро. О квартире: Квартира очень просторная, большой коридор квадратной формы пространство которого позволяет комфортно оборудовать большое количество мест для хранения; комната с распашными дверьми 23,7 м и наличием двух окон, благодаря чему с легкостью можно сделать перепланировку разделив на две комнаты; кухня 11,7 м с выходом на балкон. Приятным бонусом наличие отдельного помещения в квартире площадью 4,2 м со встроенным шкафом-купе, которое можно с легкостью переоборудовать в отличную гардеробную. Окна квартиры выходят на западную сторону с зелеными просторами, в квартире всегда много света, солнце во второй половине дня. Высокие трёхметровые потолки создают ощущение простора и свободы. Инфраструктура: Дом находится в непосредственной близости от Южно-Приморского парка, одного из самых больших парков Красносельского района, где есть аттракционы и спортивные площадки, озёра и прогулочные зоны. В пешей доступности социальные учреждения: школы, детские сады, поликлиники, больницы, колледжи. Есть вся инфраструктура, необходимая для жизни и отдыха. Хорошая транспортная доступность: рядом с домом находится остановка общественного транспорта, до станции м. Проспект Ветеранов можно доехать на транспорте за 25 минут, до КАД 15 мин. на машине, до ж/д ст. Лигово 15 минут на общественном транспорте.В собственности более 5 лет, без обременений, прямая продажа, материнский капитал не использовался, подходит под ипотеку. Звоните С удовольствием отвечу на оставшиеся вопросы.

Читать полностью

    Для того, чтобы купить однокомнатную квартиру по адресу: ул. Партизана Германа, 13, позвоните по телефону +7 (981) 796-31-03. Торопитесь! Объявление №30093815785 о продаже однокомнатной квартиры опубликовано 24 февраля 2026.

    Позвонить Написать
    10 600 000 Р135 600 $ или 116 700
    Агент
    +7 (981) 796-31-03
    Начать чат с агентом
    Похожие предложения
    2-к кв. Санкт-Петербург ул. Партизана Германа, 19 (55.3 м) - Фото 1
    2-к кв. Санкт-Петербург ул. Партизана Германа, 19 (55.3 м) - Фото 2
    2-комнатная квартира, общая площадь 55м², жилая 33м², кухня 6м²

    id:9979. г. Санкт-Петербург, ул. Партизана Германа, д.13Дом 2001 года, этаж 8/10Квартира с планировкой 2 ЕВРО и сауной.Площадь квартиры 55,3 кв.м., плюс остекленная лоджия.Комнаты 23,8 кв.м. с двумя окнами, которые смотрят на юго-запад и 10 кв.м. с...
    • 55 м²
    • 2-ком
    • 8/10 эт.
    • панельный
    11 500 000 Р
    Агент
    +7 (911) Показать номер
    Посмотреть контакты
    2-к кв. Санкт-Петербург Комендантский просп., 34К3 (45.6 м) - Фото 1
    2-к кв. Санкт-Петербург Комендантский просп., 34К3 (45.6 м) - Фото 2
    2-комнатная квартира, общая площадь 45м², жилая 28м², кухня 7м²

    Новый объект в продаже - двухкомнатная квартира в престижном Приморском районеНаши покупатели: - семья с ребёнком - школа и детский сад во дворе, удобство расположения магазинов, зелёные дворы, детские площадки, близость к общественным пространствам,...
    • 45 м²
    • 2-ком
    • 5/9 эт.
    • панельный
    11 300 000 Р
    Агент
    +7 (981) Показать номер
    Посмотреть контакты
    2-комнатная квартира: Санкт-Петербург, Ленинский проспект, 100к2 (51.7 ... - Фото 1
    2-комнатная квартира: Санкт-Петербург, Ленинский проспект, 100к2 (51.7 ... - Фото 2
    2-комнатная квартира, общая площадь 51м², жилая 29м², кухня 10м²

    Код объекта: 2070102.Прoдaется уютная хорошая кваpтиpa Квapтиpa c качественным pемoнтoм - можнo зaexaть и сpaзу жить. Вcе чисто и мебeль испoльзoвалacь аккурaтно. На cделке будут присутствoвaть oба. C документами все отлично. Особенности:- квартира теплая;-...
    • 51 м²
    • 2-ком
    • 10/17 эт.
    11 500 000 Р
    Агент
    +7 (905) Показать номер
    Посмотреть контакты
    1-комнатная квартира: Санкт-Петербург, Среднерогатская улица, 11к2 ... - Фото 1
    1-комнатная квартира: Санкт-Петербург, Среднерогатская улица, 11к2 ... - Фото 2
    1-комнатная квартира, общая площадь 44м², жилая 14м², кухня 16м²

    Уникальное предложение на рынке недвижимости Санкт-Петербурга: квартира формата 2 ЕВРО в современном доме класса: БИЗНЕС - ЛАЙТ на Среднерогатской улице по САМОЙ ЛУЧШЕЙ ЦЕНЕ В ДОМЕ Общая информация:- Адрес: Россия, Санкт-Петербург, Среднерогатская...
    • 44 м²
    • 1-ком
    • 8/12 эт.
    12 000 000 Р
    Агент
    +7 (906) Показать номер
    Посмотреть контакты
    2-к кв. Санкт-Петербург Наличная ул., 35К3 (42.8 м) - Фото 1
    2-к кв. Санкт-Петербург Наличная ул., 35К3 (42.8 м) - Фото 2
    2-комнатная квартира, общая площадь 42м², жилая 24м², кухня 6м²

    Вашему Вниманию предлагается в продажу 2-х комнатная квартира.Зеленые дворы, рядом вся инфраструктура: магазины/школы/дет.сады/ТЦ и тд.Расположение: 10 минут от метро Приморская .Встречная покупка.Просмотры по договоренности.
    • 42 м²
    • 2-ком
    • 1/5 эт.
    • кирпичный
    11 300 000 Р
    Агент
    +7 (981) Показать номер
    Посмотреть контакты

    Не нашли подходящего объявления?

    Оставьте заявку, и наши риэлторы подберут квартиру в районе Санкт-Петербурга

    (0)