Реализация объекта недвижимости приостановлена

Информация о квартире

113.0 м2
Площадь
80.0 м2
Жилая
13.0 м2
Кухня
5
Комнат
4
Этаж
5
Этажность
Развернуть

5-комнатная квартира: Санкт-Петербург, Кирочная улица, 18 (113.8 м)

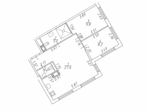
***ПРОСТОРНАЯ КВАРТИРА В САМОМ СЕРДЦЕ ГОРОДА ***Продается пятикомнатная коммунальная квартира в историческом доме 1904 года постройки, расположенная в престижном Центральном районе Санкт-Петербурга, в 5 минутах неспешной ходьбы от станции метро «Чернышевская . Дом характеризуется солидным фасадом, просторной парадной и планировкой с одной квартирой на этаже, что обеспечивает повышенный уровень приватности. Для комфортного подъема функционирует пассажирский лифт. Квартира обладает исключительными для современного рынка характеристиками: высота потолков составляет 3,5 метра, частично сохранена старинная лепнина, перекрытия железобетонные. Планировка включает три изолированные комнаты площадью 11,2 кв.м, 16 кв.м и 18,3 кв.м, а четвертая комната структурно разделена на две зоны площадью 20,8 кв.м и 11,9 кв.м., что открывает возможности для функционального зонирования. Кухня площадью 13,2 кв. м, хотя и имеет вытянутую конфигурацию, оборудована окном во двор; санузел раздельный с установленной ванной. Все оконные проемы квартиры, включая большое окно в прихожей, выходят в уединенный закрытый двор с организованной парковкой для резидентов. Объект не подвергался перепланировкам, находится в юридически чистом состоянии: пять совершеннолетних собственников, право собственности оформлено более пяти лет назад, обременения отсутствуют. Для покупателей, заинтересованных в центральной локации с развитой инфраструктурой, транспортной доступностью и аутентичной атмосферой старого Петербурга, данный объект представляет собой выгодное капиталовложение.Остались вопросы? Звоните и записывайтесь на показ Для клиентов нашей компании помощь в одобрении ипотеки и юридическое сопровождение сделки Номер в базе:. Код пользователя: 174133

Читать полностью

    Реализация объекта недвижимости приостановлена

    Не нашли подходящего объявления?

    Оставьте заявку, и наши риэлторы подберут квартиру в районе Санкт-Петербурга

    (0)