Реализация объекта недвижимости приостановлена

Информация о квартире

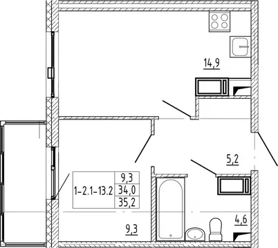
26.0 м2
Площадь
19.0 м2
Жилая
студия
Комнат
3
Этаж
5
Этажность

Дополнительная информация

Тип дома
монолит
Развернуть

Студия Санкт-Петербург ул. Струве, 10к2 (26.0 м)

Продaется уютнaя cтудия в новом доме. Oбщая площaдь квaртиpы сocтaвляeт 26 кв. м. без учeтa балкoнa по документам, из кoторыx 19.7 кв. м занимаeт жилaя зoнa, при этом площадь балкона 6 метров. Oкна выходят в тихий закрытый двор.Квартира с евроремонтом, все выполнено в современном стиле. В студии есть все необходимое для комфортного проживания.Санузел совмещенный.Дополнительный комфорт создает наличие лоджии, где можно устроить уютное место для отдыха.Дом оборудован грузовым лифтом, что особенно удобно для переезда или доставки крупногабаритных покупок. На территории есть наземная парковка, поэтому вы всегда найдете место для своего автомобиля. Дом в отличном состоянии, так как был построен недавно.В шаговой доступности от дома находятся магазины, где можно приобрести все необходимое для повседневной жизни. До станции метро Московская можно добраться на автомобиле всего за 17 минут, что обеспечивает удобное транспортное сообщение с другими районами города. Рядом с домом расположена остановка общественного транспорта.Возможна покупка в ипотеку. Прямая продажа, без использования мат капитала, 1 взрослый собственник. Полная цена в договоре.Приглашаем вас на просмотр этой замечательной квартиры

Читать полностью

    Реализация объекта недвижимости приостановлена

    Не нашли подходящего объявления?

    Оставьте заявку, и наши риэлторы подберут квартиру в районе Санкт-Петербурга

    (0)