Россия, Санкт-Петербург, Усть-Славянка тер., ул. Заводская, 15
5 800 000 Р 73 100 $ или 62 410

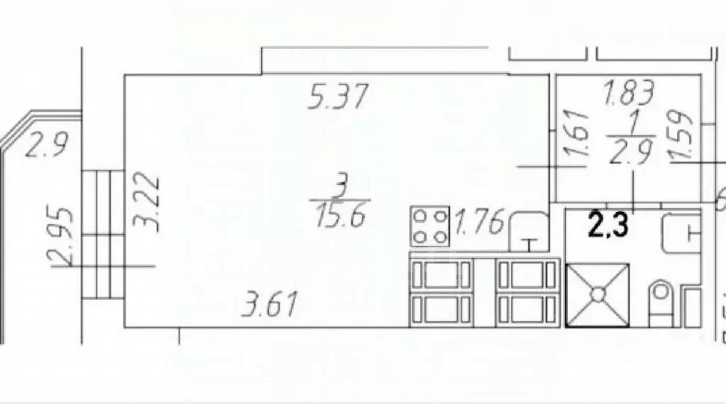
Информация о квартире

25 м2
Площадь
17 м2
Жилая
3 м2
Кухня
студия
Комнат
15
Этаж
25
Этажность

Дополнительная информация

Тип дома
монолит
Развернуть
Агент
+7 (911) 179-26-54
Начать чат с агентом

Студия Санкт-Петербург Усть-Славянка тер., ул. Заводская, 15 (25.0 м)

Код объекта: 1967931.Продаётся студия в ЖК Комфорт Класса Пётр Великий и Екатерина Великая ПРЕИМУЩЕСТВА:- В квартире ремонт с дизайнерскими решениями,(подвесной двухуровневый потолок с подсветками)- В подарок остаётся кухня со встроенной техникой и мебелью.(Все в итоговой стоимости) Заходи и живи - Вид из окон, потрясающий - Нева, закаты, рассветы В 2 мин ходьбы пляж.- В прихожей есть встроенная гардеробная, лоджия с отделкой и подсветкой - Хорошая шумоизоляция и утепление. Показания ИПУ передавать не нужно, умный дом О ДОМЕ:- ЖК Комфорт Класса- Дом монолитный- Год постройки 2018 года,- 4 бесшумных лифта- Консьерж, видеонаблюдениеОБ ИНФРАСТРУКТУРЕ:- Придомовая территория с системой видеонаблюдения- В доме магазины, аптека, фитнес , СДЭК, ОЗОН, Валдберис, ветеринарная клиника.- Рядом м. Рыбацкое (8 мин на машине, 25 мин пешком)- Удобный выезд на КАД (5 минут)- Детская площадка для всех возрастов- Две большие парковки. всегда свободные места.О ДОКУМЕНТАХ:- Приобреталась по ДДУ- Один взрослый собственник, несовершеннолетних детей в доле нет, более 5-ти лет в собственности- Документы готовы к продаже- Без материнского капитала- Подходит под ипотеку- Перепланировок нет- Прописка СПб- Полная стоимость в договоре

Читать полностью

    Для того, чтобы купить студию по адресу: м. Рыбацкое, Усть-Славянка тер., ул. Заводская, 15, позвоните по телефону +7 (911) 179-26-54. Торопитесь! Объявление №30092393775 о продаже студии опубликовано Сегодня.

    Позвонить Написать
    5 800 000 Р73 100 $ или 62 410
    Агент
    +7 (911) 179-26-54
    Начать чат с агентом
    Похожие предложения
    2-к кв. Санкт-Петербург пос. Металлострой, Плановая ул., 24 (41.6 м) - Фото 1
    2-к кв. Санкт-Петербург пос. Металлострой, Плановая ул., 24 (41.6 м) - Фото 2
    2-комнатная квартира, общая площадь 41м², жилая 26м², кухня 5м²

    Продам 2-комнатную квартиру в живописной зеленой зоне, всего в нескольких шагах от великолепной реки Невы Это идеальное место для комфортной жизни и спокойного отдыха.Квартира полностью готова к заселению: здесь сделан качественный ремонт, заменены все...
    • 41 м²
    • 2-ком
    • 2/5 эт.
    • панельный
    5 800 000 Р
    Агент
    +7 (981) Показать номер
    Посмотреть контакты
    2-к кв. Санкт-Петербург, Санкт-Петербург, Колпино ш. Вознесенское, 51 ... - Фото 1
    2-к кв. Санкт-Петербург, Санкт-Петербург, Колпино ш. Вознесенское, 51 ... - Фото 2
    2-комнатная квартира, общая площадь 42м², жилая 25м², кухня 7м²

    Арт.Продам небольшую уютную двухкомнатную квартиру. Дом кирпичный, теплый, 1965 г.п. Этаж 2/2.Общая площадь квартиры 42,3 кв.м.Комнаты изолированные, 15,2 кв.м.+10,3 кв.м.Кухня 7,6 кв.м. Сан.узел совмещенный.Квартира двусторонняя.В шаговой доступности...
    • 42 м²
    • 2-ком
    • 2/2 эт.
    • кирпичный
    5 800 000 Р
    Агент
    +7 (911) Показать номер
    Посмотреть контакты
    2-комнатная квартира: Металлострой, Плановая улица, 24 (41.6 м) - Фото 1
    2-комнатная квартира: Металлострой, Плановая улица, 24 (41.6 м) - Фото 2
    2-комнатная квартира, общая площадь 41м², жилая 26м², кухня 5м²

    Продам 2-комнатную квартиру в живописной зеленой зоне, всего в нескольких шагах от великолепной реки Невы Это идеальное место для комфортной жизни и спокойного отдыха.Квартира полностью готова к заселению: здесь сделан качественный ремонт, заменены все...
    • 41 м²
    • 2-ком
    • 2/5 эт.
    5 800 000 Р
    Агент
    +7 (958) Показать номер
    Посмотреть контакты
    3-к кв. Санкт-Петербург пос. Понтонный, ул. Варвары Петровой, 8 (55.2 ... - Фото 1
    3-к кв. Санкт-Петербург пос. Понтонный, ул. Варвары Петровой, 8 (55.2 ... - Фото 2
    3-комнатная квартира, общая площадь 55м², жилая 37м², кухня 5м²

    Арт.Продаётся 3-х кoмнатная квартирa в пешей доступности от Невы и в 20-30 минутах на транспорте от м.Рыбацкое, по адресу: г. Санкт-Петербург, п.Понтонный, ул. Варвары Петровой, д. 8.О ПРОДАЖЕ И ДОКУМЕНТАХ:-Прямая продажа.-Три взрослых собственника (все...
    • 55 м²
    • 3-ком
    • 4/5 эт.
    • панельный
    5 800 000 Р
    Агент
    +7 (981) Показать номер
    Посмотреть контакты
    Студия Санкт-Петербург Усть-Славянка тер., ул. Славянская, 8 (20.8 м) - Фото 1
    Студия Санкт-Петербург Усть-Славянка тер., ул. Славянская, 8 (20.8 м) - Фото 2
    студия, общая площадь 20м², жилая 12м², кухня 3м²

    Код объекта: 1937196.Исключительная возможность для приобретения — уютная студия в современном доме на Славянской улице в Усть-Славянке, Санкт-Петербург. Построенная в 2023 году, квартира отличается высоким качеством и комфортом.Удобное расположение обеспечивает...
    • 20 м²
    • студия-ком
    • 19/23 эт.
    5 700 000 Р
    Агент
    +7 (911) Показать номер
    Посмотреть контакты

    Не нашли подходящего объявления?

    Оставьте заявку, и наши риэлторы подберут квартиру в районе Санкт-Петербурга

    (0)