Россия, Ленинградская область, Ломоносовский район, садоводческое некоммерческое товарищество Надежда-ВАТТ, 290
29 000 000 Р 372 600 $ или 319 100

Информация о коттедже

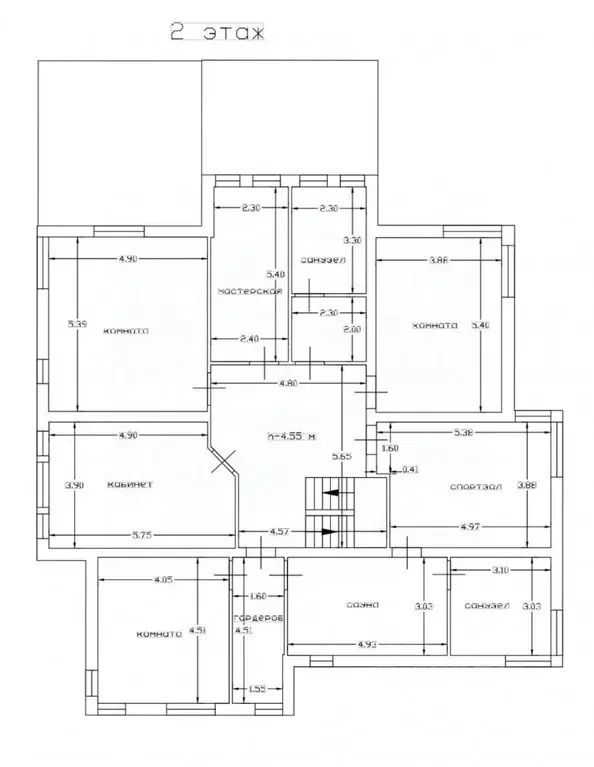
228 м2
Площадь
2
Этажность
7 cоток
Участок

Дополнительная информация

Дом продаётся вместе с участком
есть
Развернуть
Агент
+7 (981) 052-81-64
Начать чат с агентом

Дом в Ленинградская область, Ломоносовский район, Виллозское городское ...

Предлагаю к продаже замечательный большой дом Фундамент -сваи , плита. Стены -кирпич парезованый 2NF , кровля -мягкая черепица , фасад,утепленный 100мм,закрытый мембраной от ветра ,облицованный пластиком. Окна -профиль геалан,стекло тройное. Отопление водяное на сжиженном газу, электричество пять кВт, можно докупить ещё. Вода скважина на глубине шестнадцать метров . Стены внутри отштукатурены и шпатлеваны , поклеены обои. Есть чердак холодный. На первом этаже есть теплые полы (электрические) на кухне, зале , жилой комнате , ванной. Пол -ламинат,рабочая зона кухни- керамогранит, в ванной-плитка.Ходят гор. автобусы, Ж/д станция недалеко. Есть плодовые деревья: яблони, вишни, сливы. Кустарники : черная и красная смородина, голубика, малиновое дерево.Теплица Магазин ,маркетплэйсы . плита на кухне на газу.Место богато природными красотами, лесами и озерами. Это отличное место для прогулок, рыбалки и активного отдыха на природе. В собственности более пяти лет ,полная стоимость в договоре ,один взрослый собственник.Без обременений и долгов . По запросу отправлю план этажей.Звоните пожалуйста ,покажем оперативно.еще больше фото могу направить в личку , здесь больше нельзя и есть видео Арт.

Читать полностью

    Для того, чтобы купить 2-этажный коттедж по адресу: садоводческое некоммерческое товарищество Надежда-ВАТТ, 290, позвоните по телефону +7 (981) 052-81-64. Торопитесь! Объявление №50016926323 о продаже двухэтажного коттеджа опубликовано Сегодня.

    Позвонить Написать
    29 000 000 Р372 600 $ или 319 100
    Агент
    +7 (981) 052-81-64
    Начать чат с агентом
    Похожие предложения
    Дом в Ленинградская область, Ломоносовский район, Ропшинское с/пос, ... - Фото 1
    Дом в Ленинградская область, Ломоносовский район, Ропшинское с/пос, ... - Фото 2
    3 этажа, общая площадь 330м², участок 10 соток

    Арт.Впечатляющий трехэтажный дом площадью 330 м с возможностью обустройства до 7 спален расположен на ровном и сухом участке 10 соток правильной формы в камерном поселке премиум-класса.Дом спроектирован для большой семьи и комфортной загородной жизни...
    • 3 эт.
    • 330 м²
    • 10 сот.
    28 000 000 Р
    Агент
    +7 (911) Показать номер
    Посмотреть контакты
    Дом в Ленинградская область, Ломоносовский район, Пениковское с/пос, ... - Фото 1
    Дом в Ленинградская область, Ломоносовский район, Пениковское с/пос, ... - Фото 2
    1 этаж, общая площадь 151м², участок 8 соток

    id:32049. Ультрасовременный Дом-Шедевр Морской Бриз Эталон технологий без аналогов - смотрите обязательно видео Ультратехнологичный просторный дом 181 м, включая галерею, сауну, хозблок и погреб в стиле теплого минимализма Топ-локация: Ломоносовский...
    • 1 эт.
    • 151 м²
    • 8 сот.
    28 100 000 Р
    Агент
    +7 (981) Показать номер
    Посмотреть контакты
    Коттедж в Ленинградская область, Ломоносовский район, Горбунковское ... - Фото 1
    Коттедж в Ленинградская область, Ломоносовский район, Горбунковское ... - Фото 2
    2 этажа, общая площадь 400м², участок 20 соток

    Арт.Продаётся просторный дом для большой семьи в коттеджном посёлке ВелигонтыВсего 10 минут до Петергофа и 2,5 км до КАД.Двухэтажный дом площадью 400 м расположен на ухоженном участке 20,5 соток. Построен по индивидуальному проекту — светлый, уютный и...
    • 2 эт.
    • 400 м²
    • 20 сот.
    30 000 000 Р
    Агент
    +7 (981) Показать номер
    Посмотреть контакты
    1 этаж, общая площадь 151м², участок 8 соток

    id:32200. Ультрасовременный Дом-Шедевр Морской Бриз Эталон технологий без аналогов — смотрите обязательно видео Ультратехнологичный просторный дом 181 м, включая галерею, сауну, хозблок и погреб в стиле теплого минимализма Топ-локация: Ломоносовский...
    • 1 эт.
    • 151 м²
    • 8 сот.
    28 100 000 Р
    Агент
    +7 (931) Показать номер
    Посмотреть контакты
    Коттедж в Ленинградская область, Ломоносовский район, Горбунковское ... - Фото 1
    Коттедж в Ленинградская область, Ломоносовский район, Горбунковское ... - Фото 2
    2 этажа, общая площадь 400м², участок 20 соток

    Арт.Продаётся просторный дом для большой семьи в коттеджном посёлке ВелигонтыВсего 10 минут до Петергофа и 2,5 км до КАД.Двухэтажный дом площадью 400 м расположен на ухоженном участке 20,5 соток. Построен по индивидуальному проекту — светлый, уютный и...
    • 2 эт.
    • 400 м²
    • 20 сот.
    30 000 000 Р
    Агент
    +7 (981) Показать номер
    Посмотреть контакты

    Не нашли подходящего объявления?

    Оставьте заявку, и наши риэлторы подберут купить дом в районе Ломоносовского района

    (0)