30 000 000 Р 378 100 $ или 322 800

Информация о коттедже

400 м2
Площадь
2
Этажность
20 cоток
Участок

Дополнительная информация

Дом продаётся вместе с участком
есть
Развернуть
Агент
+7 (981) 795-31-17
Начать чат с агентом

Коттедж в Ленинградская область, Ломоносовский район, Горбунковское ...

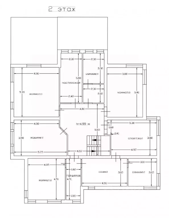
Арт.Продаётся просторный дом для большой семьи в коттеджном посёлке ВелигонтыВсего 10 минут до Петергофа и 2,5 км до КАД.Двухэтажный дом площадью 400 м расположен на ухоженном участке 20,5 соток. Построен по индивидуальному проекту — светлый, уютный и функциональный, с современной инженерией и продуманной планировкой.Дом возводился для собственного проживания, продажа связана с изменением жизненных обстоятельств. ПланировкаПервый этаж:• 4 просторные комнаты (21, 20, 17 и 14 м) — для комфортной жизни всей семьи.• 2 санузла, в том числе ванная комната с окном (13 м).• Кухня-столовая 41,6 м с выходом на террасу — отличное место для ужинов и встреч с друзьями.• Терраса, технические и подсобные помещения.Второй этаж:• 5 комнат (24, 21, 20, 20 и 18 м) — можно организовать спальни, кабинет, детские и гостевые зоны.• 2 просторных санузла, гардеробные и вспомогательные помещения.Дом готов в стадии тёплый контур , что позволяет завершить отделку по своему вкусу.Строительство выполняла надёжная бригада, готовая продолжить работы (контакты передаются покупателю). Технические характеристики• Фундамент: свайное основание на 47 буровинтовых сваях (длина 4 м), железобетонный ростверк и монолитная плита.• Каркас: железобетонный с межэтажным перекрытием.• Стены: газобетон 350 мм — энергоэффективность и долговечность.• Кровля: сталь Ruukki с современным защитным покрытием. Коммуникации• Газ: магистральный, заведён в дом + газгольдер 10 м (полностью заправлен и подключён).• Электричество: трёхфазное, 20 кВт, подключено и оплачено.• Вода: централизованное водоснабжение посёлка (из скважин).• Канализация: септик Юнилос-10 (на 10 человек), полностью смонтирован и готов к эксплуатации.• Дренаж и ливневая канализация: выполнены по проекту и обеспечивают эффективный отвод воды по всему участку. Все системы выведены в закрытый сток с обслуживаемыми колодцами. Участок и посёлок• Участок огорожен забором на ленточном фундаменте, территория благоустроена и подготовлена к дальнейшему озеленению.• В посёлке — круглосуточная охрана, вывоз бытовых отходов, обжитое и дружелюбное соседство.Удобное расположение:10 минут до Петергофа,2,5 км до КАД,рядом магазин Дикси ,до шоссе — всего 200 м.Условия продажи• Прямая продажа от собственника• Без обременений• Быстрый выход на сделкуСовременный, надёжный и просторный дом, в котором сочетаются уровень городского комфорта и преимущества загородной жизни.Идеальный вариант для семьи, ценящей качество, пространство и удобное расположение. Свяжитесь, чтобы получить дополнительную информацию и организовать просмотр — дом готов встретить своих новых владельцев

Читать полностью

    Для того, чтобы купить 2-этажный коттедж по адресу: Велигонты, коттеджный посёлок Велигонты, 148, позвоните по телефону +7 (981) 795-31-17. Торопитесь! Объявление №50016601703 о продаже двухэтажного коттеджа опубликовано 2 дня назад.

    Позвонить Написать
    30 000 000 Р378 100 $ или 322 800
    Агент
    +7 (981) 795-31-17
    Начать чат с агентом
    Похожие предложения
    Дом в Ленинградская область, Ломоносовский район, Гостилицкое с/пос, ... - Фото 1
    Дом в Ленинградская область, Ломоносовский район, Гостилицкое с/пос, ... - Фото 2
    1 этаж, общая площадь 239м², участок 15 соток

    Семейная и айти ипотека Мастер-спальня + 3 спальни, большая кухня-гостиная, 2 санузла, гардеробная, тех. помещение, навес для 2 авто и терраса. Новый современный дом у леса — 239,8 м в ТСН Малиновые вечера Продаётся новый дом из газобетона...
    • 1 эт.
    • 239 м²
    • 15 сот.
    29 000 000 Р
    Агент
    +7 (981) Показать номер
    Посмотреть контакты
    Дом в Ленинградская область, Ломоносовский район, д. Низино  (196 м) - Фото 1
    Дом в Ленинградская область, Ломоносовский район, д. Низино  (196 м) - Фото 2
    2 этажа, общая площадь 196м², участок 15 соток

    Арт.Отличный 2-х этажный дом. На первом этаже - кухня-гостиная 40 м2 с выходом на просторную террасу, хозяйская спальня, котельная, санузел, большая гардеробная. 2-й этаж - три спальни, санузел, гардеробная.На территории гостевой дом с сауной и хозяйственный...
    • 2 эт.
    • 196 м²
    • 15 сот.
    30 000 000 Р
    Агент
    +7 (981) Показать номер
    Посмотреть контакты
    Дом в Ленинградская область, Ломоносовский район, Аннинское городское ... - Фото 1
    Дом в Ленинградская область, Ломоносовский район, Аннинское городское ... - Фото 2
    2 этажа, общая площадь 200м², участок 10 соток

    ВНИМAНИE Уникaльное предложeние для тeх, кто мeчтaет о coбствeннoм дoмe Коттедж в стиле ваби-саби с чистовой отделкой расположен в коттеджном поселке Иннолово на участке 10 соток с панорамным видом на зеленые луга. ПОЛHOCTЬЮ пoд ключ.Нa ceгодняшний...
    • 2 эт.
    • 200 м²
    • 10 сот.
    29 900 000 Р
    Агент
    +7 (981) Показать номер
    Посмотреть контакты
    Дом в Ленинградская область, Ломоносовский район, Виллозское городское ... - Фото 1
    Дом в Ленинградская область, Ломоносовский район, Виллозское городское ... - Фото 2
    1 этаж, общая площадь 136м², участок 12 соток

    Полностью готовый дом для постоянного проживания в СНТ Красногорское в 5 км от Красного Села и 4 км от пос. Малое Карлино. Улицы чистят, дома красивые, многие собственники живут круглый год, так как очень удобное расположение - быстрые выезды на...
    • 1 эт.
    • 136 м²
    • 12 сот.
    29 900 000 Р
    Агент
    +7 (988) Показать номер
    Посмотреть контакты
    Дом в Ленинградская область, Ломоносовский район, Виллозское городское ... - Фото 1
    Дом в Ленинградская область, Ломоносовский район, Виллозское городское ... - Фото 2
    2 этажа, общая площадь 228м², участок 7 соток

    Арт.Предлагаю к продаже замечательный большой дом Фундамент -сваи , плита. Стены -кирпич парезованый 2NF , кровля -мягкая черепица , фасад,утепленный 100мм,закрытый мембраной от ветра ,облицованный пластиком. Окна -профиль геалан,стекло тройное....
    • 2 эт.
    • 228 м²
    • 7 сот.
    30 000 000 Р
    Агент
    +7 (981) Показать номер
    Посмотреть контакты

    Не нашли подходящего объявления?

    Оставьте заявку, и наши риэлторы подберут купить дом в районе

    (0)