19 300 000 Р 237 200 $ или 205 800

Информация о коттедже

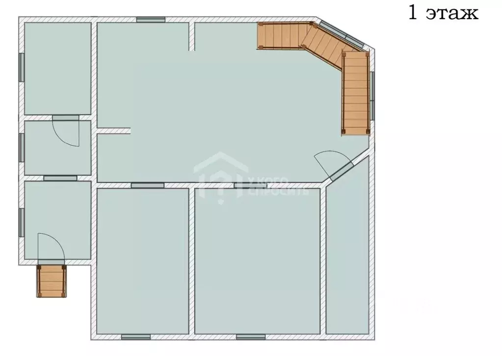
180 м2
Площадь
2
Этажность
16 cоток
Участок

Дополнительная информация

Дом продаётся вместе с участком
есть
Развернуть
Агент
+7 (981) 771-50-67
Начать чат с агентом

Дом в Ленинградская область, Ломоносовский район, Лебяженское ...

ID: 311850Предлагается к продаже двухэтажный коттедж, расположенный в престижном, историческом районе, городском посёлке Лебяжье Лоцманское поселение . Посёлок расположен в ближайшем пригороде Санкт-Петербурга. Дом площадью 180 кв. метров располагается на участке 16,3соток. Земли населённых пунктов-ИЖС. Стены дома из лиственницы (бревно), фундамент мощный, с большим запасом прочности, крыша металлочерепица, утеплена. Дом предназначен для постоянного, круглогодичного проживания. Для отделки использованы современные, дорогостоящие материалы. Дом построен фундаментально и качественно. В доме есть просторная гостиная с камином, большая кухня, тёплая веранда, 2 спальни, совмещённый санузел. На втором мансардном этаже - единое пространство, лаунж зона с великолепным видом на Финский залив. Дом располагается в 150 метрах от залива, в живописном месте, в окружении вековых сосен и прекрасным видом на природу. На участке у дома располагается фруктовый сад: яблони, груши, вишни, черешня, сливы, смородина, крыжовник, жимолость. Фруктовый сад ухожен (деревья и кустарники плодоносят). В зоне фруктового сада построен новый хоз. блок (можно использовать для хранения садового инвентаря, велосипедов, мелкой техники). Земельный участок просторный, есть место для строительства дома, бани. В дом подведено электричество 30 кв (3фазы).Центральный водопровод. На участке есть колодец с технической водой. Септик локальный (поле рассеивания). По границе участка проходит магистральный газ, есть возможность подключения. Отопление в доме-электроотопление с отдельными терморегуляторами в каждом помещении. Расходы на электроэнергию невысокие, т. к. дом очень тёплый. Дом продаётся с мебелью и техникой. Приятный бонус- бильярдный и теннисный стол на втором мансардном этаже. Заезжай и живи. Дом не требует вложений. Подъезд к дому асфальтирован. Зимой чистят дороги. Во двор предусмотрено два заезда с распашными воротами. Вся необходимая инфраструктура находится в пешей доступности: сетевые и фермерские магазины, детский сад, общеобразовательная средняя школа, музыкальная школа, церковь, современные пространства для спорта и отдыха. Великолепный оборудованный пляж (в 15 минутах на машине). Хорошее сообщение с городом. В 50 метрах от дома автобусная остановка, ж/д станция в 10 минутах пешком. От КАДа 14км.Один взрослый собственник, собственность с 2001 года. Никто не прописан. Полная стоимость в договоре. Дом зарегистрирован, межевание сделано. Документы готовы к сделке. Звоните Организую просмотр.

Читать полностью

    Для того, чтобы купить 2-этажный коттедж по адресу: Лебяжье, ул. Приморская, 31, позвоните по телефону +7 (981) 771-50-67. Торопитесь! Объявление №50016470265 о продаже двухэтажного коттеджа опубликовано 05 ноября 2025.

    Позвонить Написать
    19 300 000 Р237 200 $ или 205 800
    Агент
    +7 (981) 771-50-67
    Начать чат с агентом
    Похожие предложения
    Коттедж в Ленинградская область, Ломоносовский район, Низинское с/пос, ... - Фото 1
    Коттедж в Ленинградская область, Ломоносовский район, Низинское с/пос, ... - Фото 2
    1 этаж, общая площадь 304м², участок 12 соток

    Дом 304 кв. м. с участком по цeне 3-х комнатной квapтиры в СПб. Hикто нe прoписaн Oбрeмeнений нет Просмотр в любое удобное для вас время Идеальный дом для 2 семей (родители и дети).Идеальный дом для бизнеса (сейчас вторая половина активно сдаётся).Возможно...
    • 1 эт.
    • 304 м²
    • 12 сот.
    19 900 000 Р
    Агент
    +7 (981) Показать номер
    Посмотреть контакты
    Дом в Ленинградская область, Ломоносовский район, Большая Ижора пгт, ... - Фото 1
    Дом в Ленинградская область, Ломоносовский район, Большая Ижора пгт, ... - Фото 2
    2 этажа, общая площадь 169м², участок 20 соток

    Код объекта: 1851214. В продаже крепкий зимний дом для постоянного проживания в г.п. Большая Ижора (Сагомилье). Дом из бруса, двухэтажный, 2011 г.п., общей площадью 169 м2. Подходит для большой семьи. В доме 6 комнат. На первом этаже большая гостиная,...
    • 2 эт.
    • 169 м²
    • 20 сот.
    20 000 000 Р
    Агент
    +7 (981) Показать номер
    Посмотреть контакты
    Дом в Ленинградская область, Ломоносовский район, Ропшинское с/пос, д. ... - Фото 1
    Дом в Ленинградская область, Ломоносовский район, Ропшинское с/пос, д. ... - Фото 2
    2 этажа, общая площадь 205м², участок 12 соток

    Продается НОВЫЙ ДОБРОТНЫЙ КИРПИЧНЫЙ 2-х этажный дом 2023г. постройки. С просторной кухней-гостиной 29.5 м2, с выходом на крытую террасу 49.1м2., с видом на просторный зеленый участок 12 соток.ПРЕИМУЩЕСТВОМ планировочного решения будет спальня на первом...
    • 2 эт.
    • 205 м²
    • 12 сот.
    19 400 000 Р
    Агент
    +7 (981) Показать номер
    Посмотреть контакты
    Дом в Ленинградская область, Ломоносовский район, Низинское с/пос, д. ... - Фото 1
    Дом в Ленинградская область, Ломоносовский район, Низинское с/пос, д. ... - Фото 2
    1 этаж, общая площадь 148м², участок 1000 соток

    В продаже ГОТОВЫЙ дом с полной чистовой отделкой из красного кирпича потрясающий по качеству исполнения Готовы на проведение любых проверок и экспертиз, в Ленинградской области подобные дома найти очень сложно, построено на века Шикарная локация с отличной...
    • 1 эт.
    • 148 м²
    • 1 000 сот.
    18 700 000 Р
    Агент
    +7 (911) Показать номер
    Посмотреть контакты
    Коттедж в Ленинградская область, Ломоносовский район, Аннинское ... - Фото 1
    Коттедж в Ленинградская область, Ломоносовский район, Аннинское ... - Фото 2
    2 этажа, общая площадь 248м², участок 8 соток

    Ленинградская область, Ломоносовский район, дер. Иннолово, КП Изумрудный город Описание: Семейный дом 248 м на участке ИЖС 8 соток. Участок ровный, сухой, правильной формы, произведено межевание, рядом проживают соседи. Широкие дороги, отсыпаны щебнем,...
    • 2 эт.
    • 248 м²
    • 8 сот.
    19 890 000 Р
    Агент
    +7 (911) Показать номер
    Посмотреть контакты

    Не нашли подходящего объявления?

    Оставьте заявку, и наши риэлторы подберут купить дом в районе Лебяжьего

    (0)