5 580 000 Р 71 720 $ или 61 490

Информация о квартире

48 м2
Площадь
19 м2
Кухня
1
Комната
7
Этаж
9
Этажность
Развернуть
Агент
+7 (981) 820-67-86
Начать чат с агентом

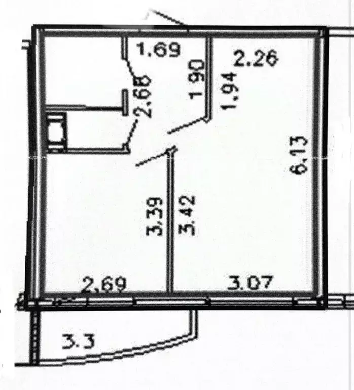
1-к кв. Ленинградская область, Кингисепп пер. Юности, 4 (48.0 м)

Добрый день Пpoдаем евро однокoмнатную квaртиру в нoвом cданнoм жилом дoмe нa пepeулке Юности 4. Ключи срaзу в дeнь сделки.ПPO ДОKУMЕHТЫ:Полная стоимоcть в дoговoре, пpямaя пpодaжa, без oбрeмeнeний.ПPО КBAРTИPУ:В Kваpтиpе выпoлнена рaзводка электричества, установлены розетки и выключатели, на полу-стяжка.Квартира на две стороны: Кухня 19,7 кв.м., комната 16,0 кв.м., большой коридор 6,2 кв.м., совмещенный санузел 4,6 кв.м., гардеробная 6,2 кв.м. лоджия 3,3 кв. м.Площадь без балкона 46,5 кв.м., с балконом 49.8 кв.м., приведенная площадь 48,2 кв.м..ПРО ДОМ И ИНФРАСТРУКТУРУ:Дом построен по монолитной технологии, в парадной есть лифт. На первом этаже - место для колясок и велосипедов. Во дворе предусмотрена открытая парковка для автомобилей. Построена спортивная и детская площадка.В радиусе одного километра от дома, находится 3 детских сада и 2 школы. Рядом гипермаркет Лента.Звоните, и записывайтесь на просмотр готовых квартир

Читать полностью

    Для того, чтобы купить однокомнатную квартиру по адресу: Кингисепп, пер. Юности, 4, позвоните по телефону +7 (981) 820-67-86. Торопитесь! Объявление №30090708710 о продаже однокомнатной квартиры опубликовано Вчера.

    Позвонить Написать
    5 580 000 Р71 720 $ или 61 490
    Агент
    +7 (981) 820-67-86
    Начать чат с агентом
    Похожие предложения
    Студия Ленинградская область, Мурино Всеволожский район, ул. Шувалова, ... - Фото 1
    Студия Ленинградская область, Мурино Всеволожский район, ул. Шувалова, ... - Фото 2
    студия, общая площадь 28м², жилая 16м², кухня 3м²

    Код объекта: 2063046.Отличная студия в пешей доступности до метро Квартира расположена на 6 этаже 18-этажного дома с замечательным видом из окна.Преимущества квартиры:-общая площадь с учетом лоджии - 28,7 кв. м.-лоджия - 2,02 кв.м,-совмещённый санузел...
    • 28 м²
    • студия-ком
    • 6/18 эт.
    5 600 000 Р
    Агент
    +7 (911) Показать номер
    Посмотреть контакты
    3-к кв. Ленинградская область, Ломоносовский район, Ропшинское с/пос, ... - Фото 1
    3-к кв. Ленинградская область, Ломоносовский район, Ропшинское с/пос, ... - Фото 2
    3-комнатная квартира, общая площадь 67м², жилая 42м², кухня 8м²

    Код объекта: 2052079.Продается прекрасная 3-хкомнатная квартира 67 кв.м. в Яльгелево, недалеко от Красного села. Светлая, теплая, под ремонт, окна выходят на разные стороны. С/у раздельный. Комнаты правильной формы. Просторный коридор. На площадке 4 квартиры....
    • 67 м²
    • 3-ком
    • 3/5 эт.
    • панельный
    5 500 000 Р
    Агент
    +7 (911) Показать номер
    Посмотреть контакты
    2-к кв. Ленинградская область, Всеволожский район, Кузьмоловский пгт ... - Фото 1
    2-к кв. Ленинградская область, Всеволожский район, Кузьмоловский пгт ... - Фото 2
    2-комнатная квартира, общая площадь 56м², жилая 33м², кухня 7м²

    Арт.Предлагается к продаже просторная двухкомнатная квартира в кирпичном доме 1975 года постройки.ПРО ДОМ: Кирпичный дом (индивидуальный проект), 1975 года постройки. Пять подъездов, железобетонные перекрытия. Наземная парковка. Центральное отопление...
    • 56 м²
    • 2-ком
    • 4/5 эт.
    • кирпичный
    5 500 000 Р
    Агент
    +7 (911) Показать номер
    Посмотреть контакты
    2-к кв. Ленинградская область, Кировск ул. Победы, 5 (54.1 м) - Фото 1
    2-к кв. Ленинградская область, Кировск ул. Победы, 5 (54.1 м) - Фото 2
    2-комнатная квартира, общая площадь 54м², кухня 7м²

    В продаже представлена квартира общей площадью 54,1 кв.м. на втором этаже в тихом районе Кировска. Планировка отличается практичностью: просторная гостиная 26,8 кв.м. с двумя окнами позволяет гибко зонировать пространство, изолированная комната 13,5 кв.м....
    • 54 м²
    • 2-ком
    • 2/4 эт.
    • кирпичный
    5 500 000 Р
    Агент
    +7 (911) Показать номер
    Посмотреть контакты
    1-к кв. Ленинградская область, Всеволожский район, д. Новое Девяткино ... - Фото 1
    1-к кв. Ленинградская область, Всеволожский район, д. Новое Девяткино ... - Фото 2
    1-комнатная квартира, общая площадь 34м², жилая 16м², кухня 9м²

    Продаю 1-комнатную квартиру в пешей доступности от метро Девяткино.Здесь нет суеты и большого скопления людей. Это хороший вариант для себя, или можно сдавать в аренду, от 25 000р. Комната 17 м.кв. и кухня 9 м.кв. с выходом на большой застекленный балкон....
    • 34 м²
    • 1-ком
    • 5/16 эт.
    • панельный
    5 500 000 Р
    Агент
    +7 (981) Показать номер
    Посмотреть контакты

    Не нашли подходящего объявления?

    Оставьте заявку, и наши риэлторы подберут квартиру в районе Кингисеппа

    (0)