5 500 000 Р 70 690 $ или 60 610

Информация о квартире

54 м2
Площадь
7 м2
Кухня
2
Комнаты
2
Этаж
4
Этажность

Дополнительная информация

Тип дома
кирпичный
Развернуть
Агент
+7 (911) 848-35-18
Начать чат с агентом

2-к кв. Ленинградская область, Кировск ул. Победы, 5 (54.1 м)

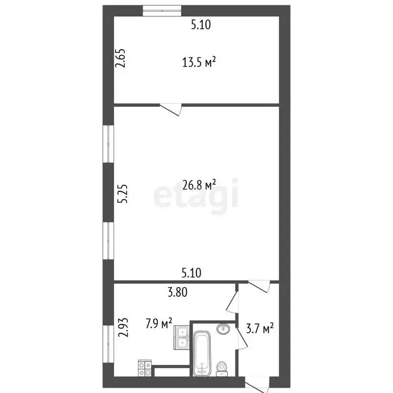
В продаже представлена квартира общей площадью 54,1 кв.м. на втором этаже в тихом районе Кировска. Планировка отличается практичностью: просторная гостиная 26,8 кв.м. с двумя окнами позволяет гибко зонировать пространство, изолированная комната 13,5 кв.м. обеспечивает уединение, а кухня 7,9 кв.м. функционально организована. Важное преимущество — отсутствие смежных стен с соседями, что гарантирует дополнительную тишину. Объект реализуется в отличном состоянии с выполненным качественным ремонтом, полной заменой инженерных коммуникаций и готовой меблировкой с техникой, что позволяет заселиться сразу после сделки. Дом содержится в порядке: проведен ремонт систем электроснабжения, теплоснабжения и водоснабжения, обновлена крыша и подъезд. Инфраструктура района развита — в шаговой доступности сквер с детской площадкой, парк, поликлиника, сетевые магазины, рынок, детские и спортивные учреждения. Транспортная доступность высокая: остановка общественного транспорта рядом, что обеспечивает быстрое сообщение с Санкт-Петербургом. Квартира является первой собственностью, продается одним владельцем по полной стоимости в договоре. Рассматриваются все формы расчетов, включая ипотеку, материнский капитал и субсидии. Это редкое предложение на рынке, сочетающее удачную планировку, тихое расположение и готовность к комфортному проживанию.Код пользователя: 193954Номер в базе:

Читать полностью

    Для того, чтобы купить двухкомнатную квартиру по адресу: Кировск, ул. Победы, 5, позвоните по телефону +7 (911) 848-35-18. Торопитесь! Объявление №30093890947 о продаже двухкомнатной квартиры опубликовано Вчера.

    Позвонить Написать
    5 500 000 Р70 690 $ или 60 610
    Агент
    +7 (911) 848-35-18
    Начать чат с агентом
    Похожие предложения
    2-комнатная квартира: Кировск, улица Победы, 5 (54.1 м) - Фото 1
    2-комнатная квартира: Кировск, улица Победы, 5 (54.1 м) - Фото 2
    2-комнатная квартира, общая площадь 54м², жилая 41м², кухня 7м²

    В продаже представлена квартира общей площадью 54,1 кв.м. на втором этаже в тихом районе Кировска. Планировка отличается практичностью: просторная гостиная 26,8 кв.м. с двумя окнами позволяет гибко зонировать пространство, изолированная комната 13,5 кв.м....
    • 54 м²
    • 2-ком
    • 2/4 эт.
    5 500 000 Р
    Агент
    +7 (911) Показать номер
    Посмотреть контакты
    1-к кв. Ленинградская область, Кировск Пионерская ул., 1 (35.88 м) - Фото 1
    1-к кв. Ленинградская область, Кировск Пионерская ул., 1 (35.88 м) - Фото 2
    1-комнатная квартира, общая площадь 35м², жилая 15м², кухня 8м²

    ID: 1915532Прямая продажа,светлая квартира в центре Кировска, просторная кухня и прихожая. Рядом администрация, автовокзал, рынок, магазины, остановки общ. транспорта, парк на высоком берегу у Невы.
    • 35 м²
    • 1-ком
    • 2/5 эт.
    • кирпичный
    5 400 000 Р
    Агент
    +7 (981) Показать номер
    Посмотреть контакты
    2-к кв. Ленинградская область, Отрадное Кировский район, Советская ... - Фото 1
    2-к кв. Ленинградская область, Отрадное Кировский район, Советская ... - Фото 2
    2-комнатная квартира, общая площадь 42м², жилая 23м², кухня 7м²

    Ищете место, где можно отдыхать от городской суеты, не теряя связи с мегаполисом? Эта квартира в самом центре Отрадного - идеальный баланс комфорта и экологии.Квартира очень теплая и уютная:Планировка: Две просторные изолированные комнаты — 14 кв.м и...
    • 42 м²
    • 2-ком
    • 1/5 эт.
    5 490 000 Р
    Агент
    +7 (989) Показать номер
    Посмотреть контакты
    2-к кв. Ленинградская область, Шлиссельбург Кировский район, ул. ... - Фото 1
    2-к кв. Ленинградская область, Шлиссельбург Кировский район, ул. ... - Фото 2
    2-комнатная квартира, общая площадь 52м², жилая 29м², кухня 8м²

    В продаже уютная, светлая, видовая 2-комнатная квартира в Шлиссельбурге, общей площадью 52.9 кв. м с хорошим ремонтом. Идеальный вариант для семьи благодаря удобной планировке и близости к инфраструктуре. Описание квартиры:Площадь квартиры, без учета...
    • 52 м²
    • 2-ком
    • 5/5 эт.
    • панельный
    5 450 000 Р
    Агент
    +7 (981) Показать номер
    Посмотреть контакты
    1-к кв. Ленинградская область, Ломоносовский район, Русско-Высоцкое ... - Фото 1
    1-к кв. Ленинградская область, Ломоносовский район, Русско-Высоцкое ... - Фото 2
    1-комнатная квартира, общая площадь 38м², жилая 16м², кухня 10м²

    Самое выгодное предложение Видовая квартира Показы по договоренности только по телефонуКвартира в ипотекеОдин собственникПолная сумму в договоре.Выйти на сделку можем хоть завтраНомер объекта: 1/539479/18051
    • 38 м²
    • 1-ком
    • 5/5 эт.
    • панельный
    5 421 000 Р
    Агент
    +7 (911) Показать номер
    Посмотреть контакты

    Не нашли подходящего объявления?

    Оставьте заявку, и наши риэлторы подберут квартиру в районе Кировска

    (0)