5 000 000 Р 61 620 $ или 53 520

Информация о коттедже

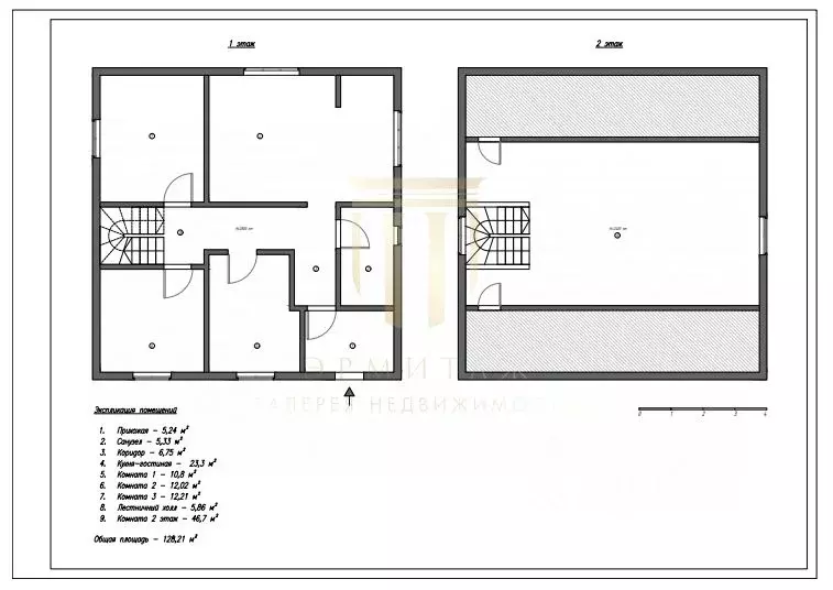
128 м2
Площадь
2
Этажность
6 cоток
Участок

Дополнительная информация

Дом продаётся вместе с участком
есть
Развернуть
Агент
+7 (911) 180-61-96
Начать чат с агентом

Дом в Ленинградская область, Выборгский район, Гончаровское с/пос, ...

Арт.Срочно Продается современный каркасный дом 130 кв.м. (2,5 км от ст. Лебедевка).Дом построен в 2025 году для собственного проживания, с душой и вниманием к каждой детали. Продажа в связи с личными обстоятельствами (переезд/изменение планов). При строительстве использованы только качественные материалы, соответствующие зимним стандартам.Фундамент: надежная монолитная плита.Стены: утепление плитами Изоплат (Белтермо) 20 мм + каменная вата Роквул 150 мм. Общая толщина стены обеспечивает комфортное тепло даже в сильные морозы.Кровля и перекрытия: утепление Роквул 200 мм, кровля — металлочерепица.Экстерьер: дом обшит фасадными панелями Docke (не требует ухода и красиво выглядит), установлены энергоэффективные двухкамерные стеклопакеты.Планировка: Первый этаж продуман для жизни: большая кухня-гостиная, три спальни и санузел. По всему периметру первого этажа смонтирована система теплый пол — комфортно и уютно даже в межсезонье. Второй этаж — свободная планировка под ваши идеи.Коммуникации:Электричество 15 кВт.Вода заведена в дом (зимний водопровод, эксплуатация круглый год).Автономная канализация (септик).Отопление: комбинированное (теплые полы + электрические конвекторы). Есть техническая возможность установки камина для создания особой атмосферы.Участок разработан, выровнен, есть дренажная система. Выполнен удобный заезд на две машины.Высажены молодые плодовые деревья (яблони, груши, сливы, голубика).Главное богатство — природа Дом находится в непосредственной близости от соснового бора. До озера Лебединое — 5 минут пешком. В 10 минутах езды — песчаные карьеры для купания.В СНТ есть продуктовый магазин и финский колодец с питьевой водой.До Выборга — 20 км.Торг

Читать полностью

    Для того, чтобы купить 2-этажный коттедж по адресу: , позвоните по телефону +7 (911) 180-61-96. Торопитесь! Объявление №50016810341 о продаже двухэтажного коттеджа опубликовано 26 марта 2026.

    Позвонить Написать
    5 000 000 Р61 620 $ или 53 520
    Агент
    +7 (911) 180-61-96
    Начать чат с агентом
    Похожие предложения в Выборгском районе
    Дом в Ленинградская область, Выборгский район, Приморское городское ... - Фото 1
    Дом в Ленинградская область, Выборгский район, Приморское городское ... - Фото 2
    2 этажа, общая площадь 81м², участок 18 соток

    339670 Продается дом ИЖС 1993 г.п. с участком 18 ст., расположенный в пос. Малышево. Выборгского района. Дом, общей площадью 81 м2, размером 7,5 х 6,5 м., выполнен из бруса, внешняя облицовка кирпич, внутренняя вагонка. На первом этаже расположены:...
    • 2 эт.
    • 81 м²
    • 18 сот.
    4 900 000 Р
    Агент
    +7 (981) Показать номер
    Посмотреть контакты
    Продажа дома, Советский, Выборгский район, городской посёлок Советский - Фото 1
    Продажа дома, Советский, Выборгский район, городской посёлок Советский - Фото 2
    Продажа дома, Советский, Выборгский район, городской посёлок Советский - Фото 3
    Продажа дома, Советский, Выборгский район, городской посёлок Советский - Фото 4
    Продажа дома, Советский, Выборгский район, городской посёлок Советский - Фото 5
    Продажа дома, Советский, Выборгский район, городской посёлок Советский - Фото 6
    Продажа дома, Советский, Выборгский район, городской посёлок Советский - Фото 7
    Продажа дома, Советский, Выборгский район, городской посёлок Советский - Фото 8
    Продажа дома, Советский, Выборгский район, городской посёлок Советский - Фото 9
    Продажа дома, Советский, Выборгский район, городской посёлок Советский - Фото 10
    Продажа дома, Советский, Выборгский район, городской посёлок Советский - Фото 11
    Продажа дома, Советский, Выборгский район, городской посёлок Советский - Фото 12
    Продажа дома, Советский, Выборгский район, городской посёлок Советский - Фото 13
    2 этажа, общая площадь 94м²

    Продаётся прекрасный дом.Год постройки 2021,общая площадь 94 м. Дом продаём с участком. Есть колодец с питьевой водой и поводом воды в дом, септик с проводкой из дома, без водопровода внутри. Проведено и разведено по всем комнатам дома электричество. Дом...
    • 2 эт.
    • 94 м²
    5 000 000 Р
    Агент
    +7 (921) Показать номер
    Посмотреть контакты
    Дом в Ленинградская область, Выборгский район, пос. Первомайское ул. ... - Фото 1
    Дом в Ленинградская область, Выборгский район, пос. Первомайское ул. ... - Фото 2
    1 этаж, общая площадь 26м², участок 6 соток

    343355Предлагается к продаже 1-этажный жилой домик г.п.2016. площадью 26,1кв.м. + застекленная веранда 10 кв.м, на земельном участке 6 соток ИЖС. Лен.обл.Выборгский р-он.п.Первомайское ул.Вишневая д.2А. Все в собственности. Конструктив: металлический...
    • 1 эт.
    • 26 м²
    • 6 сот.
    4 950 000 Р
    Агент
    +7 (981) Показать номер
    Посмотреть контакты
    Дом в Ленинградская область, Выборгский район, Рощинское городское ... - Фото 1
    Дом в Ленинградская область, Выборгский район, Рощинское городское ... - Фото 2
    1 этаж, общая площадь 52м², участок 7 соток

    Код объекта: 2082603.Продаётся уютный дом в посёлке Победа, Выборгский район Ленинградской области — идеальное решение для тех, кто ищет спокойное место для жизни вдали от городской суеты. Дом построен из качественных материалов: каркас деревянный, кровля...
    • 1 эт.
    • 52 м²
    • 7 сот.
    4 950 000 Р
    Агент
    +7 (911) Показать номер
    Посмотреть контакты
    Дом в Ленинградская область, Выборгский район, Приморское городское ... - Фото 1
    Дом в Ленинградская область, Выборгский район, Приморское городское ... - Фото 2
    1 этаж, общая площадь 51м², участок 4 сотки

    Арт.. Продается каркасный дом с участком 4 сотки в живописном месте Ленинградской области, вблизи множества озер и свежего воздуха. Все фото соответствуют действительности Дом, идеальное предложение как для самостоятельного проживания, так и для сдачи...
    • 1 эт.
    • 51 м²
    • 4 сот.
    5 000 000 Р
    Агент
    +7 (981) Показать номер
    Посмотреть контакты

    Не нашли подходящего объявления?

    Оставьте заявку, и наши риэлторы подберут купить дом в районе Выборгского района

    (0)