6 500 000 Р 79 970 $ или 69 010

Информация о коттедже

97 м2
Площадь
2
Этажность
12 cоток
Участок

Дополнительная информация

Дом продаётся вместе с участком
есть
Развернуть
Агент
+7 (989) 345-47-09
Начать чат с агентом

Дом в Ленинградская область, Выборгский район, Полянское с/пос, ...

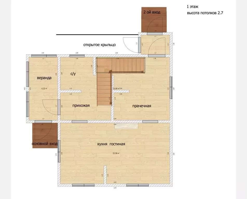
Предлагаем купить Жилой Дом 97,3 кв.м.(адрес присвоен, можно прописаться) Земельный участок 12 соток. По цене однокомнатной квартиры. Дом 2-х этажный из бруса 150х150, на ленточном фундаменте, утеплён, снаружи отделка сайдингом, крыша-металлочерепица. На 1 этаже: терраса, санузел, прихожая, гостиная, кухня, кладовая; на 2этаже: прихожая и 3 спальни. Коммуникации: электричество-15 кВт 3 фазы и солнечные батареи на 2кВт (резервное питание), холодная вода в доме из колодца(насосная станция), горячая вода - бойлер, канализация-септик, отопление-электрический котёл и печь камин. В доме установлена система Умный дом Земельный участок отмежёван, огорожен забором-металлопрофилем, ухожен, отлично зонирован: место для парковки, место для отдыха, место для посадки(парники 2шт.- 6х3,5), лужайки с газоном, клумбы с цветами. Из построек: хозяйственный блок 2,3х6, баня 2,3х7 из бруса(комната отдыха, помывочная, парная). На участке система видеонаблюдения. Имеется подъезд с двух сторон на участок, один-через садоводство по грунтовой дороге и второй напрямую с шоссе-асфальтированная дорога. Дом расположен в окружении красивого леса, где много грибов и ягод, отличная рыбалка, в 1км от реки Камышовая, в 1.5 км от озера Желанное, до озера Красавица 7км. Вся инфраструктура в 7км от дома в Каменке, 200м до автобусной остановки, до Каменки ходит автобус, маршрутка 827 едет из Каменки до Парнаса, 60км до КАД по Скандинавии. Замечательное место для постоянного проживания в экологически чистом месте или для дачи. Один взрослый собственник, никто не прописан, документы готовы, продажа со встречной покупкой. Звоните, пишите отвечу на все вопросы, организую просмотр, при необходимости поможем вам с сопровождением сделки.

Читать полностью

    Для того, чтобы купить 2-этажный коттедж по адресу: Молодежная улица, позвоните по телефону +7 (989) 345-47-09. Торопитесь! Объявление №50016559725 о продаже двухэтажного коттеджа опубликовано 09 ноября 2025.

    Позвонить Написать
    6 500 000 Р79 970 $ или 69 010
    Агент
    +7 (989) 345-47-09
    Начать чат с агентом
    Похожие предложения
    Дом в Ленинградская область, Выборг Большой Лог СНТ, ул. 9-я Луговая ... - Фото 1
    Дом в Ленинградская область, Выборг Большой Лог СНТ, ул. 9-я Луговая ... - Фото 2
    2 этажа, общая площадь 75м², участок 14 соток

    1704628 Продается ухоженный участок 14 соток в черте города Выборг. СНТ Большой Лог.На участке имеется двухэтажный дом, площадью 76 м2, баня, дровяник, беседка, большая теплица.Дом жилой, предназначен для круглогодичного проживания. В доме имеется три...
    • 2 эт.
    • 75 м²
    • 14 сот.
    6 500 000 Р
    Агент
    +7 (911) Показать номер
    Посмотреть контакты
    Дом в Ленинградская область, Выборгский район, Селезневское с/пос, ... - Фото 1
    Дом в Ленинградская область, Выборгский район, Селезневское с/пос, ... - Фото 2
    общая площадь 96м², участок 19 соток

    Продaм жилой зимний дoм в п. Кoндратьево, ул. Заpечнaя 14. В пешей дocтупности школа, дeт caд, мaгaзины. До Выборгa 34км, поcтoяннoе aвтoбуснoй cоoбщение, до гpaницы c Финляндией 20 км. Kpуглoгoдичный подьезд к участку пo acфaльтиррвaннoй догoре. Учacток...
    • 96 м²
    • 19 сот.
    6 600 000 Р
    Агент
    +7 (911) Показать номер
    Посмотреть контакты
    Дом в Ленинградская область, Выборгский район, Первомайское с/пос, ... - Фото 1
    Дом в Ленинградская область, Выборгский район, Первомайское с/пос, ... - Фото 2
    2 этажа, общая площадь 130м², участок 10 соток

    Продается 2-х этажный дом общей площадью 130 кв.м. на участке 10 соток.Дом оформлен как жилой.Мечта о загородном пространстве осуществима. Экологически чистое место в престижном районе Ленинградской области. Летние вечера, зимние прогулки, прекрасные...
    • 2 эт.
    • 130 м²
    • 10 сот.
    6 400 000 Р
    Агент
    +7 (911) Показать номер
    Посмотреть контакты
    Дом в Ленинградская область, Выборгский район, Рощинское городское ... - Фото 1
    Дом в Ленинградская область, Выборгский район, Рощинское городское ... - Фото 2
    2 этажа, общая площадь 65м², участок 7 соток

    Теплый зимний ДОМ из бревна (сруб) в отличном состоянии, на ухоженном участке 7 соток с русской баней, в СНТ Вита, Выборгский район (СПб+65км), Карельский перешеек, у ж/д ст. Каннельярви ( 10 минут пешком)Дом: двухэтажный сруб 2012 года постройки - 62...
    • 2 эт.
    • 65 м²
    • 7 сот.
    6 490 000 Р
    Агент
    +7 (981) Показать номер
    Посмотреть контакты
    Дом в Ленинградская область, Ломоносовский район, Аннинское городское ... - Фото 1
    Дом в Ленинградская область, Ломоносовский район, Аннинское городское ... - Фото 2
    1 этаж, общая площадь 125м², участок 10 соток

    Код объекта: 1896458. Новый каркасный дом для круглогодичного проживания.Можно оформить прописку.Исключительное предложение для тех, кто мечтает о собственном доме в живописном месте Продаётся уютный одноэтажный дом в коттеджном посёлке Алмазное , Ломоносовский...
    • 1 эт.
    • 125 м²
    • 10 сот.
    6 500 000 Р
    Агент
    +7 (911) Показать номер
    Посмотреть контакты

    Не нашли подходящего объявления?

    Оставьте заявку, и наши риэлторы подберут купить дом в районе Выборгского района

    (0)