1 500 000 Р 19 810 $ или 16 580

Информация об помещении

2
Этаж

Состояние и оснащение

Количество этажей
2
Развернуть
Агент
+7 (981) 280-05-90
Начать чат с агентом

Помещение свободного назначения в Ленинградская область, Выборг просп. ...

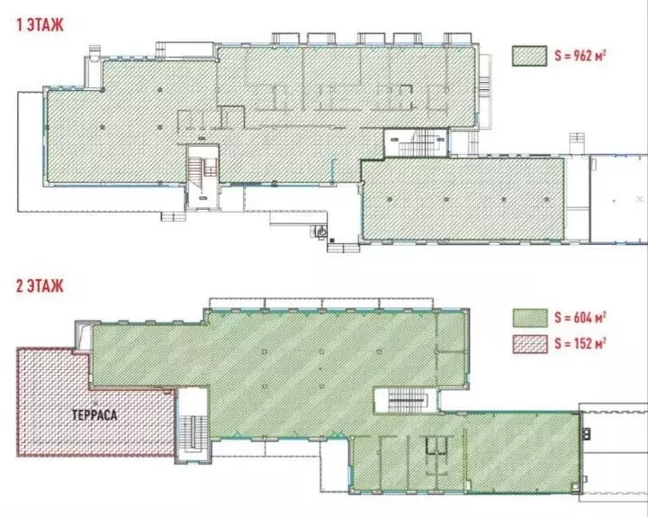
Ключевое торговое помещение в сердце Выборга Сдаем в аренду второй этаж площадью ~1250 м в знаковом здании Дом Торговли на главном проспекте Леннина, 11. Это не просто площади, а готовое бизнес-решение с гарантированным трафиком и статусом. Помещение правильной прямоугольной формы На первом этаже скоро заработает федеральная сеть - Лента , продуктовый ритейл со средним чеком, что подтверждает потенциал локации.1. Преимущества для вашего бизнеса:Легендарная локация: здание — архитектурная история города на центральном пешеходном проспекте. С одной стороны — Центральный парк, с другой — Яблоневый сад и старая брусчатка. Ежедневный трафик (население 75 000 жителей и плюс 2 миллионов туристов за 2025 год).2. Уже сформированный трафик и статус: ваш бизнес будет ассоциироваться с главным торговым адресом. Работающий ритейл на 1 этаже — лучшее доказательство жизнеспособности и проходимости места.3. Гибкость: сдается второй этаж. Есть возможность рассмотреть дополнительно аренду цокольного этажа (~1300 м) отдельно или в комплексе для создания многофункционального кластера.4. Соседи: рядом уже работает Fix Price, Военторг, WB, Ресо, стоматология, химчистка, К Б, Coffee Drive, Здравсити, Пятерочка, кулинария, салон красоты и др.Идеальная площадка для: - современного офисного центра (оpen-space, коворкинг); - ресторана или кофейни (современный фуд-холл); - шоу-рума, мультибрендового аутлета одежды, торговли по секторам; - центра развлечений (VR-арена, киберспорт, бильярд, боулинг, спортивный центр); - складской класстер; - фитнес-студии или wellness-центра.Технические характеристики:Площадь 2 этажа: ~1250 м (общая площадь здания ~5500 м).Высота потолков: 4.65 м ( )Панорамные окна в потолке: отличное естественное освещение.Отдельный вход с улицы, 2 грузовых лифта с цоколя.Коммуникации: электричество - 350 кВт (возможно увеличение), центральное отопление, ХВС/ГВС (собственная котельная), планируется газификация (на конец 2026 г.).Бесплатная парковка: ~50 мест для легковых авто перед зданием + зона разгрузки.Возможность дополнительно аренды складских площадей в цоколе или офисов на 2 этаже.Планировка: свободная, под зонирование.Договор (долгосрочной) аренды с собственником. Рассматриваем серьезных, долгосрочных арендаторов.Звоните, пишите, запишем вас на просмотр и обсудим условия Это место не будет свободным долго.

Читать полностью
    Позвонить Написать
    1 500 000 Р19 810 $ или 16 580
    Агент
    +7 (981) 280-05-90
    Начать чат с агентом
    Похожие предложения
    Помещение свободного назначения в Ленинградская область, Всеволожский ... - Фото 1
    ПЛАТИМ АГЕНТАМ. Поможем с планом рассадки, ремонтом, мебелью.Отдельно стоящее здание на первой линии домов вблизи коттеджного поселка Ламбери. Налоговая: 21. Лифты: . Вентиляция: Приточно-вытяжная. Кондиционирование: Сплит-системы. Безопасность: Круглосуточный...
    • 1/3 эт.
    1 554 738 Р
    Агент
    +7 (933) Показать номер
    Посмотреть контакты
    Помещение свободного назначения в Ленинградская область, Тосненский ... - Фото 1
    Помещение свободного назначения в Ленинградская область, Тосненский ... - Фото 2
    Просторное складское помещение 1680 м — идеальное решение для вашего бизнеса Предлагаем в аренду современный объект площадью 1680 м с отличными техническими характеристиками:- Нагрузка на пол: до 2 тонн на м- Высота потолков: 44,5 метра- Электрические...
    • 1/2 эт.
    1 596 000 Р
    Агент
    +7 (911) Показать номер
    Посмотреть контакты
    Помещение свободного назначения в Москва ул. Шеногина, 2 (164 м) - Фото 1
    Помещение свободного назначения в Москва ул. Шеногина, 2 (164 м) - Фото 2
    Аренда помещений свободного назначения в новом БЦ Sydney city, всего в 5 минутах от ММДЦ Москва-сити В аренду предлагаются помещения без отделки напрямую от ФСК БЕЗ КОМИССИИ БЦ Sydney city — это новый Бизнес-центр класса А всего в 5 минутах от ММДЦ...
    • 1/24 эт.
    1 528 920 Р
    Агент
    +7 (916) Показать номер
    Посмотреть контакты
    Помещение свободного назначения в Москва Лихоборская наб., 11С5 (1050 ... - Фото 1
    Помещение свободного назначения в Москва Лихоборская наб., 11С5 (1050 ... - Фото 2
    Площадь в аренду 1050 м2 на цокольном этаже с окнами, без ремонта в коммерческом здании с хорошим расположением - отличный выбор Много плюсов: хорошее расположение, кирпичные стены, ригеля, колонны, пропускная система, НДС включено в аренду Хорошо подойдёт...
    • -1/2 эт.
    1 575 000 Р
    Агент
    +7 (916) Показать номер
    Посмотреть контакты
    Помещение свободного назначения в Москва Калужская пл., 1К1 (239 м) - Фото 1
    Помещение свободного назначения в Москва Калужская пл., 1К1 (239 м) - Фото 2
    АРЕНДА помещения 239 м2 (1 этаж), Калужская пл. д.1 корп.1.Предлагается в аренду помещение на Калужской площади, ЦАО, г. Москва. Шаговая доступность от ст. метро Октябрьская — 1 минута пешком. Отличная пешеходная и транспортная доступность. Планировка...
    • 1/12 эт.
    1 550 000 Р
    Агент
    +7 (910) Показать номер
    Посмотреть контакты

    Не нашли подходящего объявления?

    Оставьте заявку, и наши риэлторы подберут псн в районе Выборга

    (0)