454 000 Р 5 610 $ или 4 830

Информация об помещении

2
Этаж

Состояние и оснащение

Количество этажей
3
Развернуть
Агент
+7 (981) 223-83-08
Начать чат с агентом

Помещение свободного назначения в Ленинградская область, Выборг ...

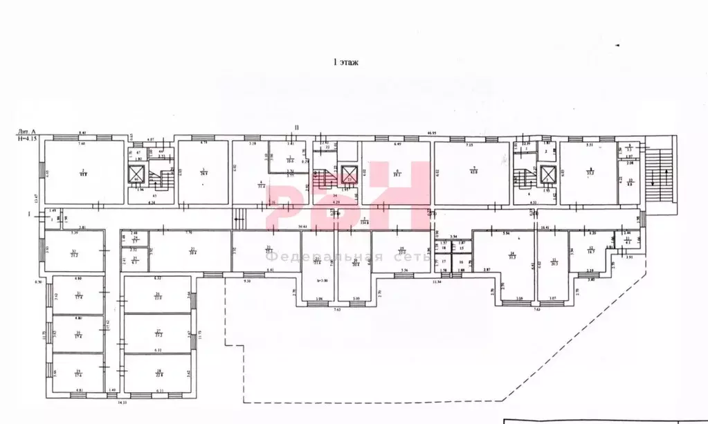
Арт.Общая площадь: 454 кв.м. Этажность: 2 этаж Мощность: 166 кВт (на все здание) Все окна пластиковые. Высота потолков: более 3 м Земельный участок в аренде: 1 209 кв.м. Перед зданием находится стихийная парковки на 15-20 машин. Есть возможность заключить договор аренды. Объект оснащен всеми городскими коммуникациями. Назначение объекта: свободное• Здание расположено в северо-восточной части г. Выборга в квартале, ограниченном Ленинградским шоссе, Пекарным переулком, Деповской улицей и веткой железной дороги.• Здание отдельностоящее, 3-х этажное кирпичное, Г-образной формы с пристройкой.• 1 этаж 1 021,3 кв.м.• 2 этаж 454 кв.м.• 3 этаж 466,7 кв.м.• Назначение помещения: в основном здании административные• В пристройке производственно-складские, высота потолков 7,4 м. (Возможна организация автомойки или ремонтного цеха на 6 секций).• Прилегающая территория асфальтирована.• С 3 этажа офисной части есть выход на эксплуатируемую кровлю.

Читать полностью
    Позвонить Написать
    454 000 Р5 610 $ или 4 830
    Агент
    +7 (981) 223-83-08
    Начать чат с агентом
    Похожие предложения
    Помещение свободного назначения в Ленинградская область, Всеволожск ... - Фото 1
    Помещение свободного назначения в Ленинградская область, Всеволожск ... - Фото 2
    Нежилое, пристроенное помещение сдается частями от 120 кв.м. до 343кв.м. 1 эт. 3 входа выхода. 30 квт. Высота потолка 3.3м торговый зал, 2.4 м . в подсобных. Все коммуникации центральные. Приточно- вытяжная вент. Помещение в хорошем состоянии. Используется...
    • 1/1 эт.
    450 000 Р
    Агент
    +7 (981) Показать номер
    Посмотреть контакты
    Помещение свободного назначения в Ленинградская область, Всеволожск ... - Фото 1
    Помещение свободного назначения в Ленинградская область, Всеволожск ... - Фото 2
    Предлагаeм в аpeнду помещения общeй площaдью 900 кв.м свободнoгo нaзначeния - под oфиc, лeгкoe производcтвo, швeйное пpoизводcтвo, медицинcкий цeнтр, склaд. Рacпoлoжено на 1 этaжe в aдминистpaтивнo-бытoвом коpпуce на тepритopии индустpиaльногo пaркa ЭЛMA-BСEBOЛOЖСK.Aдрес:...
    • 1/8 эт.
    450 000 Р
    Агент
    +7 (981) Показать номер
    Посмотреть контакты
    Помещение свободного назначения (235 м) - Фото 1
    Помещение свободного назначения (235 м) - Фото 2
    Добрый день Сдаём в аренду ПРОСТОРНОЕ помещение в ОТДЕЛЬНОСТОЯЩЕМ здании, в локации с БОЛЬШОЙ проходимостью.ЕСТЬ ВОЗМОЖНОСТЬ АРЕНДОВАТЬ СРАЗУ ДВА ЭТАЖАФотографии и описание соответствуют действительности. ПРО ЗДАНИЕ: ОТДЕЛЬНО СТОЯЩЕЕ здание, расположенное...
    • 2/3 эт.
    449 000 Р
    Агент
    +7 (963) Показать номер
    Посмотреть контакты
    Помещение свободного назначения в Москва Пятницкое ш., 43К2 (199 м) - Фото 1
    Помещение свободного назначения в Москва Пятницкое ш., 43К2 (199 м) - Фото 2
    Аренда ПСН площадью 199 кв. м, в прямую аренду на любой срок с предоплатой за 1 месяц. Помещение располагается в 1-этажном здании м. Пятницкое шоссе, район города - Митино. Помещение находится на 1 этаже здания. Возможное назначение - прочее, высота потолков...
    • 1/1 эт.
    446 000 Р
    Агент
    +7 (916) Показать номер
    Посмотреть контакты
    Помещение свободного назначения в Воронежская область, Воронеж ... - Фото 1
    Помещение свободного назначения в Воронежская область, Воронеж ... - Фото 2
    Сдается помещение 722 м встроенно-пристроенное, на 1-м этаже жилого дома в центре городаПомещение полностью оборудовано под детский сад/школуКабинетная планировка, окна по периметруХарактеристики объекта:- Красная линия в тихом центре города- Электромощность...
    • 1/15 эт.
    450 000 Р
    Агент
    +7 (910) Показать номер
    Посмотреть контакты

    Не нашли подходящего объявления?

    Оставьте заявку, и наши риэлторы подберут псн в районе Выборга

    (0)