478 300 Р 6 090 $ или 5 150

Информация о помещении и здании

2
Этаж
5
Этажность
Развернуть
Агент
+7 (911) 767-37-64
Начать чат с агентом

Офис в Ленинградская область, Выборг просп. Ленина, 10 (478 м)

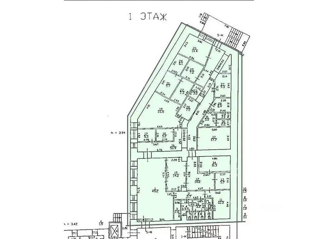
Код объекта: 7874 Аренда помещения свободного назначения Предлагается к аренде помещение площадью 478,3 м2 на втором этаже торгового комплекса. Два отдельных входа, высота потолков 3 м, выделеный вент канал. Помещение располагается в центре г. Выборг, в зоне активного пешеходного потока. Рядом располагается здание Центрального рынка и Выборгская крепость. Помещение подходит под любой вид деятельности.

Читать полностью
    Позвонить Написать
    478 300 Р6 090 $ или 5 150
    Агент
    +7 (911) 767-37-64
    Начать чат с агентом
    Похожие предложения
    Офис в Ленинградская область, Выборг просп. Ленина, 10 (478 м) - Фото 1
    Офис в Ленинградская область, Выборг просп. Ленина, 10 (478 м) - Фото 2
    2-й этаж, всего 5 этажей

    Код объекта: 7873 Аренда под салон красоты Предлагается к аренде помещение площадью 478,3 м2 на втором этаже торгового комплекса. Два отдельных входа, высота потолков 3 м, выделеный вент канал. Помещение располагается в центре г. Выборг, в зоне активного...
    • 2/5 эт.
    478 300 Р
    Агент
    +7 (911) Показать номер
    Посмотреть контакты
    Офис в Санкт-Петербург наб. Реки Мойки, 37 (314 м) - Фото 1
    Офис в Санкт-Петербург наб. Реки Мойки, 37 (314 м) - Фото 2
    1-й этаж, всего 5 этажей

    Офисное помещение 313.7 кв. м в бизнес-центре Мойки 37 .Район: Центральный. Ближайшие станции метро: Адмиралтейская, Невский проспект, Гостиный двор. Характеристики:- Класс: B; - Арендопригодная площадь: 3946; - Код налоговой: 41; - Высота потолков:...
    • 1/5 эт.
    470 550 Р
    Агент
    +7 (981) Показать номер
    Посмотреть контакты
    Офис в Нижегородская область, Нижний Новгород просп. Гагарина, 27 (423 ... - Фото 1
    Офис в Нижегородская область, Нижний Новгород просп. Гагарина, 27 (423 ... - Фото 2
    7-й этаж, всего 10 этажей

    Аренда офиса на ул. проспект Гагарина 27 административный корпус ОКА, Советский район.7-й этаж, 9 комнат, 2 лифта, 2 лестницы. Часы работы с 7:00 до 22:00 (но доступ возможен 24-7). Круглосуточная охрана, сплинкерная система пожаротушения, скс разводка...
    • 7/10 эт.
    485 181 Р
    Агент
    +7 (987) Показать номер
    Посмотреть контакты
    Офис в Санкт-Петербург Думская ул., 4 (242 м) - Фото 1
    Офис в Санкт-Петербург Думская ул., 4 (242 м) - Фото 2
    2-й этаж, всего 3 этажа

    Просторное пространство для деловых мероприятий в центре Санкт-Петербурга. Удобное расположение в двух минутах ходьбы от станции метро Невский Проспект делает это пространство максимально доступным для ваших гостей. Помещение находится на втором этаже...
    • 2/3 эт.
    484 358 Р
    Агент
    +7 (981) Показать номер
    Посмотреть контакты
    Офис в Санкт-Петербург Невский просп., 6 (196 м) - Фото 1
    Офис в Санкт-Петербург Невский просп., 6 (196 м) - Фото 2
    3-й этаж, всего 4 этажа

    Аренда офиса в Центральном районе, в 1 минуте ходьбы от станции метро Адмиралтейская.Офис освобождается 1 декабря.Офис расположен в Бизнес-Центре класса А.Технические характеристики:Площадь 196 м23 этажАренда:м2-Cмешанная планировкаКондиционированиеПриточно-вытяжная...
    • 3/4 эт.
    470 400 Р
    Агент
    +7 (981) Показать номер
    Посмотреть контакты

    Не нашли подходящего объявления?

    Оставьте заявку, и наши риэлторы подберут офис в районе Выборга

    (0)