12 000 000 Р 155 600 $ или 131 800

Информация о квартире

57 м2
Площадь
29 м2
Жилая
11 м2
Кухня
2
Комнаты
2
Этаж
3
Этажность

Дополнительная информация

Тип дома
монолит
Развернуть
Агент
+7 (982) 091-60-56
Начать чат с агентом

2-к кв. Ленинградская область, Выборг проезд Рельефный, 4 (57.2 м)

Малая Финляндия - квартал с собственной инфраструктурой, детскими площадками, зонами отдыха и причалами для катеров. Комфортные условия для жизни рядом с центром Выборга, на мысе Папула.Побережье Финского залива, на котором располагается жилой комплекс, является сказочным по красоте местом с наклонным рельефом. Отсюда открываются живописные виды на залив и на средневековый замок. Здесь шумит ветер и волна прибоя. А звуки города остаются далеко за пределами комплекса. Здесь спокойно, уютно и надежно.Трехэтажные дома-резиденции с лифтом у залива. Четыре корпуса: Порвоо , Раума , Савонлинна и Хамина с высокими потолками (2,89 м) и собственными террасами у жителей первых этажей, большими и широкими лоджиями на вторых и третьих этажах. Виды на залив у обладателей всех без исключения квартир.

Читать полностью
    Позвонить Написать
    12 000 000 Р155 600 $ или 131 800
    Агент
    +7 (982) 091-60-56
    Начать чат с агентом
    Похожие предложения
    2-к кв. Ленинградская область, Выборг наб. Адмирала Чичагова, 6 (64.8 ... - Фото 1
    2-к кв. Ленинградская область, Выборг наб. Адмирала Чичагова, 6 (64.8 ... - Фото 2
    2-комнатная квартира, общая площадь 64м², жилая 31м², кухня 16м²

    Уникальная локация тихий экологически-чистый район, город с богатой историей в окружении красивой природы. 15 минут пешком до исторического центра города. 30 минут езды до границы Финляндии. 7 минут ходьбы до Ж/Д вокзала, откуда можно за 1 час добраться...
    • 64 м²
    • 2-ком
    • 8/9 эт.
    • монолит
    11 290 000 Р
    Агент
    +7 (982) Показать номер
    Посмотреть контакты
    2-комнатная квартира, общая площадь 60м², жилая 30м², кухня 12м²

    Малая Финляндия - квартал с собственной инфраструктурой, детскими площадками, зонами отдыха и причалами для катеров. Комфортные условия для жизни рядом с центром Выборга, на мысе Папула.Побережье Финского залива, на котором располагается жилой комплекс,...
    • 60 м²
    • 2-ком
    • 1/3 эт.
    • монолит
    12 000 000 Р
    Агент
    +7 (982) Показать номер
    Посмотреть контакты
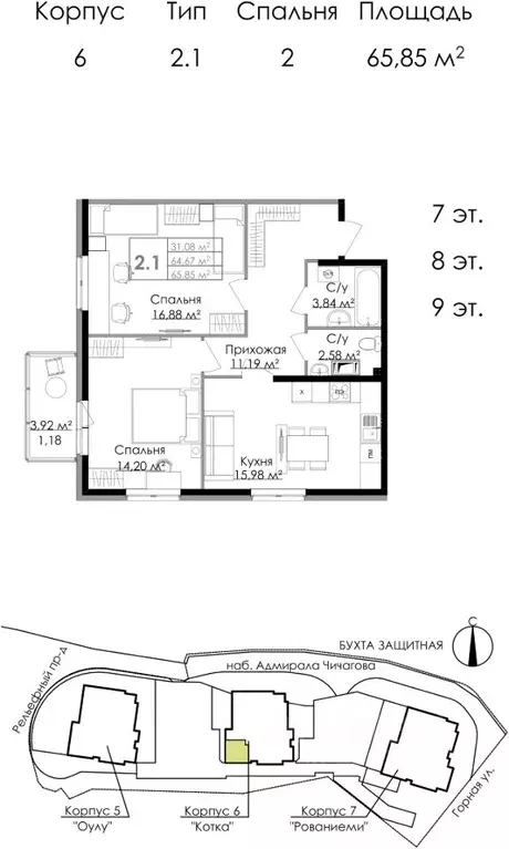
    2-к кв. Ленинградская область, Выборг наб. Адмирала Чичагова, 6 (65.85 ... - Фото 1
    2-к кв. Ленинградская область, Выборг наб. Адмирала Чичагова, 6 (65.85 ... - Фото 2
    2-комнатная квартира, общая площадь 65м², жилая 31м²

    Продаётся 2-комнатная квартира в сданном доме (Дом М6 - Котка), срок сдачи: IV-кв. 2023, общей площадью 65.85 кв.м., на 8 этаже. ЖИЛОЙ КОМПЛЕКС В ВЫБОРГЕ Малая Финляндия - квартал с собственной инфраструктурой, детскими площадками, зонами отдыха и причалами...
    • 65 м²
    • 2-ком
    • 8/9 эт.
    • монолит
    12 000 000 Р
    Агент
    +7 (982) Показать номер
    Посмотреть контакты
    2-к кв. Ленинградская область, Выборг наб. Адмирала Чичагова, 6 (64.6 ... - Фото 1
    2-к кв. Ленинградская область, Выборг наб. Адмирала Чичагова, 6 (64.6 ... - Фото 2
    2-комнатная квартира, общая площадь 64м², жилая 31м², кухня 15м²

    Уникальная локация тихий экологически-чистый район, город с богатой историей в окружении красивой природы. 15 минут пешком до исторического центра города. 30 минут езды до границы Финляндии. 7 минут ходьбы до Ж/Д вокзала, откуда можно за 1 час добраться...
    • 64 м²
    • 2-ком
    • 6/9 эт.
    • монолит
    11 990 000 Р
    Агент
    +7 (982) Показать номер
    Посмотреть контакты
    2-к кв. Ленинградская область, Выборг Центральный мкр, Папула кв-л, ... - Фото 1
    2-к кв. Ленинградская область, Выборг Центральный мкр, Папула кв-л, ... - Фото 2
    2-комнатная квартира, общая площадь 60м², жилая 30м², кухня 12м²

    Малая Финляндия - квартал с собственной инфраструктурой, детскими площадками, зонами отдыха и причалами для катеров. Комфортные условия для жизни рядом с центром Выборга, на мысе Папула.Побережье Финского залива, на котором располагается жилой комплекс,...
    • 60 м²
    • 2-ком
    • 3/3 эт.
    • монолит
    11 000 000 Р
    Агент
    +7 (982) Показать номер
    Посмотреть контакты

    Не нашли подходящего объявления?

    Оставьте заявку, и наши риэлторы подберут квартиру в новостройке в районе Выборга

    (0)