11 550 000 Р 152 100 $ или 129 700

Информация о квартире

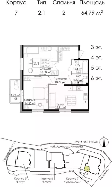
65 м2
Площадь
31 м2
Жилая
2
Комнаты
7
Этаж
9
Этажность

Дополнительная информация

Тип дома
монолит
Развернуть
Агент
+7 (982) 091-60-56
Начать чат с агентом

2-к кв. Ленинградская область, Выборг наб. Адмирала Чичагова, 6 (65.5 ...

Продаётся 2-комнатная квартира в сданном доме (Дом М6 - Котка), срок сдачи: IV-кв. 2023, общей площадью 65.5 кв.м., на 7 этаже. ЖИЛОЙ КОМПЛЕКС В ВЫБОРГЕ Малая Финляндия - квартал с собственной инфраструктурой, детскими площадками, зонами отдыха и причалами для катеров. Комфортные условия для жизни рядом с центром Выборга, на мысе Папула.Побережье Финского залива, на котором располагается жилой комплекс, является сказочным по красоте местом с наклонным рельефом. Отсюда открываются живописные виды на залив и на средневековый замок. Здесь шумит ветер и волна прибоя. А звуки города остаются далеко за пределами комплекса. Здесь спокойно, уютно и надежно.В первой очереди проекта были реализованы четыре 8-этажных корпуса : Хельсинки , Лахти , Турку , Тампере .ЖК МАЛАЯ ФИНЛЯНДИЯ . ВТОРАЯ ОЧЕРЕДЬВо второй очереди проекта будут реализованы три корпуса: Оулу , Котка , Рованиеми , объединенные 2-этажной встроенной автостоянкой. На нижних этажах жилых корпусов расположены кладовые и коммерческие помещения. - Общее количество квартир в комплексе: 180 - Общее количество машино-мест во встроенной автостоянке: 145. - Общее количество кладовых помещений - 65. - Общая площадь коммерческих помещений: 1165 кв.м. - Автономная инженерная инфраструктур, собственная уже работающая котельная и трансформаторная подстанция - Причал для катеров - Детские площадки - Лифты KONE - Гриль-домики - Срок сдачи 4 квартал 2023 года. - Собственная управляющая компания - Широкие и глубокие балконы с видами. - Квартиры с большими площадями - Высота потолка от 2,74. ПРЕВОСХОДНАЯ ЛОКАЦИЯВыборг - красивый старинный город на Северо-Западе России с населением около 80000 человек. Расположен на берегу Финского залива, рядом с границей, окружен лесами и озерами. ЖК Малая Финляндияасположен на берегу Финского залива в Центральной части Выборга, историческом районе Папула к северу от железнодорожного вокзала.Прекрасные видовые характеристики: бухта залива, зеленые леса, острова, из части квартир виден центр и замок.Рядом с жилым комплексом полуостров, на котором зона отдыха.Благоустроенная территория, озеленение, под окнами набережная для прогулокШкола, детский сад, магазины, аптека, отделения банков, рестораны и остановки общественного транспорта находятся на расстоянии 50-200 метров от комплекса Малая Финляндия . Путь пешком до площади железнодорожного вокзала занимает 7 минут, до исторического центра - 15 минут.Из Санкт-Петербурга в Выборг строится скоростная магистраль Е18 Скандинавия , время поездки на авто составит чуть больше часа. Между городами курсирует скоростной электропоезд Ласточка ,аз в день в каждом направлении. Время поездки 1 час. Время в пути на автомобиле Выборга до границы с Финляндией составляет 30 минут.По сути, поездка из Выборга в северные районы СПб занимает то же время, что и поездка с юга СПб на север.

Читать полностью
    Позвонить Написать
    11 550 000 Р152 100 $ или 129 700
    Агент
    +7 (982) 091-60-56
    Начать чат с агентом
    Похожие предложения
    2-к кв. Ленинградская область, Выборг наб. Адмирала Чичагова, 6 (64.6 ... - Фото 1
    2-к кв. Ленинградская область, Выборг наб. Адмирала Чичагова, 6 (64.6 ... - Фото 2
    2-комнатная квартира, общая площадь 64м², жилая 31м², кухня 15м²

    Уникальная локация тихий экологически-чистый район, город с богатой историей в окружении красивой природы. 15 минут пешком до исторического центра города. 30 минут езды до границы Финляндии. 7 минут ходьбы до Ж/Д вокзала, откуда можно за 1 час добраться...
    • 64 м²
    • 2-ком
    • 6/9 эт.
    • монолит
    11 990 000 Р
    Агент
    +7 (982) Показать номер
    Посмотреть контакты
    3-комнатная квартира: Мурино, жилой комплекс Новые Лаврики, 1.3 (75.92 ... - Фото 1
    3-комнатная квартира: Мурино, жилой комплекс Новые Лаврики, 1.3 (75.92 ... - Фото 2
    3-комнатная квартира, общая площадь 75м², жилая 38м²

    Строим кварталы для жизни с заботой о будущем. Предлагается 3-комнатная квартира комфорт-класса площадью 75,92 кв.м в корпусе 1.3 на 10-м этаже, в жилом комплексе «Новые Лаврики . В квартире с готовой отделкой мы поклеили обои под покраску, постелили...
    • 75 м²
    • 3-ком
    • 10/12 эт.
    11 663 646 Р
    Агент
    +7 (931) Показать номер
    Посмотреть контакты
    3-комнатная квартира: Мурино, жилой комплекс Новые Лаврики, 1.3 (81.21 ... - Фото 1
    3-комнатная квартира: Мурино, жилой комплекс Новые Лаврики, 1.3 (81.21 ... - Фото 2
    3-комнатная квартира, общая площадь 81м², жилая 41м²

    Строим кварталы для жизни с заботой о будущем. Предлагается 3-комнатная квартира комфорт-класса площадью 81,21 кв.м в корпусе 1.3 на 4-м этаже, в жилом комплексе «Новые Лаврики . В квартире с готовой отделкой мы поклеили обои под покраску, постелили полы...
    • 81 м²
    • 3-ком
    • 4/12 эт.
    11 768 984 Р
    Агент
    +7 (931) Показать номер
    Посмотреть контакты
    3-комнатная квартира: Мурино, жилой комплекс Новые Лаврики, 1.3 (64.52 ... - Фото 1
    3-комнатная квартира: Мурино, жилой комплекс Новые Лаврики, 1.3 (64.52 ... - Фото 2
    3-комнатная квартира, общая площадь 64м², жилая 45м²

    Строим кварталы для жизни с заботой о будущем. Предлагается 3-комнатная квартира комфорт-класса площадью 64,52 кв.м в корпусе 1.3 на 8-м этаже, в жилом комплексе «Новые Лаврики . В квартире с готовой отделкой мы поклеили обои под покраску, постелили полы...
    • 64 м²
    • 3-ком
    • 8/12 эт.
    11 308 834 Р
    Агент
    +7 (931) Показать номер
    Посмотреть контакты
    3-комнатная квартира: Мурино, жилой комплекс Новые Лаврики, 1.3 (76.71 ... - Фото 1
    3-комнатная квартира: Мурино, жилой комплекс Новые Лаврики, 1.3 (76.71 ... - Фото 2
    3-комнатная квартира, общая площадь 76м², жилая 38м²

    Строим кварталы для жизни с заботой о будущем. Предлагается 3-комнатная квартира комфорт-класса площадью 76,71 кв.м в корпусе 1.3 на 3-м этаже, в жилом комплексе «Новые Лаврики . В квартире с готовой отделкой мы поклеили обои под покраску, постелили полы...
    • 76 м²
    • 3-ком
    • 3/12 эт.
    11 912 263 Р
    Агент
    +7 (931) Показать номер
    Посмотреть контакты

    Не нашли подходящего объявления?

    Оставьте заявку, и наши риэлторы подберут квартиру в новостройке в районе Выборга

    (0)