Реализация объекта недвижимости приостановлена

Информация о квартире

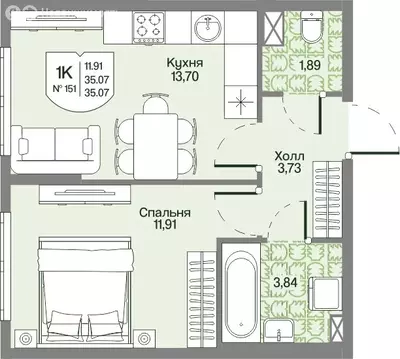
49.0 м2
Площадь
18.0 м2
Жилая
1
Комната
2
Этаж
9
Этажность

Дополнительная информация

Тип дома
монолит
Развернуть

1-к кв. Ленинградская область, Выборг наб. Адмирала Чичагова, 6 (49.49 ...

Продаётся 1-комнатная квартира в сданном доме (Дом М6 - Котка), срок сдачи: IV-кв. 2023, общей площадью 49.49 кв.м., на 2 этаже. ЖИЛОЙ КОМПЛЕКС В ВЫБОРГЕ Малая Финляндия - квартал с собственной инфраструктурой, детскими площадками, зонами отдыха и причалами для катеров. Комфортные условия для жизни рядом с центром Выборга, на мысе Папула.Побережье Финского залива, на котором располагается жилой комплекс, является сказочным по красоте местом с наклонным рельефом. Отсюда открываются живописные виды на залив и на средневековый замок. Здесь шумит ветер и волна прибоя. А звуки города остаются далеко за пределами комплекса. Здесь спокойно, уютно и надежно.В первой очереди проекта были реализованы четыре 8-этажных корпуса : Хельсинки , Лахти , Турку , Тампере .ЖК МАЛАЯ ФИНЛЯНДИЯ . ВТОРАЯ ОЧЕРЕДЬВо второй очереди проекта будут реализованы три корпуса: Оулу , Котка , Рованиеми , объединенные 2-этажной встроенной автостоянкой. На нижних этажах жилых корпусов расположены кладовые и коммерческие помещения. - Общее количество квартир в комплексе: 180 - Общее количество машино-мест во встроенной автостоянке: 145. - Общее количество кладовых помещений - 65. - Общая площадь коммерческих помещений: 1165 кв.м. - Автономная инженерная инфраструктур, собственная уже работающая котельная и трансформаторная подстанция - Причал для катеров - Детские площадки - Лифты KONE - Гриль-домики - Срок сдачи 4 квартал 2023 года. - Собственная управляющая компания - Широкие и глубокие балконы с видами. - Квартиры с большими площадями - Высота потолка от 2,74. ПРЕВОСХОДНАЯ ЛОКАЦИЯВыборг - красивый старинный город на Северо-Западе России с населением около 80000 человек. Расположен на берегу Финского залива, рядом с границей, окружен лесами и озерами. ЖК Малая Финляндияасположен на берегу Финского залива в Центральной части Выборга, историческом районе Папула к северу от железнодорожного вокзала.Прекрасные видовые характеристики: бухта залива, зеленые леса, острова, из части квартир виден центр и замок.Рядом с жилым комплексом полуостров, на котором зона отдыха.Благоустроенная территория, озеленение, под окнами набережная для прогулокШкола, детский сад, магазины, аптека, отделения банков, рестораны и остановки общественного транспорта находятся на расстоянии 50-200 метров от комплекса Малая Финляндия . Путь пешком до площади железнодорожного вокзала занимает 7 минут, до исторического центра - 15 минут.Из Санкт-Петербурга в Выборг строится скоростная магистраль Е18 Скандинавия , время поездки на авто составит чуть больше часа. Между городами курсирует скоростной электропоезд Ласточка ,аз в день в каждом направлении. Время поездки 1 час. Время в пути на автомобиле Выборга до границы с Финляндией составляет 30 минут.По сути, поездка из Выборга в северные районы СПб занимает то же время, что и поездка с юга СПб на север.

Читать полностью

    Реализация объекта недвижимости приостановлена

    Не нашли подходящего объявления?

    Оставьте заявку, и наши риэлторы подберут квартиру в новостройке в районе Выборга

    (0)