Реализация объекта недвижимости приостановлена

Информация о квартире

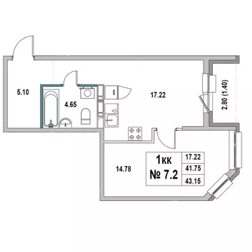
43.0 м2
Площадь
1
Комната
4
Этаж
8
Этажность
Развернуть

1-к кв. Ленинградская область, Выборг ул. 2-я Южная, 4 (43.15 м)

Продаётся 1-комнатная квартира в строящемся доме (Дом 1), срок сдачи: I-кв. 2026, общей площадью 43.15 кв.м., на 4 этаже. Новый жилой дом от застройщика Унистройасположен по адресу Ленинградская область, Выборг, 2-я Южная улица.

Читать полностью

    Реализация объекта недвижимости приостановлена

    Не нашли подходящего объявления?

    Оставьте заявку, и наши риэлторы подберут квартиру в новостройке в районе Выборга

    (0)