Реализация объекта недвижимости приостановлена

Информация об помещении

1
Этаж

Состояние и оснащение

Количество этажей
12
Развернуть

Помещение свободного назначения в Ленинградская область, Всеволожский ...

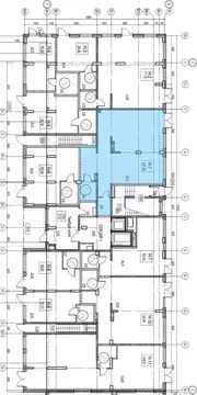
Помещение свободного назначения в жилом квартале Энфилд, Ленинградская область, п. Бугры. Площадь помещения - 155.69 кв. м, Корпус - Дом 17, Секция - 1 ,высота потолков - 4.5 м., выделенная мощность - 31,14кВт, срок сдачи: 3 квартал 2025 г.Современный жилой квартал Энфилд объединяет в себе преимущества хорошей экологии и удобного расположения рядом с городом. Квартал расположен на территории Мурино-Бугры, в 10 минутах от метро Девяткино. ЖК Энфилд - 17 домов высотой до 12 этажей, 7 из них уже построено и заселено. На территории работает два детских сада и школа с углубленным изучением английского языка. Квартал славится красивой территорией, пешеходным бульваром с фонтанами, детскими и спортивными площадками, инфраструктурой для отдыха. Из квартала предусмотрен удобный выезд на КАД.

Читать полностью

    Реализация объекта недвижимости приостановлена

    Не нашли подходящего объявления?

    Оставьте заявку, и наши риэлторы подберут псн в районе Всеволожского района

    (0)