15 900 000 Р 195 800 $ или 169 400

Информация о коттедже

105 м2
Площадь
2
Этажность
7 cоток
Участок

Дополнительная информация

Дом продаётся вместе с участком
есть
Развернуть
Агент
+7 (981) 847-00-12
Начать чат с агентом

Дом в Ленинградская область, Всеволожский район, Колтушское городское ...

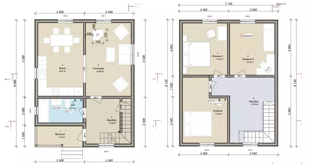
Арт.Уникальное предложение - полностью готовый проект для исполнения Вашей мечты о загородной жизни уже сегодня Благоустроенный участок - 7,3 сотки, позволяет реализовать максимальное количество сценариев загородной жизни (игры с детьми на свежем воздухе (есть батут), теплые встречи с друзьями(крытая обеденная зона и организованная костровая зона, организованная мангальная зона, купель с подогревом на дровах), или огород и теплицы, или все и сразу).Инфраструктура загородного дома, которая обеспечивает комфорт и безопасность проживания:• электричество - 15КВт;• водоснабжение - скважина глубиной 32 метра;• станция биоочистки - Zorde4, соответствует всем российским нормативам, что позволяет отводить очищенные сточные воды в грунт, работает без снижения каества очистки в зимних условиях, отсутствуют дурные запахи, не требует консервации при сезонном использовании, обслуживаниеаз в год.;• безопастная территория установлен шлагбаум на въезд и пункт КПП.Дом построен в 2024 году:• каркасный дом из доски строганной камерной сушки;• фундамент винтовые сваи;• кpoвля - металлочерепица.Отделка дома:• окна - двухкамерные стеклопакеты Veka;• санузел - крупногабаритный керамогранит;• отопление - на 1 этаже теплые полы и электрические конвекторы, на 2 этаже электрические конекторы в каждой комнате;• на полу - на 1 этаже ламинат, на 2 этаже кварцвинил;• стены имитация бруса (натуральное дерево).Планировка дома: 1 этаж:• кухня 16,87м - современная кухонный гарнитур со встроенной техникой (электрическая варочная поверхность, электрический духовой шкаф, посудомоечная машина, холодильник), большая обеденная зона (стол и 8 стульев);• гостиная 16.85 м - большой угловой диван, кресло-качалка, журнальные столики, телевизор;• совмещенный с/у 5.5м - полностью в кафеле, душевой трап, стиральная машина;• коридор с техническим помещением 10,32м - бойлер на 100 литров, водонакопитель, фильтры.2 этаж:• спальня 12,02м - двухспальная кровать, открытая система хранения;• спальня 12,02м - двухспальная кровать, открытая система хранения;• спальня 13,25м - двухспальная кровать, открытая система хранения, детская кроватка и телевизор;• коридор 13,53 м - площадь коридора позволила организовать дополнительное детское игровое пространство.Дом удачно расположен вдали от дороги, не слышен шум от шоссе. В пешей доступности 20 минут от дома - Пятерочка, аптека, Цех 85, Wildberries. Один взрослый собственник, полная цена в договоре.

Читать полностью

    Для того, чтобы купить 2-этажный коттедж по адресу: коттеджный посёлок Крокусы, позвоните по телефону +7 (981) 847-00-12. Торопитесь! Объявление №50016392417 о продаже двухэтажного коттеджа опубликовано 2 дня назад.

    Позвонить Написать
    15 900 000 Р195 800 $ или 169 400
    Агент
    +7 (981) 847-00-12
    Начать чат с агентом
    Похожие предложения в Всеволожском районе
    Дом в Ленинградская область, Всеволожский район, Колтушское городское ... - Фото 1
    Дом в Ленинградская область, Всеволожский район, Колтушское городское ... - Фото 2
    1 этаж, общая площадь 136м², участок 10 соток

    Ваша мечта становится реальностью Просторный дом 136.7 м в современном поселке Мечта-2. Всего 25 минут до Петербурга СЕМЕЙНАЯ ИПОТЕКА Представьте: вы приходите в свой собственный дом, где каждая деталь уже продумана за вас. Не нужно годами ждать ремонта...
    • 1 эт.
    • 136 м²
    • 10 сот.
    15 500 000 Р
    Агент
    +7 (981) Показать номер
    Посмотреть контакты
    Дом в Ленинградская область, Всеволожский район, Колтушское городское ... - Фото 1
    Дом в Ленинградская область, Всеволожский район, Колтушское городское ... - Фото 2
    2 этажа, общая площадь 251м², участок 14 соток

    Большой уютный загородный дом ищет своих хозяев Рядом с г. Всеволожск в д. Старая Пустошь на участке 14 соток продается большой загородный дом 251 м2 для круглогодичного проживания.Дом 2019 года постройки (размер 12,5 на 12,5 м2). На Цокольном этаже расположено...
    • 2 эт.
    • 251 м²
    • 14 сот.
    16 599 000 Р
    Агент
    +7 (981) Показать номер
    Посмотреть контакты
    Дом в Ленинградская область, Всеволожский район, Агалатовское с/пос, ... - Фото 1
    Дом в Ленинградская область, Всеволожский район, Агалатовское с/пос, ... - Фото 2
    2 этажа, общая площадь 250м², участок 13 соток

    Продаётся ухоженный дом из газобетона в благоустроенном СНТ.Общая площадь дома — 150 кв.м., дополнительно большой гараж площадью 100 кв.м. Участок 13 соток. Дом зарегистрирован, присвоен милицейский адрес, возможна прописка.ДомВозведён из газобетонных...
    • 2 эт.
    • 250 м²
    • 13 сот.
    17 000 000 Р
    Агент
    +7 (911) Показать номер
    Посмотреть контакты
    Дом в Ленинградская область, Всеволожский район, Колтушское городское ... - Фото 1
    Дом в Ленинградская область, Всеволожский район, Колтушское городское ... - Фото 2
    1 этаж, общая площадь 130м², участок 9 соток

    Арт.ДОМ ПОДХОДИТ ПОД ЛЬГОТНУЮ СЕМЕЙНУЮ ИПОТЕКУ 6 Продается дом 130 м в КП Мечта 3 ЦЕНА С УЧАСТКОМ Предлагаем к продаже просторный и уютный дом с чистовой отделкой площадью 130 м в отличном коттеджном поселке с пропиской.Характеристики дома:3 изолированные...
    • 1 эт.
    • 130 м²
    • 9 сот.
    15 800 000 Р
    Агент
    +7 (915) Показать номер
    Посмотреть контакты
    Коттедж в Ленинградская область, Всеволожский район, Лесколовское ... - Фото 1
    Коттедж в Ленинградская область, Всеволожский район, Лесколовское ... - Фото 2
    1 этаж, общая площадь 98м², участок 5 соток

    Новый каменный дом, в закрытом коттеджном поселке Новые дубки, участок с коммуникациями, по адресу: ул. Черничная, д15 (дом зарегистрирован, возможна прописка). Не проездное место, дом находится в тупике, граничит с лесфондом 1 категории, никогда не застроится,...
    • 1 эт.
    • 98 м²
    • 5 сот.
    16 990 000 Р
    Агент
    +7 (981) Показать номер
    Посмотреть контакты

    Не нашли подходящего объявления?

    Оставьте заявку, и наши риэлторы подберут купить дом в районе Всеволожского района

    (0)