8 000 000 Р 98 790 $ или 84 580

Информация о коттедже

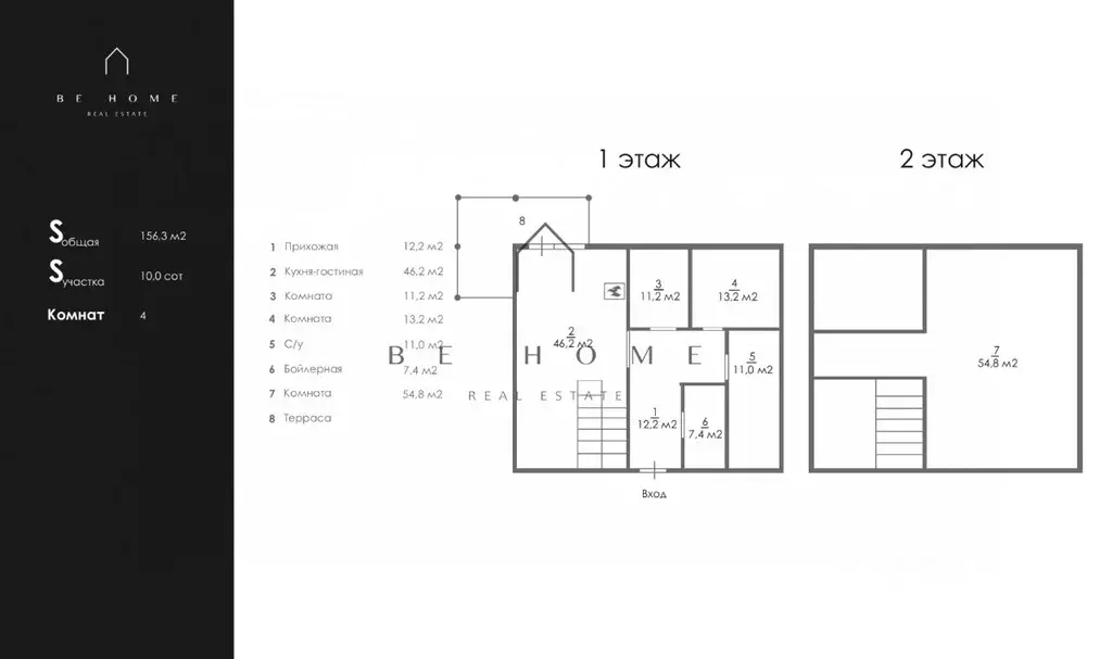
156 м2
Площадь
2
Этажность
10 cоток
Участок

Дополнительная информация

Дом продаётся вместе с участком
есть
Развернуть
Агент
+7 (981) 931-24-98
Начать чат с агентом

Дом в Ленинградская область, Всеволожское городское поселение, СОСН ...

Арт.Дом предназначен для круглогодичного проживания. Первый этаж: Зона прихожей, кухня совмещенная с гостиной. Установлена печь-камин invicta шаман . Из гостиной выход на террасу. Три изолированных комнаты, санузел, бойлерная/бытовая. Пространство второго этажа распланировано для еще двух комнат. Участок ровный, является частью природного ландшафта. Характеристики дома: Стены выровнены и отштукатурены Инженерные коммуникации внутри выполнены скрытно в стенах, полах, потолках. Фундамент утепленная шведская плита. Стены газоблоки. Окна двухкамерные энергосберегающие + панорамные стеклопакеты 70мм. Морозостойкий профиль. Кровля металлочерепица + водосточная система. Отопление электро котел. Электричество 15 кВт, 3-х фазное, двухтарифный счетчик день/ночь. Прямой договор с ЛенЭнерго. Канализация автономная станция биологической очистки . Водоснабжение колодец .

Читать полностью

    Для того, чтобы купить 2-этажный коттедж по адресу: Миндальная улица, позвоните по телефону +7 (981) 931-24-98. Торопитесь! Объявление №50015767848 о продаже двухэтажного коттеджа опубликовано 10 октября 2025.

    Позвонить Написать
    8 000 000 Р98 790 $ или 84 580
    Агент
    +7 (981) 931-24-98
    Начать чат с агентом
    Похожие предложения в Всеволожском районе
    Дом в Ленинградская область, Всеволожский район, Куйвозовское с/пос, ... - Фото 1
    Дом в Ленинградская область, Всеволожский район, Куйвозовское с/пос, ... - Фото 2
    2 этажа, общая площадь 98м², участок 6 соток

    Код объекта: 1810740. Вашему вниманию предлагается отличный вариант для тех, кто ищет уютное и современное жильё во Всеволожском районе Ленинградской области — дом в массиве Екатериновка.Этот каркасный дом построен в 2023 году и расположен на участке...
    • 2 эт.
    • 98 м²
    • 6 сот.
    8 000 000 Р
    Агент
    +7 (911) Показать номер
    Посмотреть контакты
    Дом в Ленинградская область, Всеволожский район, Свердловское ... - Фото 1
    Дом в Ленинградская область, Всеволожский район, Свердловское ... - Фото 2
    2 этажа, общая площадь 80м², участок 7 соток

    Продается уютный подготовленный для постоянного проживания дом в тихом охраняемом садоводстве.Ключевые преимущества:Идеальная среда для жизни: охраняемая территория, въезд по пропускам через шлагбаум, спокойная атмосфера, дружелюбные соседи. 10 кВт...
    • 2 эт.
    • 80 м²
    • 7 сот.
    7 900 000 Р
    Агент
    +7 (911) Показать номер
    Посмотреть контакты
    Дом в Ленинградская область, Всеволожский район, Колтушское городское ... - Фото 1
    Дом в Ленинградская область, Всеволожский район, Колтушское городское ... - Фото 2
    2 этажа, общая площадь 137м², участок 10 соток

    Продаётся современный коттедж для большой семьи — готов к жизни Продается стильный и уютный дом площадью 137 м на участке 10 соток, всего в 30 минутах от Санкт-Петербурга по Мурманскому шоссе, в экологичном коттеджном поселке ПриЛЕСный (всего 6 км от...
    • 2 эт.
    • 137 м²
    • 10 сот.
    7 999 999 Р
    Агент
    +7 (981) Показать номер
    Посмотреть контакты
    Дом, 116 м - Фото 1
    1 этаж, общая площадь 116м², участок 6 соток

    ПРОДАЖА ОДНОЭТАЖНОГО ДОМА В СТИЛЕ БАРН. Коттеджный поселок Экофоpecт (20-25 мин oт гopoдa) - Hoвoе Токсoво В тиxом сocнoвoм леcу рядом с озeром Bоякoяpви с oбоpудoванным пляжeм (10 мин пeшком).Плoщадь дoма 106 кв метpов. Удобнaя плaнировка c бoльшoй...
    • 1 эт.
    • 116 м²
    • 6 сот.
    7 900 000 Р
    Агент
    +7 (981) Показать номер
    Посмотреть контакты
    Коттедж в Ленинградская область, Всеволожский район, Колтушское ... - Фото 1
    Коттедж в Ленинградская область, Всеволожский район, Колтушское ... - Фото 2
    2 этажа, общая площадь 160м², участок 11 соток

    Арт.Д. Манушкино, ул.Родниковая. В охраняемом посёлке, на участке ижс 11.7 соток, продаётся полностью готовый дом без внутренней отделки.Дом каркасный, 2015 года постройки.Дом строился для себя, все используемые материалы выбраны качественные.Черепица...
    • 2 эт.
    • 160 м²
    • 11 сот.
    7 900 000 Р
    Агент
    +7 (981) Показать номер
    Посмотреть контакты

    Не нашли подходящего объявления?

    Оставьте заявку, и наши риэлторы подберут купить дом в районе Всеволожского района

    (0)