4 200 000 Р 52 090 $ или 44 950

Информация о коттедже

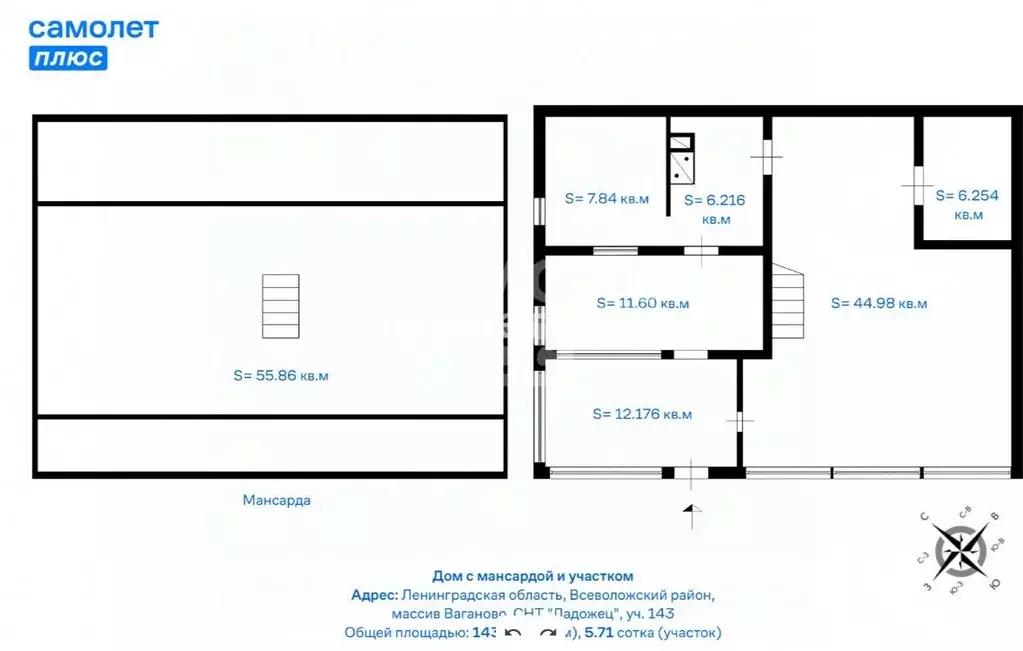
69 м2
Площадь
1
Этажность
6 cоток
Участок

Дополнительная информация

Вид разрешенного использования для участка
зсн для садоводства или огородничества
Категория назначения землепользования
зсн земли сельскохозяйственного назначения
Развернуть
Агент
+7 (981) 920-24-13
Начать чат с агентом

Дача, 69 м

Продам земельный участок с небольшим домиком(требующим реконструкции) в обжитом садоводстве не далеко от города. Участок ухожен, имеется теплица, плодовые деревья, кустарники. К дому подведено электричество-15 КВт.,летний водопровод, газ по границе участка.Хорошие соседи, многие живут круглогодично.Подъезд к садоводству-асфальтированная дорога, к участку-щебень. Садоводство охраняется и оборудовано шлагбаумом, не далеко от участка-магазин.До остановки транспорта-800м.

Читать полностью

    Для того, чтобы купить дачу площадью 69 кв. метров по адресу: 3-й проезд, позвоните по телефону +7 (981) 920-24-13. Торопитесь! Объявление №50016911224 о продаже дачи площадью 69 кв. метров опубликовано Вчера.

    Позвонить Написать
    4 200 000 Р52 090 $ или 44 950
    Агент
    +7 (981) 920-24-13
    Начать чат с агентом
    Похожие предложения в Всеволожском районе
    Дом в Сертоловское городское поселение, массив Белоостров (90 м) - Фото 1
    Дом в Сертоловское городское поселение, массив Белоостров (90 м) - Фото 2
    1 этаж, общая площадь 90м², участок 9 соток

    №344528 Продается Дом в снт Светлана-1. Сборно-щитовой каркас. 1 этаж кухня 6 кв. м., спальня 12 кв. м. и спальня 6 кв. м. На 2 этаже две комнаты по 10 кв. м. Отопление печка, вода летний водопровод, туалет во дворе, электричество заведено в дом. Веранда...
    • 1 эт.
    • 90 м²
    • 9 сот.
    4 300 000 Р
    Агент
    +7 (906) Показать номер
    Посмотреть контакты
    Дом в Ленинградская область, Всеволожский район, Лесколовское с/пос, ... - Фото 1
    Дом в Ленинградская область, Всеволожский район, Лесколовское с/пос, ... - Фото 2
    2 этажа, общая площадь 45м², участок 6 соток

    Арт.Дом вашей мечты: идеальное место для жизни Ищете дом, в котором можно жить круглый год? Предлагаем вам прекрасную возможность стать владельцем уютного дома с участком всего в 20 км от города Почему стоит выбрать именно этот дом?ОБИХОЖЕННОЕ САДОВОДСТВО...
    • 2 эт.
    • 45 м²
    • 6 сот.
    4 150 000 Р
    Агент
    +7 (911) Показать номер
    Посмотреть контакты
    Дом в Ленинградская область, Всеволожский район, Рахьинское городское ... - Фото 1
    Дом в Ленинградская область, Всеволожский район, Рахьинское городское ... - Фото 2
    2 этажа, общая площадь 128м², участок 5 соток

    Код объекта: 1828334.CНT Ладожец назначение дома - жилой дом , категория земли- земли сельскохозяйственного назначение. Дом рассчитан для постоянного, круглогодичного проживания. В доме дровяная печь, которая отапливает и первый и второй этажОсновные...
    • 2 эт.
    • 128 м²
    • 5 сот.
    4 150 000 Р
    Агент
    +7 (981) Показать номер
    Посмотреть контакты
    Дом в Ленинградская область, Всеволожский район, Рахьинское городское ... - Фото 1
    Дом в Ленинградская область, Всеволожский район, Рахьинское городское ... - Фото 2
    2 этажа, общая площадь 129м², участок 6 соток

    332803 Продаётся зимний ДОМ 7*8метров общей площадью 124 кв. м постройки 1989 года на участке 6,52 соток( по факту 10 соток).Участок находится в обжитом дачном массиве СНТ Фантазия, ближайшая ж/д станция Ваганово и маршрутка до Всеволожска находится...
    • 2 эт.
    • 129 м²
    • 6 сот.
    4 300 000 Р
    Агент
    +7 (981) Показать номер
    Посмотреть контакты
    Дом в Ленинградская область, Всеволожский район, Куйвозовское с/пос, ... - Фото 1
    Дом в Ленинградская область, Всеволожский район, Куйвозовское с/пос, ... - Фото 2
    2 этажа, общая площадь 42м², участок 6 соток

    Продается прекрасная ,очень уютная дача. Расположена в д.Васкелово, СНТ 2 ЦНИИ им.академика А.Н.Крылова. Координаты уточняйте,так как не всегда навигатор правильно указывает место. Находится в живописном месте,близ д.Васкелово в окружении нескольких...
    • 2 эт.
    • 42 м²
    • 6 сот.
    4 200 000 Р
    Агент
    +7 (981) Показать номер
    Посмотреть контакты

    Не нашли подходящего объявления?

    Оставьте заявку, и наши риэлторы подберут дачу в районе Всеволожского района

    (0)