4 850 000 Р 60 660 $ или 52 330

Информация о квартире

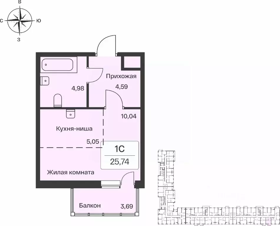
25 м2
Площадь
студия
Комнат
3
Этаж
11
Этажность

Дополнительная информация

Тип дома
монолит
Развернуть
Агент
+7 (966) 264-35-74
Начать чат с агентом

Студия Ленинградская область, Всеволожский район, Заневское городское ...

Продаётся студия в сданном доме (Корпус 3), срок сдачи: IV-кв. 2024, общей площадью 25.8 кв.м., на 3 этаже. Описание проекта: Жилой комплекс комфорт класса средней этажности с закрытыми, благоустроенными дворами расположен в развитом и зеленом районе Ленинградской области- Янино-1. На территории жилого квартала запланировано все для комфортной жизни: появится школа и детские сады, современные детские и спортивные площадки, пешеходный бульвар и другие места для отдыха. На первых этажах разместятся магазины, кафе и другие сервисы. Для владельцев автомобилей на территории квартала будут построены многоуровневые парковки. Местоположение Жилой квартал Расцветай в Яниноасположен в районе Янино-1, Ленинградкой области. Проект расположен вплотную к восточной границе Санкт-Петербурга - в 4 минутах от КАД. Проект окружают лесные массивы. В шаговой доступности находится Ржевский лесопарк, также рядом расположен памятник природы Колтушские высоты - парк с обустроенными экотропами и живописным веломаршрутом. Транспортная доступность: До метро Проспект Большевиков или метро Ладожская можно доехать на общественном транспорте за 12 минут. До исторического центра города можно доехать за 25 минут на автомобиле. Квартиры В жилом квартале представлены разнообразные планировочные решения: классические и евро-форматы от 25 до 77 м2. В квартирах запроектированы кухни-гостиные, мастер-спальни, гардеробные. Все квартиры сдаются под предчистовую отделку. Придомовая территория Благоустроенная территория жилого квартала включает в себя обустроенные места для отдыха, спорта и игр для детей. Авторский ландшафтный дизайн предполагает высадку деревьев и кустарников различных пород. Внутренние дворы будут закрыты от машин, все открытые машиноместа вынесены за периметр комплекса. Лобби Отделка мест общего пользования выполнена по индивидуальныму проекту московского архитектурного бюро с использованием материалов улучшенного качества.

Читать полностью
    Позвонить Написать
    4 850 000 Р60 660 $ или 52 330
    Агент
    +7 (966) 264-35-74
    Начать чат с агентом
    Похожие предложения в Янине-1
    Студия Ленинградская область, Всеволожский район, Заневское городское ... - Фото 1
    Студия Ленинградская область, Всеволожский район, Заневское городское ... - Фото 2
    студия, общая площадь 25м²

    Продаётся студия в сданном доме (Корпус 3), срок сдачи: IV-кв. 2024, общей площадью 25.7 кв.м., на 4 этаже. Описание проекта: Жилой комплекс комфорт класса средней этажности с закрытыми, благоустроенными дворами расположен в развитом и зеленом районе...
    • 25 м²
    • студия-ком
    • 4/11 эт.
    • монолит
    4 850 000 Р
    Агент
    +7 (966) Показать номер
    Посмотреть контакты
    Студия Ленинградская область, Всеволожский район, Заневское городское ... - Фото 1
    Студия Ленинградская область, Всеволожский район, Заневское городское ... - Фото 2
    студия, общая площадь 26м²

    Продаётся студия в сданном доме (Корпус 3), срок сдачи: IV-кв. 2024, общей площадью 26.7 кв.м., на 7 этаже. Описание проекта: Жилой комплекс комфорт класса средней этажности с закрытыми, благоустроенными дворами расположен в развитом и зеленом районе...
    • 26 м²
    • студия-ком
    • 7/11 эт.
    • монолит
    4 950 000 Р
    Агент
    +7 (966) Показать номер
    Посмотреть контакты
    Студия Ленинградская область, Всеволожский район, Заневское городское ... - Фото 1
    Студия Ленинградская область, Всеволожский район, Заневское городское ... - Фото 2
    студия, общая площадь 25м²

    Продаётся студия в сданном доме (Корпус 3), срок сдачи: IV-кв. 2024, общей площадью 25.7 кв.м., на 7 этаже. Описание проекта: Жилой комплекс комфорт класса средней этажности с закрытыми, благоустроенными дворами расположен в развитом и зеленом районе...
    • 25 м²
    • студия-ком
    • 7/11 эт.
    • монолит
    4 850 000 Р
    Агент
    +7 (966) Показать номер
    Посмотреть контакты
    Студия Ленинградская область, Всеволожский район, Заневское городское ... - Фото 1
    Студия Ленинградская область, Всеволожский район, Заневское городское ... - Фото 2
    студия, общая площадь 25м²

    Продаётся студия в сданном доме (Корпус 3), срок сдачи: IV-кв. 2024, общей площадью 25.5 кв.м., на 6 этаже. Описание проекта: Жилой комплекс комфорт класса средней этажности с закрытыми, благоустроенными дворами расположен в развитом и зеленом районе...
    • 25 м²
    • студия-ком
    • 6/11 эт.
    • монолит
    4 850 000 Р
    Агент
    +7 (966) Показать номер
    Посмотреть контакты
    Студия Ленинградская область, Всеволожский район, Заневское городское ... - Фото 1
    Студия Ленинградская область, Всеволожский район, Заневское городское ... - Фото 2
    студия, общая площадь 26м²

    Продаётся студия в сданном доме (Корпус 3), срок сдачи: IV-кв. 2024, общей площадью 26.1 кв.м., на 2 этаже. Описание проекта: Жилой комплекс комфорт класса средней этажности с закрытыми, благоустроенными дворами расположен в развитом и зеленом районе...
    • 26 м²
    • студия-ком
    • 2/11 эт.
    • монолит
    4 800 000 Р
    Агент
    +7 (966) Показать номер
    Посмотреть контакты

    Не нашли подходящего объявления?

    Оставьте заявку, и наши риэлторы подберут квартиру в новостройке в районе Янина-1

    (0)