6 250 000 Р 78 170 $ или 67 440

Информация о квартире

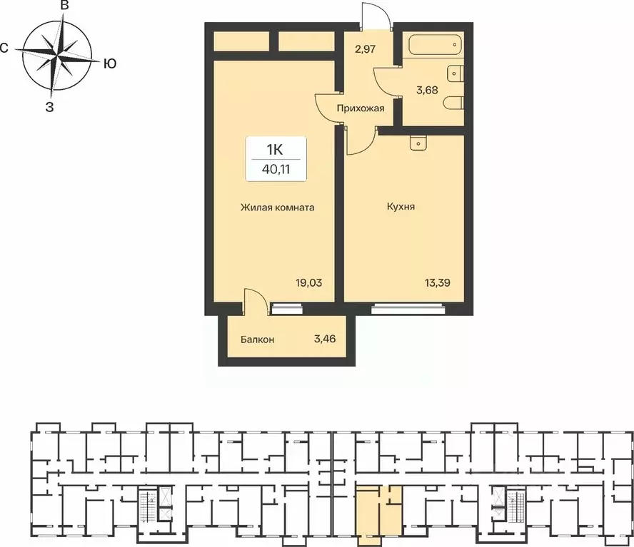
40 м2
Площадь
1
Комната
7
Этаж
9
Этажность

Дополнительная информация

Тип дома
монолит
Развернуть
Агент
+7 (966) 264-35-74
Начать чат с агентом

1-к кв. Ленинградская область, Всеволожский район, Заневское городское ...

Продаётся 1-комнатная квартира в сданном доме (Корпус 2), срок сдачи: IV-кв. 2024, общей площадью 40.9 кв.м., на 7 этаже. Описание проекта: Жилой комплекс комфорт класса средней этажности с закрытыми, благоустроенными дворами расположен в развитом и зеленом районе Ленинградской области- Янино-1. На территории жилого квартала запланировано все для комфортной жизни: появится школа и детские сады, современные детские и спортивные площадки, пешеходный бульвар и другие места для отдыха. На первых этажах разместятся магазины, кафе и другие сервисы. Для владельцев автомобилей на территории квартала будут построены многоуровневые парковки. Местоположение Жилой квартал Расцветай в Яниноасположен в районе Янино-1, Ленинградкой области. Проект расположен вплотную к восточной границе Санкт-Петербурга - в 4 минутах от КАД. Проект окружают лесные массивы. В шаговой доступности находится Ржевский лесопарк, также рядом расположен памятник природы Колтушские высоты - парк с обустроенными экотропами и живописным веломаршрутом. Транспортная доступность: До метро Проспект Большевиков или метро Ладожская можно доехать на общественном транспорте за 12 минут. До исторического центра города можно доехать за 25 минут на автомобиле. Квартиры В жилом квартале представлены разнообразные планировочные решения: классические и евро-форматы от 25 до 77 м2. В квартирах запроектированы кухни-гостиные, мастер-спальни, гардеробные. Все квартиры сдаются под предчистовую отделку. Придомовая территория Благоустроенная территория жилого квартала включает в себя обустроенные места для отдыха, спорта и игр для детей. Авторский ландшафтный дизайн предполагает высадку деревьев и кустарников различных пород. Внутренние дворы будут закрыты от машин, все открытые машиноместа вынесены за периметр комплекса. Лобби Отделка мест общего пользования выполнена по индивидуальныму проекту московского архитектурного бюро с использованием материалов улучшенного качества.

Читать полностью
    Позвонить Написать
    6 250 000 Р78 170 $ или 67 440
    Агент
    +7 (966) 264-35-74
    Начать чат с агентом
    Похожие предложения
    1-к кв. Ленинградская область, Всеволожский район, Заневское городское ... - Фото 1
    1-к кв. Ленинградская область, Всеволожский район, Заневское городское ... - Фото 2
    1-комнатная квартира, общая площадь 40м²

    Продаётся 1-комнатная квартира в сданном доме (Корпус 2), срок сдачи: IV-кв. 2024, общей площадью 40.9 кв.м., на 9 этаже. Описание проекта: Жилой комплекс комфорт класса средней этажности с закрытыми, благоустроенными дворами расположен в развитом и...
    • 40 м²
    • 1-ком
    • 9/9 эт.
    • монолит
    6 400 000 Р
    Агент
    +7 (966) Показать номер
    Посмотреть контакты
    1-к кв. Ленинградская область, Всеволожский район, Заневское городское ... - Фото 1
    1-к кв. Ленинградская область, Всеволожский район, Заневское городское ... - Фото 2
    1-комнатная квартира, общая площадь 40м²

    Продаётся 1-комнатная квартира в сданном доме (Корпус 2), срок сдачи: IV-кв. 2024, общей площадью 40.7 кв.м., на 8 этаже. Описание проекта: Жилой комплекс комфорт класса средней этажности с закрытыми, благоустроенными дворами расположен в развитом и...
    • 40 м²
    • 1-ком
    • 8/9 эт.
    • монолит
    6 350 000 Р
    Агент
    +7 (966) Показать номер
    Посмотреть контакты
    1-к кв. Ленинградская область, Всеволожский район, Заневское городское ... - Фото 1
    1-к кв. Ленинградская область, Всеволожский район, Заневское городское ... - Фото 2
    1-комнатная квартира, общая площадь 40м²

    Продаётся 1-комнатная квартира в сданном доме (Корпус 2), срок сдачи: IV-кв. 2024, общей площадью 40.9 кв.м., на 5 этаже. Описание проекта: Жилой комплекс комфорт класса средней этажности с закрытыми, благоустроенными дворами расположен в развитом и...
    • 40 м²
    • 1-ком
    • 5/9 эт.
    • монолит
    6 250 000 Р
    Агент
    +7 (966) Показать номер
    Посмотреть контакты
    1-комнатная квартира: Янино-1, жилой комплекс Аквилон Янино (37.86 м) - Фото 1
    1-комнатная квартира: Янино-1, жилой комплекс Аквилон Янино (37.86 м) - Фото 2
    1-комнатная квартира, общая площадь 37м², кухня 18м²

    Купи квартиру в ЖК «Аквилон ЯНИНО ОтделкаВ квартире выполнена предчистовая отделка WhiteBox+Возможен дозаказ отделки в любом из 3 цветов: SAND, TERRA, GRAPHITEЖК «Аквилон ЯНИНО Жилой комплекс комфорт-класса «Аквилон ЯНИНО находится в одной из самых...
    • 37 м²
    • 1-ком
    • 2/12 эт.
    6 396 012 Р
    Агент
    +7 (981) Показать номер
    Посмотреть контакты
    1-комнатная квартира: Янино-1, жилой комплекс Аквилон Янино (40.76 м) - Фото 1
    1-комнатная квартира: Янино-1, жилой комплекс Аквилон Янино (40.76 м) - Фото 2
    1-комнатная квартира, общая площадь 40м², кухня 15м²

    Купи квартиру в ЖК «Аквилон ЯНИНО ОтделкаВ квартире выполнена предчистовая отделка WhiteBox+Возможен дозаказ отделки в любом из 3 цветов: SAND, TERRA, GRAPHITEЖК «Аквилон ЯНИНО Жилой комплекс комфорт-класса «Аквилон ЯНИНО находится в одной из самых...
    • 40 м²
    • 1-ком
    • 6/12 эт.
    6 386 924 Р
    Агент
    +7 (981) Показать номер
    Посмотреть контакты

    Не нашли подходящего объявления?

    Оставьте заявку, и наши риэлторы подберут квартиру в новостройке в районе Янина-1

    (0)