59 740 000 Р 729 100 $ или 624 400

Информация о коттедже

356 м2
Площадь
1
Этажность
24 cоток
Участок

Дополнительная информация

Дом продаётся вместе с участком
есть
Развернуть
Агент
КОРПОРАЦИЯ РУСЬ
+7 (981) 881-56-37
Начать чат с агентом

Дом в Ленинградская область, Всеволожский район, Куйвозовское с/пос, ...

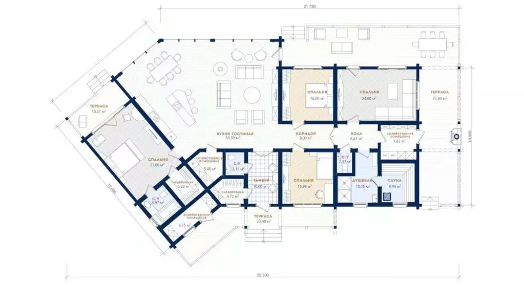
Предлагается к продаже просторный участок 31 площадью 24,44 соток с подрядом на строительство премиального дома из клееного бруса по проекту Вельга 356 . Этот современный коттедж площадью 356 м станет настоящей резиденцией для тех, кто ценит простор, качество и высокий уровень жизни.Особенности проекта:— Общая площадь дома: 356 м — функционально и эргономично.— Планировки: 4 спальни, 4 санузла, огромная кухня-гостиная (81,39 м), сауна.— Материал: премиальный клееный брус Статус (210410 мм) собственного производства — тёплый, надёжный и эстетичный.— Стоимость строительства: от 130 000 /м, включая все этапы — от фундамента до отделки.— Срок строительства: 68 месяцев. Предусмотрена рассрочка. Цена участка: 800 000 /сотказа участок + отдельно за строительный подряд. Общая стоимость дома с участком отО поселке Высокий стиль — загородная жизнь без компромиссовКоттеджный посёлок Высокий стильасположен во Всеволожском районе Ленинградской области, всего 40 км от КАД по скоростному Новоприозерскому шоссе. Поселок занимает 13 га хвойного леса на первой береговой линии живописного Лемболовского озера. Всего в комплексе 44 домовладения, выполненных в едином архитектурном стиле. Около половины участков имеют прямой вид на озеро.Статус земли — ИЖС, что обеспечивает постоянную регистрацию и полноценную загородную жизнь. Все коммуникации уже подключены: газ, электричество, централизованное водоснабжение, высокоскоростной интернет. Территория поселка благоустроена: песчаный пляж, спортивная площадка, лодочный причал, охрана и видеонаблюдение.Посёлок расположен в границах населённого пункта Васкелово, в окружении лесов и рядом с Сосновским заповедником. Всего в 15 минутах езды — всесезонный курорт Игора, в 30 минутах — горнолыжный комплекс Северный склон в Токсово. В ближайших населенных пунктах — школы, детсады, медицинские учреждения, магазины и всё необходимое для жизни. Высокий стиль — жить по-настоящему удобно и престижноЭтот участок с готовым концептом дома — лучший выбор для тех, кто ценит простор, надёжность, стиль и загородную элегантность. Укажите, и мы подготовим расчёт полной стоимости, макеты интерьера и планируемую дату окончания строительства.Готовы идти дальше? Напишем предложение под вашу заявку — с презентацией, фото и графиком этапов.

Читать полностью

    Для того, чтобы купить 1-этажный коттедж по адресу: Васкелово, коттеджный поселок Высокий Стиль, позвоните по телефону +7 (981) 881-56-37. Торопитесь! Объявление №50016450697 о продаже одноэтажного коттеджа опубликовано Сегодня.

    Позвонить Написать
    59 740 000 Р729 100 $ или 624 400
    Агент
    КОРПОРАЦИЯ РУСЬ
    +7 (981) 881-56-37
    Начать чат с агентом
    Похожие предложения
    Коттедж в Ленинградская область, Всеволожский район, Куйвозовское ... - Фото 1
    Коттедж в Ленинградская область, Всеволожский район, Куйвозовское ... - Фото 2
    1 этаж, общая площадь 356м², участок 24 сотки

    Предлагается к продаже просторный участок 31 площадью 24,44 соток с подрядом на строительство премиального дома из клееного бруса по проекту Вельга 356 . Этот современный коттедж площадью 356 м станет настоящей резиденцией для тех, кто ценит простор,...
    • 1 эт.
    • 356 м²
    • 24 сот.
    59 740 000 Р
    Агент
    +7 (911) Показать номер
    Посмотреть контакты
    Коттедж в Ленинградская область, Всеволожск ул. Горсткина (670 м) - Фото 1
    Коттедж в Ленинградская область, Всеволожск ул. Горсткина (670 м) - Фото 2
    2 этажа, общая площадь 670м², участок 16 соток

    Вы достойны этого бескомпромиссного качества и комфорта, умиротворяющей тишины. Идеальное домовладение в золотом треугольнике Всеволожска.Жилой дом 670 кв.м на участке ИЖС 16,8 соток. Все продумано до мелочей, удобно и рационально. Высокое качество строительства,...
    • 2 эт.
    • 670 м²
    • 16 сот.
    60 500 000 Р
    Агент
    +7 (911) Показать номер
    Посмотреть контакты
    Дом в Ленинградская область, Всеволожский район, Бугровское городское ... - Фото 1
    Дом в Ленинградская область, Всеволожский район, Бугровское городское ... - Фото 2
    3 этажа, общая площадь 320м², участок 8 соток

    Прекрасный Дом с баней на дровах в 3 км от КАД В продаже качественный 3 этажный дом в коттеджном поселке Охтинское раздолье2019 года постройки со свежим ремонтом, где есть все для уютной и комфортной жизни - въезжай - живи Общая площадь дома - 320...
    • 3 эт.
    • 320 м²
    • 8 сот.
    59 000 000 Р
    Агент
    +7 (911) Показать номер
    Посмотреть контакты
    Коттедж в Ленинградская область, Всеволожский район, Лесколовское ... - Фото 1
    Коттедж в Ленинградская область, Всеволожский район, Лесколовское ... - Фото 2
    3 этажа, общая площадь 690м², участок 48 соток

    В продаже дом с чистовой отделкой, общей площадью 690 м, на земельном участке 48 соток (состоит из 4х участков), в коттеджном посёлке Киссолово, в 14 км от КАД по Новоприозерскому шоссе, 10 мин. на авто от Мега-Панас (ближайшая ст.м. Парнас).Расположен...
    • 3 эт.
    • 690 м²
    • 48 сот.
    59 500 000 Р
    Агент
    +7 (981) Показать номер
    Посмотреть контакты
    1 этаж, общая площадь 260м², участок 16 соток

    Арт.Возможна БЕССПРОЦЕНТНАЯ РАССРОЧКА (звоните все обсудим ) Современный дом с бассейном, продуманной планировкой и прекрасными видовыми характеристиками. Идеальная удаленность от Санкт-Петербурга, 15 минут - вы в городе (В этом году закончили ремонт...
    • 1 эт.
    • 260 м²
    • 16 сот.
    59 950 000 Р
    Агент
    +7 (981) Показать номер
    Посмотреть контакты

    Не нашли подходящего объявления?

    Оставьте заявку, и наши риэлторы подберут купить дом в районе Васкелово

    (0)