7 563 600 Р 95 330 $ или 81 380

Информация о квартире

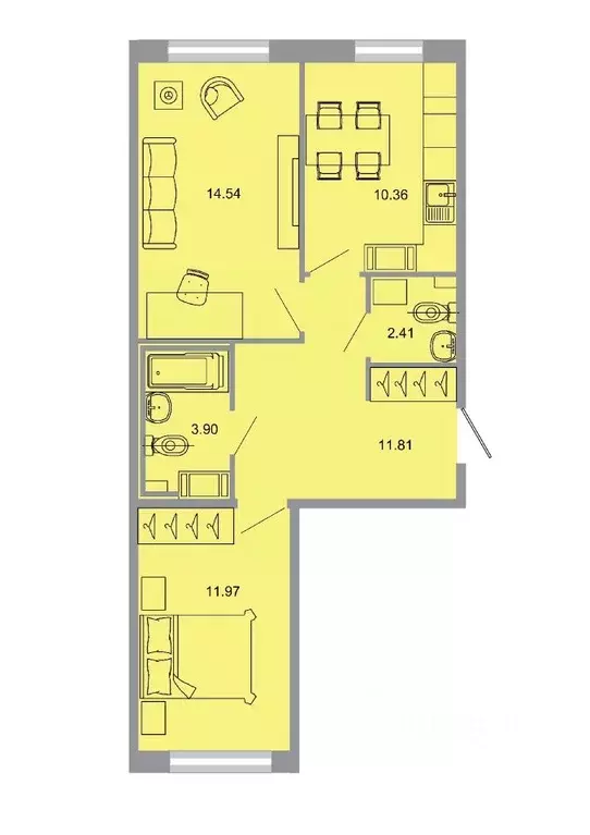
38 м2
Площадь
1
Комната
6
Этаж
12
Этажность

Дополнительная информация

Тип дома
монолит
Развернуть
Агент
+7 (966) 669-82-94
Начать чат с агентом

1-к кв. Ленинградская область, Всеволожский район, д. Новое Девяткино ...

Продаётся 1-комнатная квартира в сданном доме (Корпус 1), срок сдачи: III-кв. 2024, общей площадью 38.2 кв.м., на 6 этаже. Жилой комплекс Удача - это 12-ти этажный кирпично-монолитный дом. 4 секции. Удачное расположение на территории Всеволожского района Ленинградской области в экологически чистом, уютном пригороде Санкт-Петербурга, рядом с живописными природными ландшафтами, всего в 5 минутах езды на общественном транспорте от станции метро Девяткино на ул. Лесная. Площадь застройки 2690 кв.м.Фасады решены в современной стилистике в цветовой гамме теплых оттенков. Всего в доме запроектировано 667 квартир. Высота потолков 2,7 м. Удачное расположение дома порадует любого покупателя Инфраструктура хорошо развита и продолжает развиваться В пешей доступности все необходимое: продуктовые магазины, аптеки, банк, детский сад. В 18-ти минутах езды расположены курорты активного отдыха Охта-парк и Северный склон .

Читать полностью
    Позвонить Написать
    7 563 600 Р95 330 $ или 81 380
    Агент
    +7 (966) 669-82-94
    Начать чат с агентом
    Похожие предложения
    1-к кв. Ленинградская область, Всеволожский район, д. Новое Девяткино ... - Фото 1
    1-к кв. Ленинградская область, Всеволожский район, д. Новое Девяткино ... - Фото 2
    1-комнатная квартира, общая площадь 38м²

    Продаётся 1-комнатная квартира в сданном доме (Корпус 1), срок сдачи: III-кв. 2024, общей площадью 38.1 кв.м., на 4 этаже. Жилой комплекс Удача - это 12-ти этажный кирпично-монолитный дом. 4 секции. Удачное расположение на территории Всеволожского района...
    • 38 м²
    • 1-ком
    • 4/12 эт.
    • монолит
    7 543 800 Р
    Агент
    +7 (966) Показать номер
    Посмотреть контакты
    1-к кв. Ленинградская область, Всеволожский район, д. Новое Девяткино ... - Фото 1
    1-к кв. Ленинградская область, Всеволожский район, д. Новое Девяткино ... - Фото 2
    1-комнатная квартира, общая площадь 38м²

    Продаётся 1-комнатная квартира в сданном доме (Корпус 1), срок сдачи: III-кв. 2024, общей площадью 38 кв.м., на 6 этаже. Жилой комплекс Удача - это 12-ти этажный кирпично-монолитный дом. 4 секции. Удачное расположение на территории Всеволожского района...
    • 38 м²
    • 1-ком
    • 6/12 эт.
    • монолит
    7 524 000 Р
    Агент
    +7 (966) Показать номер
    Посмотреть контакты
    2-к кв. Ленинградская область, Всеволожский район, Заневское городское ... - Фото 1
    2-к кв. Ленинградская область, Всеволожский район, Заневское городское ... - Фото 2
    2-комнатная квартира, общая площадь 47м², жилая 21м², кухня 14м²

    iD Kudrovo II — место, где сбываются мечты об идеальном балансе между работой и личной жизнью. Здесь вы получаете возможность наслаждаться спокойствием природы и по-настоящему отдыхать, но в то же время пользоваться всеми благами развитой инфраструктуры....
    • 47 м²
    • 2-ком
    • 4/9 эт.
    7 587 480 Р
    Агент
    +7 (980) Показать номер
    Посмотреть контакты
    2-к кв. Ленинградская область, Всеволожский район, пос. Бугры ул. ... - Фото 1
    2-к кв. Ленинградская область, Всеволожский район, пос. Бугры ул. ... - Фото 2
    2-комнатная квартира, общая площадь 53м²

    Продаётся 2-комнатная квартира в сданном доме (Тихая, 17 (Дом 17)), срок сдачи: III-кв. 2023, общей площадью 53.7 кв.м., на 1 этаже. ЖК Стороны света - современный жилой комплекс комфорт-класса в пос.Бугры Ленинградской области. Состоит из четырех корпусов,...
    • 53 м²
    • 2-ком
    • 1/15 эт.
    • монолит
    7 518 000 Р
    Агент
    +7 (932) Показать номер
    Посмотреть контакты
    2-к кв. Ленинградская область, Всеволожский район, Заневское городское ... - Фото 1
    2-к кв. Ленинградская область, Всеволожский район, Заневское городское ... - Фото 2
    2-комнатная квартира, общая площадь 47м², жилая 21м², кухня 14м²

    iD Kudrovo II — место, где сбываются мечты об идеальном балансе между работой и личной жизнью. Здесь вы получаете возможность наслаждаться спокойствием природы и по-настоящему отдыхать, но в то же время пользоваться всеми благами развитой инфраструктуры....
    • 47 м²
    • 2-ком
    • 8/9 эт.
    7 587 480 Р
    Агент
    +7 (980) Показать номер
    Посмотреть контакты

    Не нашли подходящего объявления?

    Оставьте заявку, и наши риэлторы подберут квартиру в новостройке в районе Новое Девяткино

    (0)