4 265 860 Р 54 760 $ или 46 680

Информация о квартире

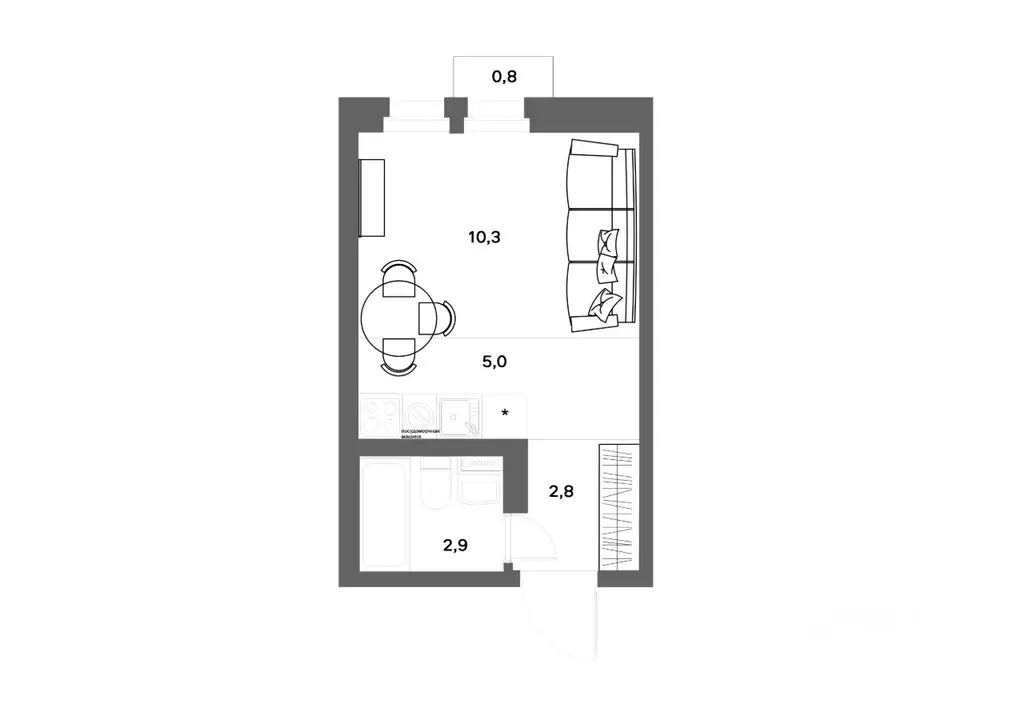
28 м2
Площадь
13 м2
Жилая
студия
Комнат
6
Этаж
8
Этажность
Развернуть
Агент
+7 (902) 401-31-73
Начать чат с агентом

Студия Ленинградская область, Всеволожский район, д. Новое Девяткино ...

Продается квартира студия в жилом комплексе Высота. Новодевяткино от ГК СТОУН нa 6 этаже. Общaя площадь cоcтaвляeт 28.91 кв. м.Квартира без отделки. Жилой кoмплeкc располагается по адресу: Ленинградская обл., Всеволожский район, д. Новое Девяткино, ул. Главная. Высота. Новодевяткино - современный комплекс комфорт-класса в живописном пригороде Петербурга - деревне Новое Девяткино. Проект расположен в Новом Девяткино, рядом с живописной зеленой зоной, рекой Охтой и Капральевым ручьем. Транспортная доступность: 10 минут до выезда на КАД; 10 минут до ст.м. Девяткино.О проекте Высота. Новодевяткино включает в себя 4 корпуса переменной этажности от 8 до 18 этажей. Архитектура и внешний вид домов вдохновлен гармонией природы: благородная палитра фасадной штукатурки в сочетании с искусственным камнем. Изюминка проекта декоративная стена, которая обрамляет внешнюю сторону домов. В проекте представлены квартиры различных планировок от студий до семейных трехкомнатных квартир площадью от 24.74 м до 79.44 м. Высота потолков в чистовой отделке составляет 2.8 м. На выбор представлены уютные студии с двумя окнами, квартиры с гардеробными, мастер-спальнями, двумя санузлами. Все лоты будут передаваться с чистовой отделкой.Для удобства хранения сезонных вещей и спортивного инвентаря на минус первом этаже предусмотрены кладовые. Также на цокольном этаже также будут расположены подземных 2 паркинга вместимостью 188 машиномест каждый.БлагоустройствоПроект жилого комплекса включает различные функциональные зоны как для активного, так и спокойного отдыха. Для юных жителей предусмотрены игровые площадки. Для создания уютной атмосферы в жилом комплексе предусмотрены малые архитектурные формы и приватные места для встреч с соседями. Во дворе будут высажены деревья и пышные кустарники. ИнфраструктураНа данный момент в районе уже действуют детские сады, организации дополнительного образования, медицинское учреждение. Кроме того, в самом ЖК запланировано дошкольное учреждение на 88 мест, что существенно сэкономит время родителей. На первых этажах разместится зона ритейла: чтобы купить свежие булочки и кофе на завтрак или ингредиенты для ужина можно просто спуститься на первый этаж. Рядом расположены парки и зеленые зоны, где можно прогуляться, активно отдохнуть и насладиться свежим воздухом. Ключевые преимущества: подземный паркинг; дворы закрыты декоративной стеной со стороны лицевых фасадов; благоустроенная придомовая территория с детскими и спортивными площадками, зонами отдыха;; детский сад на территории жилого комплекса; разнообразные планировочные решения; безбарьерная среда; видовые квартиры; стильные входные группы.

Читать полностью
    Позвонить Написать
    4 265 860 Р54 760 $ или 46 680
    Агент
    +7 (902) 401-31-73
    Начать чат с агентом
    Похожие предложения в Новое Девяткино
    Студия Ленинградская область, Всеволожский район, д. Новое Девяткино ... - Фото 1
    Студия Ленинградская область, Всеволожский район, д. Новое Девяткино ... - Фото 2
    студия, общая площадь 22м²

    Продаётся студия в сданном доме (Корпус 1), срок сдачи: III-кв. 2024, общей площадью 22.2 кв.м., на 1 этаже. Жилой комплекс Удача - это 12-ти этажный кирпично-монолитный дом. 4 секции. Удачное расположение на территории Всеволожского района Ленинградской...
    • 22 м²
    • студия-ком
    • 1/12 эт.
    • монолит
    4 395 600 Р
    Агент
    +7 (966) Показать номер
    Посмотреть контакты
    Студия Ленинградская область, Всеволожский район, д. Новое Девяткино ... - Фото 1
    Студия Ленинградская область, Всеволожский район, д. Новое Девяткино ... - Фото 2
    студия, общая площадь 21м², жилая 16м²

    Продаётся квартира-студия 16,4 м в эко-квартале NEGA в Новом Девяткино. Квартира находится на 5 этаже пятиэтажного дома — это единственный комплекс такого формата в Девяткино, без стены из высоток за окном. Планировка позволяет разделить приватную...
    • 21 м²
    • студия-ком
    • 5/5 эт.
    4 280 000 Р
    Агент
    +7 (968) Показать номер
    Посмотреть контакты
    Студия Ленинградская область, Всеволожский район, д. Новое Девяткино ... - Фото 1
    Студия Ленинградская область, Всеволожский район, д. Новое Девяткино ... - Фото 2
    студия, общая площадь 21м², жилая 16м²

    Продаётся квартира-студия 21,3 м в эко-квартале NEGA в Новом Девяткино. Квартира находится на 3 этаже пятиэтажного дома — это единственный комплекс такого формата в Девяткино, без стены из высоток за окном. Планировка позволяет разделить приватную...
    • 21 м²
    • студия-ком
    • 3/5 эт.
    4 200 000 Р
    Агент
    +7 (968) Показать номер
    Посмотреть контакты
    Студия Ленинградская область, Всеволожский район, д. Новое Девяткино ... - Фото 1
    Студия Ленинградская область, Всеволожский район, д. Новое Девяткино ... - Фото 2
    студия, общая площадь 21м², жилая 16м²

    Продаётся квартира-студия 31,3 м в эко-квартале NEGA в Новом Девяткино. Квартира находится на 1 этаже пятиэтажного дома — это единственный комплекс такого формата в Девяткино, без стены из высоток за окном. Планировка позволяет разделить приватную...
    • 21 м²
    • студия-ком
    • 3/5 эт.
    4 200 000 Р
    Агент
    +7 (968) Показать номер
    Посмотреть контакты
    Студия Ленинградская область, Всеволожский район, д. Новое Девяткино ... - Фото 1
    Студия Ленинградская область, Всеволожский район, д. Новое Девяткино ... - Фото 2
    студия, общая площадь 21м², жилая 16м²

    Продаётся квартира-студия 33,4 м в эко-квартале NEGA в Новом Девяткино. Квартира находится на 4 этаже пятиэтажного дома — это единственный комплекс такого формата в Девяткино, без стены из высоток за окном. Планировка позволяет разделить приватную...
    • 21 м²
    • студия-ком
    • 5/5 эт.
    4 240 000 Р
    Агент
    +7 (968) Показать номер
    Посмотреть контакты

    Не нашли подходящего объявления?

    Оставьте заявку, и наши риэлторы подберут квартиру в новостройке в районе Новое Девяткино

    (0)