Реализация объекта недвижимости приостановлена

Информация об помещении

1
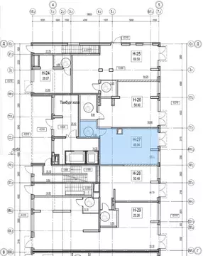
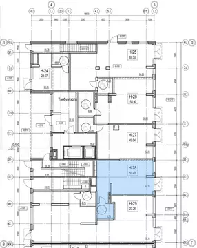
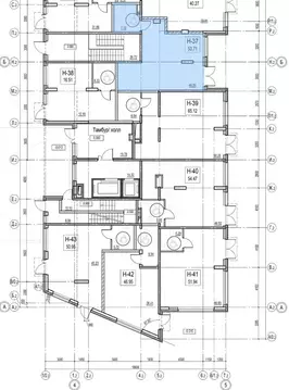
Этаж

Состояние и оснащение

Количество этажей
12
Развернуть

Помещение свободного назначения в Ленинградская область, Мурино ...

Жилой комплекс состоит из 12-этажных домов, выполненных по монолитной технологии с комбинированной отделкой фасадов. Архитектура выдержана в современном стиле. Комплекс расположен во Всеволожском районе. Ближайшая станция метро Девяткино.Налоговая: 21. Лифты: Есть. Вентиляция: Приточно-вытяжная. Кондиционирование: Сплит-системы. Безопасность: Круглосуточная охрана, Контроль доступа, Система пожаротушений, Видеонаблюдение. Парковка: Наземная. Описание помещения: Помещение оснащено всеми необходимыми коммуникациями и системами.Отдельный вход с улицы. Витринные окна. Возможно размещение вывески.Планировка: открытая. Под чистовую отделку. Высокие потолки. Высота потолка: 3.5м. Тип налогообложения: УСН. Лот

Читать полностью

    Реализация объекта недвижимости приостановлена

    Не нашли подходящего объявления?

    Оставьте заявку, и наши риэлторы подберут псн в районе Мурино

    (0)