3 800 000 Р 47 900 $ или 40 890

Информация о квартире

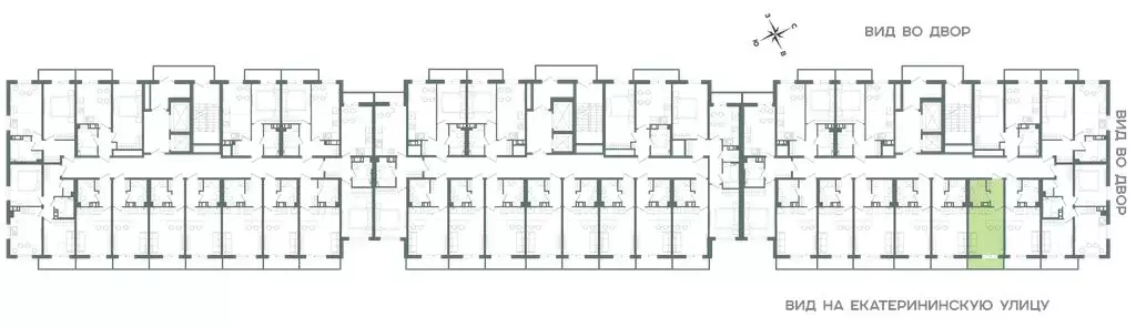
20 м2
Площадь
15 м2
Жилая
студия
Комнат
1
Этаж
20
Этажность
Развернуть
Агент
+7 (911) 768-45-17
Начать чат с агентом

Квартира-студия: Мурино, Графская улица, 11 (20.5 м)

1705306 Продается отличная студия.В квартире никто не проживал. Без ремонта, предчистовая отделка.Станция метро Девяткино 15 минут пешком, выезд на КАД 10 минут Один взрослый собственник;Во дворе школы, детский сад, множество магазинов;Хорошие, тихие соседи Есть обременение - ипотека банк Санкт-Петербург.Звоните отвечу на все интересующие Вас вопросы.

Читать полностью

    Для того, чтобы купить студию по адресу: Мурино, Графская улица, 11, позвоните по телефону +7 (911) 768-45-17. Торопитесь! Объявление №30092384341 о продаже студии опубликовано Вчера.

    Позвонить Написать
    3 800 000 Р47 900 $ или 40 890
    Агент
    +7 (911) 768-45-17
    Начать чат с агентом
    Похожие предложения
    Квартира-студия: Мурино, жилой комплекс Тридевяткино Царство, 11 (24.1 ... - Фото 1
    Квартира-студия: Мурино, жилой комплекс Тридевяткино Царство, 11 (24.1 ... - Фото 2
    студия, общая площадь 24м², жилая 16м²

    Номер объявления: 20728 - назовите его оператору.Предлагается переуступка, новая студия в ЖК Тридевяткино царство Тихий район с развитой инфраструктурой. В шаговой доступности детский сад, школа, магазины, пекарни, аптеки, салон красоты и все, что нужно...
    • 24 м²
    • студия-ком
    • 8/18 эт.
    3 700 000 Р
    Агент
    +7 (981) Показать номер
    Посмотреть контакты
    Квартира-студия: Мурино, Екатерининская улица, 11 (20.3 м) - Фото 1
    Квартира-студия: Мурино, Екатерининская улица, 11 (20.3 м) - Фото 2
    студия, общая площадь 20м²

    Цена актуальна при оплате собственными средствами, семейной ипотеке без субсидирования и военной ипотеке.В продаже от застройщика студия 20.3 кв. м с черновой отделкой и практичной планировкой для удобной организации пространства. Корпус сданПроектное...
    • 20 м²
    • студия-ком
    • 5/19 эт.
    3 900 000 Р
    Агент
    +7 (981) Показать номер
    Посмотреть контакты
    Квартира-студия: Мурино, Екатерининская улица, 11 (20.3 м) - Фото 1
    Квартира-студия: Мурино, Екатерининская улица, 11 (20.3 м) - Фото 2
    студия, общая площадь 20м²

    Цена актуальна при оплате собственными средствами, семейной ипотеке без субсидирования и военной ипотеке.В продаже от застройщика студия 20.3 кв. м с черновой отделкой и практичной планировкой для удобной организации пространства. Корпус сданПроектное...
    • 20 м²
    • студия-ком
    • 5/19 эт.
    3 900 000 Р
    Агент
    +7 (981) Показать номер
    Посмотреть контакты
    Квартира-студия: Мурино, Екатерининская улица, 11 (20.3 м) - Фото 1
    Квартира-студия: Мурино, Екатерининская улица, 11 (20.3 м) - Фото 2
    студия, общая площадь 20м²

    Цена актуальна при оплате собственными средствами, семейной ипотеке без субсидирования и военной ипотеке.В продаже от застройщика студия 20.3 кв. м с черновой отделкой и практичной планировкой для удобной организации пространства. Корпус сданПроектное...
    • 20 м²
    • студия-ком
    • 5/19 эт.
    3 900 000 Р
    Агент
    +7 (981) Показать номер
    Посмотреть контакты
    Студия Ленинградская область, Мурино Всеволожский район, ул. Шоссе в ... - Фото 1
    Студия Ленинградская область, Мурино Всеволожский район, ул. Шоссе в ... - Фото 2
    студия, общая площадь 26м², жилая 16м²

    Предлагаем Вашему вниманию студию в пешей доступности от метро. В квартире НИКТО не жил, НИКОГДА не сдавалась.О КВАРТИРЕ:+ окна выходят во двор+ комфортный этаж. Никакой пыли и шума + правильная форма позволяет сделать зонирование + свежий ремонт от...
    • 26 м²
    • студия-ком
    • 8/18 эт.
    • панельный
    3 890 000 Р
    Агент
    +7 (981) Показать номер
    Посмотреть контакты

    Не нашли подходящего объявления?

    Оставьте заявку, и наши риэлторы подберут квартиру в районе Мурино

    (0)