5 400 000 Р 68 060 $ или 58 100

Информация о квартире

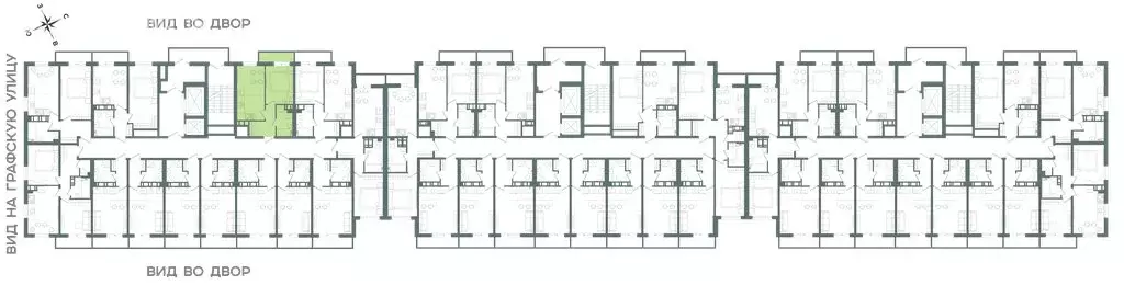
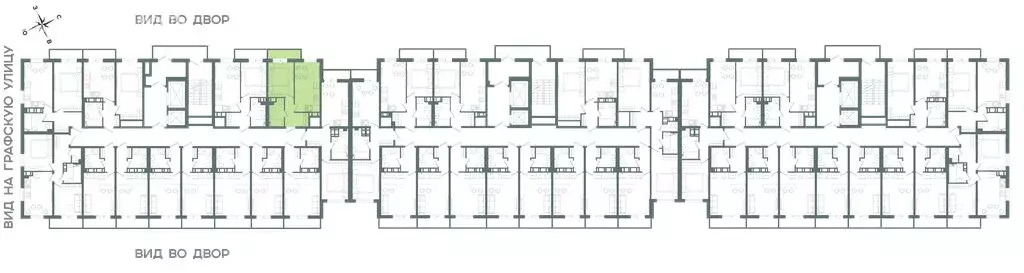
30 м2
Площадь
1
Комната
12
Этаж
16
Этажность
Развернуть
Агент
+7 (981) 844-62-31
Начать чат с агентом

1-комнатная квартира: Мурино, Графская улица, 6к1 (30.5 м)

Цена актуальна при оплате собственными средствами, семейной ипотеке без субсидирования и военной ипотеке.В продаже от застройщика 1 комнатная квартира 30.5 кв. м с черновой отделкой и практичной планировкой для удобной организации пространства. Корпус сданПроектное финансирование и контроль за строительством осуществляетАО «Банк ДОМ.РФ .Мир может стремительно меняться, предлагая новые правила игры, удивительныецифровые технологии или скоротечные тренды, но одно остается неизменным — иногданам необходимо спрятаться от мира и обрести чувство гармонии и уединения, нам важновидеть счастливые глаза любимых и знать, что у нас дома — безопасно, уютно и тепло.Жилой комплекс «Лампо именно об этом.ЖК «Лампо — современный проект комфорт-класса, строящийся на пересеченииГрафской и Екатерининской улиц, в 14 минутах ходьбы от станции метро «Девяткино в городе Мурино. Еще 20 минут по красной ветке — и вы в самом центре Петербурга.К удобству автомобилистов новая развязка КАД всего в паре кварталов от комплекса.Проект «Лампо приятно порадует будущих жильцов не только фасадами и практичностьюпланировок квартир с балконами, но и развитой инфраструктурой. В ЖК появится детский сад,благоустроенные дворы, подземный паркинг в каждом доме. Первые этажи будут отданыпод коммерческое использование, где откроются магазины и аптеки, салоны красоты ифитнес-залы, пункты выдачи заказов и зоомагазины, кафе и пекарни. Дома всегда будетсвежий хлеб, а по утрам — ароматный кофе из любимой кофейни. В современном благоустроенном городе Мурино найдется всё для удобства жителей от магазинов и кофеен до фитнес-клубов, школ, детских садов и больниц.Узнайте подробнее об о проекте и условиях покупки у наших менеджеров.

Читать полностью

    Для того, чтобы купить однокомнатную квартиру по адресу: Мурино, Графская улица, 6к1, позвоните по телефону +7 (981) 844-62-31. Торопитесь! Объявление №30092238755 о продаже однокомнатной квартиры опубликовано 05 декабря 2025.

    Позвонить Написать
    5 400 000 Р68 060 $ или 58 100
    Агент
    +7 (981) 844-62-31
    Начать чат с агентом
    Похожие предложения в Мурино
    Студия Ленинградская область, Мурино Всеволожский район, ул. ... - Фото 1
    Студия Ленинградская область, Мурино Всеволожский район, ул. ... - Фото 2
    студия, общая площадь 26м², жилая 20м²

    ID: 1915230Продается уютная студия. До метро пешком 5 минут.Отличная локация.Свой двор и загороженная территория.Остаётся вся мебель кроме дивана. Встроенная кухня. Холодильник. Стиральная машина. Телевизор. Духовка. Варочная панель. Вытяжка.Квартира...
    • 26 м²
    • студия-ком
    • 4/22 эт.
    • монолит
    5 400 000 Р
    Агент
    +7 (981) Показать номер
    Посмотреть контакты
    1-комнатная квартира: Мурино, Графская улица, 6к1 (30.2 м) - Фото 1
    1-комнатная квартира: Мурино, Графская улица, 6к1 (30.2 м) - Фото 2
    1-комнатная квартира, общая площадь 30м²

    Цена актуальна при оплате собственными средствами, семейной ипотеке без субсидирования и военной ипотеке.В продаже от застройщика 1 комнатная квартира 30.2 кв. м с черновой отделкой и практичной планировкой для удобной организации пространства. Корпус...
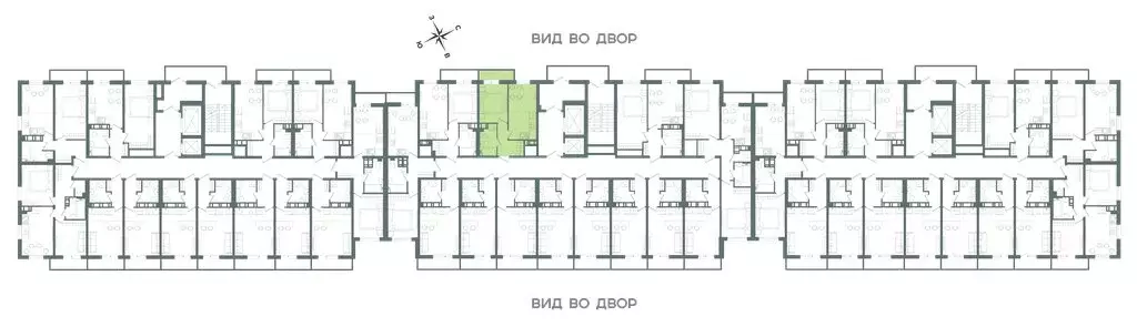
    • 30 м²
    • 1-ком
    • 14/16 эт.
    5 360 000 Р
    Агент
    +7 (981) Показать номер
    Посмотреть контакты
    1-комнатная квартира: Мурино, Графская улица, 6к1 (30.3 м) - Фото 1
    1-комнатная квартира: Мурино, Графская улица, 6к1 (30.3 м) - Фото 2
    1-комнатная квартира, общая площадь 30м²

    Цена актуальна при оплате собственными средствами, семейной ипотеке без субсидирования и военной ипотеке.В продаже от застройщика 1 комнатная квартира 30.3 кв. м с черновой отделкой и практичной планировкой для удобной организации пространства. Корпус...
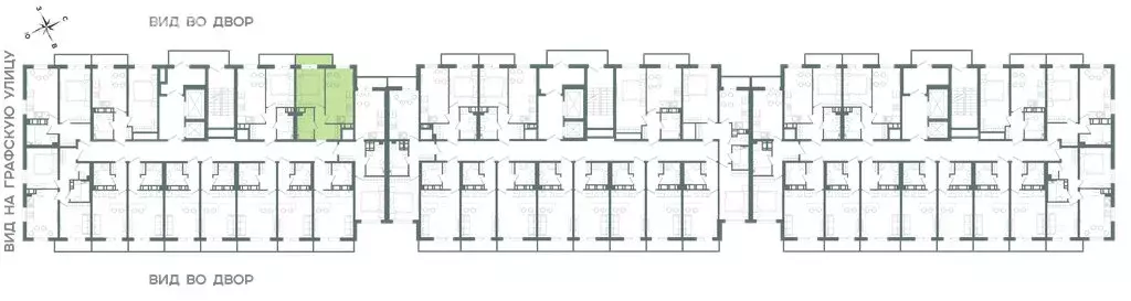
    • 30 м²
    • 1-ком
    • 13/16 эт.
    5 400 000 Р
    Агент
    +7 (981) Показать номер
    Посмотреть контакты
    1-комнатная квартира: Мурино, Графская улица, 6к1 (30.4 м) - Фото 1
    1-комнатная квартира: Мурино, Графская улица, 6к1 (30.4 м) - Фото 2
    1-комнатная квартира, общая площадь 30м²

    Цена актуальна при оплате собственными средствами, семейной ипотеке без субсидирования и военной ипотеке.В продаже от застройщика 1 комнатная квартира 30.4 кв. м с черновой отделкой и практичной планировкой для удобной организации пространства. Корпус...
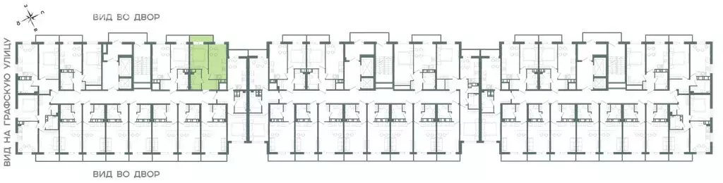
    • 30 м²
    • 1-ком
    • 13/16 эт.
    5 400 000 Р
    Агент
    +7 (981) Показать номер
    Посмотреть контакты
    1-комнатная квартира: Мурино, Графская улица, 6к1 (30.5 м) - Фото 1
    1-комнатная квартира: Мурино, Графская улица, 6к1 (30.5 м) - Фото 2
    1-комнатная квартира, общая площадь 30м²

    Цена актуальна при оплате собственными средствами, семейной ипотеке без субсидирования и военной ипотеке.В продаже от застройщика 1 комнатная квартира 30.5 кв. м с черновой отделкой и практичной планировкой для удобной организации пространства. Корпус...
    • 30 м²
    • 1-ком
    • 12/16 эт.
    5 400 000 Р
    Агент
    +7 (981) Показать номер
    Посмотреть контакты

    Не нашли подходящего объявления?

    Оставьте заявку, и наши риэлторы подберут квартиру в районе Мурино

    (0)