7 270 000 Р 95 540 $ или 81 960

Информация о квартире

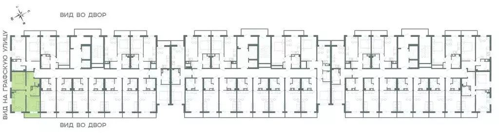
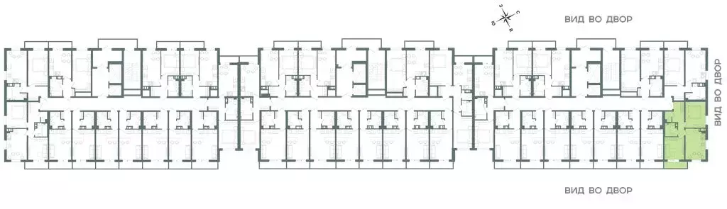
42 м2
Площадь
2
Комнаты
7
Этаж
16
Этажность
Развернуть
Агент
+7 (981) 844-62-31
Начать чат с агентом

2-комнатная квартира: Мурино, Графская улица, 6к1 (42.6 м)

Цена актуальна при оплате собственными средствами, семейной ипотеке без субсидирования и военной ипотеке.В продаже от застройщика 2 комнатная квартира 42.6 кв. м с черновой отделкой и практичной планировкой для удобной организации пространства. Корпус сданПроектное финансирование и контроль за строительством осуществляетАО «Банк ДОМ.РФ .Мир может стремительно меняться, предлагая новые правила игры, удивительныецифровые технологии или скоротечные тренды, но одно остается неизменным — иногданам необходимо спрятаться от мира и обрести чувство гармонии и уединения, нам важновидеть счастливые глаза любимых и знать, что у нас дома — безопасно, уютно и тепло.Жилой комплекс «Лампо именно об этом.ЖК «Лампо — современный проект комфорт-класса, строящийся на пересеченииГрафской и Екатерининской улиц, в 14 минутах ходьбы от станции метро «Девяткино в городе Мурино. Еще 20 минут по красной ветке — и вы в самом центре Петербурга.К удобству автомобилистов новая развязка КАД всего в паре кварталов от комплекса.Проект «Лампо приятно порадует будущих жильцов не только фасадами и практичностьюпланировок квартир с балконами, но и развитой инфраструктурой. В ЖК появится детский сад,благоустроенные дворы, подземный паркинг в каждом доме. Первые этажи будут отданыпод коммерческое использование, где откроются магазины и аптеки, салоны красоты ифитнес-залы, пункты выдачи заказов и зоомагазины, кафе и пекарни. Дома всегда будетсвежий хлеб, а по утрам — ароматный кофе из любимой кофейни. В современном благоустроенном городе Мурино найдется всё для удобства жителей от магазинов и кофеен до фитнес-клубов, школ, детских садов и больниц.Узнайте подробнее об о проекте и условиях покупки у наших менеджеров.

Читать полностью

    Для того, чтобы купить двухкомнатную квартиру по адресу: Мурино, Графская улица, 6к1, позвоните по телефону +7 (981) 844-62-31. Торопитесь! Объявление №30092070981 о продаже двухкомнатной квартиры опубликовано 27 ноября 2025.

    Позвонить Написать
    7 270 000 Р95 540 $ или 81 960
    Агент
    +7 (981) 844-62-31
    Начать чат с агентом
    Похожие предложения в Мурино
    1-к кв. Ленинградская область, Мурино Всеволожский район, ул. ... - Фото 1
    1-к кв. Ленинградская область, Мурино Всеволожский район, ул. ... - Фото 2
    1-комнатная квартира, общая площадь 37м², жилая 16м², кухня 10м²

    Арт.. Продаётся 1-комнатная квартира 37.9 кв.м. в ЖК Виктория Кратко о квартире:Кухня 10,4 м с выходом на 5-ти метровую лоджиюЕсть отдельная гардеробнаяОкна во двор15-й этаж с просторным видомСостояние квартиры хорошееВысота потолков 2.75 м. Кратко...
    • 37 м²
    • 1-ком
    • 15/17 эт.
    • монолит
    7 400 000 Р
    Агент
    +7 (981) Показать номер
    Посмотреть контакты
    2-комнатная квартира: Мурино, Графская улица, 6к1 (42.5 м) - Фото 1
    2-комнатная квартира: Мурино, Графская улица, 6к1 (42.5 м) - Фото 2
    2-комнатная квартира, общая площадь 42м²

    Цена актуальна при оплате собственными средствами, семейной ипотеке без субсидирования и военной ипотеке.В продаже от застройщика 2 комнатная квартира 42.5 кв. м с черновой отделкой и практичной планировкой для удобной организации пространства. Корпус...
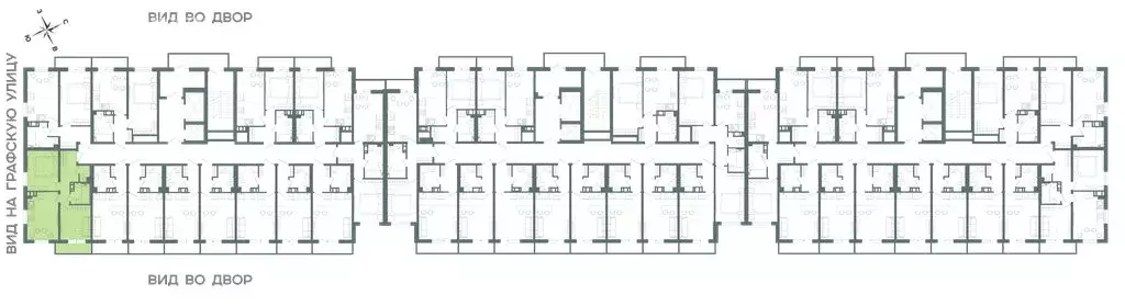
    • 42 м²
    • 2-ком
    • 6/16 эт.
    7 300 000 Р
    Агент
    +7 (981) Показать номер
    Посмотреть контакты
    2-комнатная квартира: Мурино, Графская улица, 6к1 (42.5 м) - Фото 1
    2-комнатная квартира: Мурино, Графская улица, 6к1 (42.5 м) - Фото 2
    2-комнатная квартира, общая площадь 42м²

    Цена актуальна при оплате собственными средствами, семейной ипотеке без субсидирования и военной ипотеке.В продаже от застройщика 2 комнатная квартира 42.5 кв. м с черновой отделкой и практичной планировкой для удобной организации пространства. Корпус...
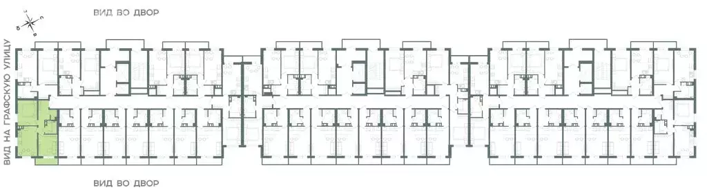
    • 42 м²
    • 2-ком
    • 7/16 эт.
    7 320 000 Р
    Агент
    +7 (981) Показать номер
    Посмотреть контакты
    2-комнатная квартира: Мурино, Графская улица, 6к1 (42.6 м) - Фото 1
    2-комнатная квартира: Мурино, Графская улица, 6к1 (42.6 м) - Фото 2
    2-комнатная квартира, общая площадь 42м²

    Цена актуальна при оплате собственными средствами, семейной ипотеке без субсидирования и военной ипотеке.В продаже от застройщика 2 комнатная квартира 42.6 кв. м с черновой отделкой и практичной планировкой для удобной организации пространства. Корпус...
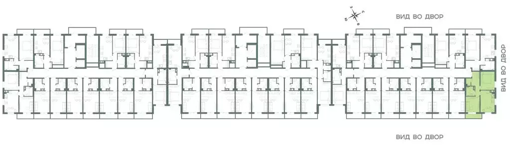
    • 42 м²
    • 2-ком
    • 9/16 эт.
    7 220 000 Р
    Агент
    +7 (981) Показать номер
    Посмотреть контакты
    2-комнатная квартира: Мурино, Графская улица, 6к1 (42.6 м) - Фото 1
    2-комнатная квартира: Мурино, Графская улица, 6к1 (42.6 м) - Фото 2
    2-комнатная квартира, общая площадь 42м²

    Цена актуальна при оплате собственными средствами, семейной ипотеке без субсидирования и военной ипотеке.В продаже от застройщика 2 комнатная квартира 42.6 кв. м с черновой отделкой и практичной планировкой для удобной организации пространства. Корпус...
    • 42 м²
    • 2-ком
    • 8/16 эт.
    7 220 000 Р
    Агент
    +7 (981) Показать номер
    Посмотреть контакты

    Не нашли подходящего объявления?

    Оставьте заявку, и наши риэлторы подберут квартиру в районе Мурино

    (0)