6 300 000 Р 78 040 $ или 68 030

Информация о квартире

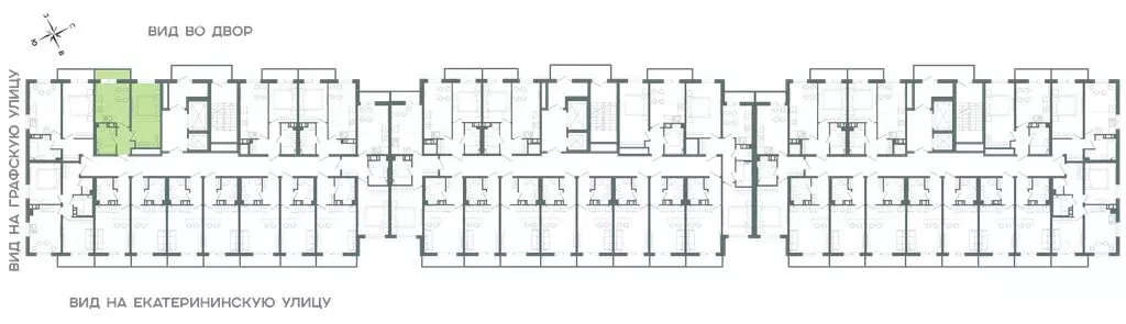
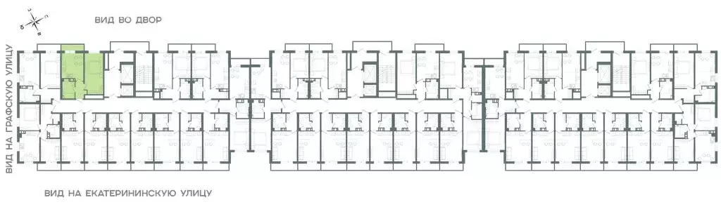
34 м2
Площадь
1
Комната
7
Этаж
19
Этажность
Развернуть
Агент
+7 (981) 844-62-31
Начать чат с агентом

1-комнатная квартира: Мурино, Екатерининская улица, 11 (34.8 м)

Цена актуальна при оплате собственными средствами, семейной ипотеке без субсидирования и военной ипотеке.В продаже от застройщика 1 комнатная квартира 34.8 кв. м с предчистовой отделкой white box и практичной планировкой для удобной организации пространства. Корпус сданПроектное финансирование и контроль за строительством осуществляетАО «Банк ДОМ.РФ .Мир может стремительно меняться, предлагая новые правила игры, удивительныецифровые технологии или скоротечные тренды, но одно остается неизменным — иногданам необходимо спрятаться от мира и обрести чувство гармонии и уединения, нам важновидеть счастливые глаза любимых и знать, что у нас дома — безопасно, уютно и тепло.Жилой комплекс «Лампо именно об этом.ЖК «Лампо — современный проект комфорт-класса, строящийся на пересеченииГрафской и Екатерининской улиц, в 14 минутах ходьбы от станции метро «Девяткино в городе Мурино. Еще 20 минут по красной ветке — и вы в самом центре Петербурга.К удобству автомобилистов новая развязка КАД всего в паре кварталов от комплекса.Проект «Лампо приятно порадует будущих жильцов не только фасадами и практичностьюпланировок квартир с балконами, но и развитой инфраструктурой. В ЖК появится детский сад,благоустроенные дворы, подземный паркинг в каждом доме. Первые этажи будут отданыпод коммерческое использование, где откроются магазины и аптеки, салоны красоты ифитнес-залы, пункты выдачи заказов и зоомагазины, кафе и пекарни. Дома всегда будетсвежий хлеб, а по утрам — ароматный кофе из любимой кофейни. В современном благоустроенном городе Мурино найдется всё для удобства жителей от магазинов и кофеен до фитнес-клубов, школ, детских садов и больниц.Узнайте подробнее об о проекте и условиях покупки у наших менеджеров.

Читать полностью

    Для того, чтобы купить однокомнатную квартиру по адресу: Мурино, Екатерининская улица, 11, позвоните по телефону +7 (981) 844-62-31. Торопитесь! Объявление №30091877626 о продаже однокомнатной квартиры опубликовано 18 ноября 2025.

    Позвонить Написать
    6 300 000 Р78 040 $ или 68 030
    Агент
    +7 (981) 844-62-31
    Начать чат с агентом
    Похожие предложения
    1-комнатная квартира: Мурино, Екатерининская улица, 11 (35.2 м) - Фото 1
    1-комнатная квартира: Мурино, Екатерининская улица, 11 (35.2 м) - Фото 2
    1-комнатная квартира, общая площадь 35м²

    Цена актуальна при оплате собственными средствами, семейной ипотеке без субсидирования и военной ипотеке.В продаже от застройщика 1 комнатная квартира 35.2 кв. м с предчистовой отделкой white box и практичной планировкой для удобной организации пространства....
    • 35 м²
    • 1-ком
    • 9/19 эт.
    6 400 000 Р
    Агент
    +7 (981) Показать номер
    Посмотреть контакты
    1-комнатная квартира: Мурино, Екатерининская улица, 11 (35.1 м) - Фото 1
    1-комнатная квартира: Мурино, Екатерининская улица, 11 (35.1 м) - Фото 2
    1-комнатная квартира, общая площадь 35м²

    Цена актуальна при оплате собственными средствами, семейной ипотеке без субсидирования и военной ипотеке.В продаже от застройщика 1 комнатная квартира 35.1 кв. м с предчистовой отделкой white box и практичной планировкой для удобной организации пространства....
    • 35 м²
    • 1-ком
    • 7/19 эт.
    6 400 000 Р
    Агент
    +7 (981) Показать номер
    Посмотреть контакты
    1-комнатная квартира: Мурино, Екатерининская улица, 11 (34.8 м) - Фото 1
    1-комнатная квартира: Мурино, Екатерининская улица, 11 (34.8 м) - Фото 2
    1-комнатная квартира, общая площадь 34м²

    Цена актуальна при оплате собственными средствами, семейной ипотеке без субсидирования и военной ипотеке.В продаже от застройщика 1 комнатная квартира 34.8 кв. м с предчистовой отделкой white box и практичной планировкой для удобной организации пространства....
    • 34 м²
    • 1-ком
    • 9/19 эт.
    6 200 000 Р
    Агент
    +7 (981) Показать номер
    Посмотреть контакты
    1-комнатная квартира: Мурино, Екатерининская улица, 11 (34.8 м) - Фото 1
    1-комнатная квартира: Мурино, Екатерининская улица, 11 (34.8 м) - Фото 2
    1-комнатная квартира, общая площадь 34м²

    Цена актуальна при оплате собственными средствами, семейной ипотеке без субсидирования и военной ипотеке.В продаже от застройщика 1 комнатная квартира 34.8 кв. м с предчистовой отделкой white box и практичной планировкой для удобной организации пространства....
    • 34 м²
    • 1-ком
    • 9/19 эт.
    6 200 000 Р
    Агент
    +7 (981) Показать номер
    Посмотреть контакты
    1-к кв. Ленинградская область, Мурино Всеволожский район, ул. Шоссе в ... - Фото 1
    1-к кв. Ленинградская область, Мурино Всеволожский район, ул. Шоссе в ... - Фото 2
    1-комнатная квартира, общая площадь 32м², жилая 15м², кухня 10м²

    Описание позже чуть чуть чуть чуть позже
    • 32 м²
    • 1-ком
    • 15/18 эт.
    6 200 000 Р
    Агент
    +7 (981) Показать номер
    Посмотреть контакты

    Не нашли подходящего объявления?

    Оставьте заявку, и наши риэлторы подберут квартиру в районе Мурино

    (0)