3 900 000 Р 49 350 $ или 43 060

Информация о квартире

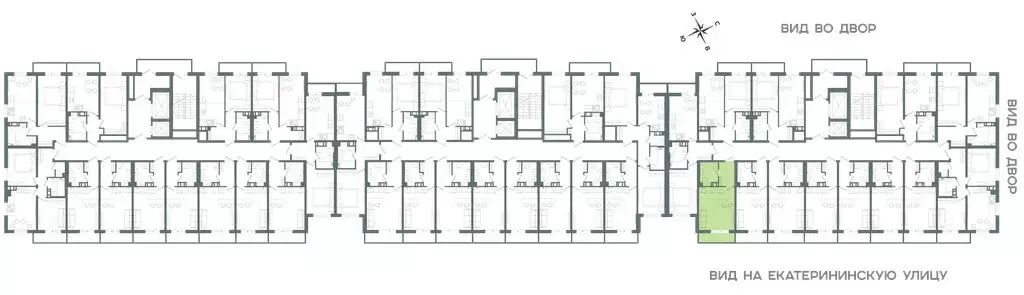
23 м2
Площадь
студия
Комнат
6
Этаж
19
Этажность
Развернуть
Агент
+7 (981) 988-04-71
Начать чат с агентом

Квартира-студия: Мурино, Екатерининская улица, 11 (23.2 м)

Цена актуальна при оплате собственными средствами, семейной ипотеке без субсидирования и военной ипотеке.В продаже от застройщика студия 23.2 кв. м с черновой отделкой и практичной планировкой для удобной организации пространства. Корпус сданПроектное финансирование и контроль за строительством осуществляетАО «Банк ДОМ.РФ .Мир может стремительно меняться, предлагая новые правила игры, удивительныецифровые технологии или скоротечные тренды, но одно остается неизменным — иногданам необходимо спрятаться от мира и обрести чувство гармонии и уединения, нам важновидеть счастливые глаза любимых и знать, что у нас дома — безопасно, уютно и тепло.Жилой комплекс «Лампо именно об этом.ЖК «Лампо — современный проект комфорт-класса, строящийся на пересеченииГрафской и Екатерининской улиц, в 14 минутах ходьбы от станции метро «Девяткино в городе Мурино. Еще 20 минут по красной ветке — и вы в самом центре Петербурга.К удобству автомобилистов новая развязка КАД всего в паре кварталов от комплекса.Проект «Лампо приятно порадует будущих жильцов не только фасадами и практичностьюпланировок квартир с балконами, но и развитой инфраструктурой. В ЖК появится детский сад,благоустроенные дворы, подземный паркинг в каждом доме. Первые этажи будут отданыпод коммерческое использование, где откроются магазины и аптеки, салоны красоты ифитнес-залы, пункты выдачи заказов и зоомагазины, кафе и пекарни. Дома всегда будетсвежий хлеб, а по утрам — ароматный кофе из любимой кофейни. В современном благоустроенном городе Мурино найдется всё для удобства жителей от магазинов и кофеен до фитнес-клубов, школ, детских садов и больниц.Узнайте подробнее об о проекте и условиях покупки у наших менеджеров.

Читать полностью

    Для того, чтобы купить студию по адресу: Мурино, Екатерининская улица, 11, позвоните по телефону +7 (981) 988-04-71. Торопитесь! Объявление №30091707795 о продаже студии опубликовано 10 ноября 2025.

    Позвонить Написать
    3 900 000 Р49 350 $ или 43 060
    Агент
    +7 (981) 988-04-71
    Начать чат с агентом
    Похожие предложения в Мурино
    Квартира-студия: Мурино, Екатерининская улица, 11 (23.1 м) - Фото 1
    Квартира-студия: Мурино, Екатерининская улица, 11 (23.1 м) - Фото 2
    студия, общая площадь 23м²

    Цена актуальна при оплате собственными средствами, семейной ипотеке без субсидирования и военной ипотеке.В продаже от застройщика студия 23.1 кв. м с черновой отделкой и практичной планировкой для удобной организации пространства. Корпус сданПроектное...
    • 23 м²
    • студия-ком
    • 6/19 эт.
    4 000 000 Р
    Агент
    +7 (981) Показать номер
    Посмотреть контакты
    Квартира-студия: Мурино, Екатерининская улица, 11 (23 м) - Фото 1
    Квартира-студия: Мурино, Екатерининская улица, 11 (23 м) - Фото 2
    студия, общая площадь 23м²

    Цена актуальна при оплате собственными средствами, семейной ипотеке без субсидирования и военной ипотеке.В продаже от застройщика студия 23 кв. м с черновой отделкой и практичной планировкой для удобной организации пространства. Корпус сданПроектное...
    • 23 м²
    • студия-ком
    • 5/19 эт.
    4 000 000 Р
    Агент
    +7 (981) Показать номер
    Посмотреть контакты
    Квартира-студия: Мурино, Екатерининская улица, 11 (23 м) - Фото 1
    Квартира-студия: Мурино, Екатерининская улица, 11 (23 м) - Фото 2
    студия, общая площадь 23м²

    Цена актуальна при оплате собственными средствами, семейной ипотеке без субсидирования и военной ипотеке.В продаже от застройщика студия 23 кв. м с черновой отделкой и практичной планировкой для удобной организации пространства. Корпус сданПроектное...
    • 23 м²
    • студия-ком
    • 4/19 эт.
    4 000 000 Р
    Агент
    +7 (981) Показать номер
    Посмотреть контакты
    Квартира-студия: Мурино, Екатерининская улица, 11 (23 м) - Фото 1
    Квартира-студия: Мурино, Екатерининская улица, 11 (23 м) - Фото 2
    студия, общая площадь 23м²

    Цена актуальна при оплате собственными средствами, семейной ипотеке без субсидирования и военной ипотеке.В продаже от застройщика студия 23 кв. м с черновой отделкой и практичной планировкой для удобной организации пространства. Корпус сданПроектное...
    • 23 м²
    • студия-ком
    • 5/19 эт.
    4 000 000 Р
    Агент
    +7 (981) Показать номер
    Посмотреть контакты
    Квартира-студия: Мурино, Екатерининская улица, 11 (23.2 м) - Фото 1
    Квартира-студия: Мурино, Екатерининская улица, 11 (23.2 м) - Фото 2
    студия, общая площадь 23м²

    Цена актуальна при оплате собственными средствами, семейной ипотеке без субсидирования и военной ипотеке.В продаже от застройщика студия 23.2 кв. м с черновой отделкой и практичной планировкой для удобной организации пространства. Корпус сданПроектное...
    • 23 м²
    • студия-ком
    • 4/19 эт.
    4 000 000 Р
    Агент
    +7 (981) Показать номер
    Посмотреть контакты

    Не нашли подходящего объявления?

    Оставьте заявку, и наши риэлторы подберут квартиру в районе Мурино

    (0)