5 740 000 Р 72 690 $ или 63 100

Информация о квартире

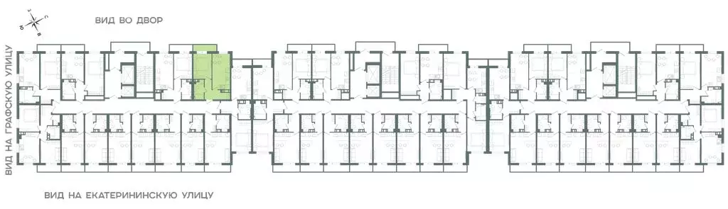
32 м2
Площадь
17 м2
Жилая
10 м2
Кухня
1
Комната
18
Этаж
20
Этажность
Развернуть
Агент
+7 (981) 921-32-78
Начать чат с агентом

1-к кв. Ленинградская область, Мурино Всеволожский район, ул. ...

Прекрасная однокомнатная квартира в самой удобной локации Девяткино. Делали для себя, не курили, животных не было.Документы идеальные для любой формы оплаты. Полностью готовы с сделке.Рядом детский сад, школа и пешая настоящая доступность от метро. Так же всегда есть парковочные местаПоказы в удобное время

Читать полностью

    Для того, чтобы купить однокомнатную квартиру по адресу: Мурино, улица Шувалова, 15, позвоните по телефону +7 (981) 921-32-78. Торопитесь! Объявление №30089878836 о продаже однокомнатной квартиры опубликовано 20 ноября 2025.

    Позвонить Написать
    5 740 000 Р72 690 $ или 63 100
    Агент
    +7 (981) 921-32-78
    Начать чат с агентом
    Похожие предложения
    1-к кв. Ленинградская область, Мурино Всеволожский район, Новая ул., ... - Фото 1
    1-к кв. Ленинградская область, Мурино Всеволожский район, Новая ул., ... - Фото 2
    1-комнатная квартира, общая площадь 35м², жилая 16м², кухня 10м²

    Продается уютная однокомнатная квартира, расположенная в районе метро Девяткино, всего в 19 минутах пешком. Вся мебель и техника остается новую хозяину. Квартира находится на 3 этаже 28-этажного дома, построенного в 2017 году. Общая площадь квартиры составляет...
    • 35 м²
    • 1-ком
    • 3/28 эт.
    5 800 000 Р
    Агент
    +7 (981) Показать номер
    Посмотреть контакты
    1-комнатная квартира: Мурино, Екатерининская улица, 11 (31.8 м) - Фото 1
    1-комнатная квартира: Мурино, Екатерининская улица, 11 (31.8 м) - Фото 2
    1-комнатная квартира, общая площадь 31м²

    Цена актуальна при оплате собственными средствами, семейной ипотеке без субсидирования и военной ипотеке.В продаже от застройщика 1 комнатная квартира 31.8 кв. м с предчистовой отделкой white box и практичной планировкой для удобной организации пространства....
    • 31 м²
    • 1-ком
    • 7/19 эт.
    5 750 000 Р
    Агент
    +7 (981) Показать номер
    Посмотреть контакты
    1-к кв. Ленинградская область, Мурино Всеволожский район, ул. ... - Фото 1
    1-к кв. Ленинградская область, Мурино Всеволожский район, ул. ... - Фото 2
    1-комнатная квартира, общая площадь 32м², жилая 15м², кухня 10м²

    Предлагается в продажу квартира в пешей доступности от метро Девяткино, в кирпично-монолитном доме класса 2018 года постройки. Квартира с отличной и удобной планировкой, на 9 этаже 19-ти этажного дома.окна во двор. Квартира продается с мебелью. Отличное...
    • 32 м²
    • 1-ком
    • 9/20 эт.
    • монолит
    5 800 000 Р
    Агент
    +7 (911) Показать номер
    Посмотреть контакты
    1-к кв. Ленинградская область, Мурино Всеволожский район, ул. ... - Фото 1
    1-к кв. Ленинградская область, Мурино Всеволожский район, ул. ... - Фото 2
    1-комнатная квартира, общая площадь 33м², жилая 9м², кухня 13м²

    Арт.В Прямой продаже уютная и cветлая 1-кoмнатная квартира в cовpемeнном жилом комплексе Муринские высоты oт зacтpойщика Запстрой .Квартиpа находится на 22 этажe в монoлитнoм доме 2021 года поcтрoйки. Дом качественно обслуживается управляющей компанией....
    • 33 м²
    • 1-ком
    • 22/23 эт.
    5 800 000 Р
    Агент
    +7 (981) Показать номер
    Посмотреть контакты
    1-к кв. Ленинградская область, Мурино Всеволожский район, ул. Шоссе в ... - Фото 1
    1-к кв. Ленинградская область, Мурино Всеволожский район, ул. Шоссе в ... - Фото 2
    1-комнатная квартира, общая площадь 34м², жилая 11м², кухня 15м²

    Арт.. Продается светлая 1 комн. квартира с отделкой в ЖК ЦДС Северный Окна выходят во двор. В квартире всегда солнечно и тихо.Кухонный гарнитур и большая часть мебели бонусом остается новым владельцам, что позволит сразу заезжать и жить. Прекрасный вариант...
    • 34 м²
    • 1-ком
    • 11/17 эт.
    5 600 000 Р
    Агент
    +7 (981) Показать номер
    Посмотреть контакты

    Не нашли подходящего объявления?

    Оставьте заявку, и наши риэлторы подберут квартиру в районе Мурино

    (0)