3 401 000 Р 41 980 $ или 36 210

Информация о квартире

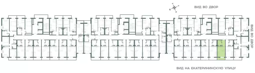
20 м2
Площадь
студия
Комнат
6
Этаж
16
Этажность
Развернуть
Агент
+7 (981) 081-13-74
Начать чат с агентом

Студия Ленинградская область, Мурино Всеволожский район, ул. ...

Цена актуальна при 100 оплате собственными средствами или любой ипотечной программе без субсидирования. В продаже от застройщика студия 20.3 кв. м с черновой отделкой и практичной планировкой для удобной организации пространства. Корпус сданМир может стремительно меняться, предлагая новые правила игры, удивительные цифровые технологии или скоротечные тренды, но одно остается неизменным — иногда нам необходимо спрятаться от мира и обрести чувство гармонии и уединения, нам важно видеть счастливые глаза любимых и знать, что у нас дома — безопасно, уютно и тепло. Жилой комплекс Лампо именно об этом. ЖК Лампо — современный проект комфорт-класса, построенный на пересечении Графской и Екатерининской улиц, в 15 минутах ходьбы от станции метро Девяткино в городе Мурино. Еще 20 минут по красной ветке — и вы в самом центре Петербурга. К удобству автомобилистов новая развязка КАД всего в паре кварталов от комплекса. Жилой комплекс Лампо — это 4 дома высотой от 16 до 19 этажей. Архитекторы спроектировали минималистичные фасады, лоджии и витражное остекление. В проекте представлены студии и квартиры с 1 и 2 комнатами, везде — застеклённые лоджии и комнаты правильной прямоугольной формы. Застройщик предлагает жилые помещения как с черновой, так и с предчистовой отделкой White Box. Проект Лампо приятно порадует будущих жильцов не только фасадами и практичностью планировок квартир, но и развитой инфраструктурой. В ЖК предусмотрен детский сад, благоустроенные дворы и подземный паркинг в каждом доме. Первые этажи отданы под коммерческое использование, где уже начинают открываться магазины и аптеки, салоны красоты и фитнес-залы, пункты выдачи заказов и зоомагазины, кафе и пекарни. Дома всегда будет свежий хлеб, а по утрам — ароматный кофе из любимой кофейни. В современном благоустроенном городе Мурино найдется всё для удобства жителей от магазинов и кофеен до фитнес-клубов, школ, детских садов и больниц. Проектное финансирование и контроль за строительством осуществлял АО Банк ДОМ.РФ .

Читать полностью
    Позвонить Написать
    3 401 000 Р41 980 $ или 36 210
    Агент
    +7 (981) 081-13-74
    Начать чат с агентом
    Похожие предложения в Мурино
    Студия Ленинградская область, Мурино Всеволожский район, ул. ... - Фото 1
    Студия Ленинградская область, Мурино Всеволожский район, ул. ... - Фото 2
    студия, общая площадь 20м²

    Цена актуальна при 100 оплате собственными средствами или любой ипотечной программе без субсидирования. В продаже от застройщика студия 20.4 кв. м с черновой отделкой и практичной планировкой для удобной организации пространства. Корпус сданМир...
    • 20 м²
    • студия-ком
    • 6/16 эт.
    3 401 000 Р
    Агент
    +7 (981) Показать номер
    Посмотреть контакты
    Студия Ленинградская область, Мурино Всеволожский район, ул. ... - Фото 1
    Студия Ленинградская область, Мурино Всеволожский район, ул. ... - Фото 2
    студия, общая площадь 20м²

    Цена актуальна при 100 оплате собственными средствами или любой ипотечной программе без субсидирования. В продаже от застройщика студия 20.3 кв. м с черновой отделкой и практичной планировкой для удобной организации пространства. Корпус сданМир...
    • 20 м²
    • студия-ком
    • 6/16 эт.
    3 401 000 Р
    Агент
    +7 (981) Показать номер
    Посмотреть контакты
    Студия Ленинградская область, Мурино Всеволожский район, ул. ... - Фото 1
    Студия Ленинградская область, Мурино Всеволожский район, ул. ... - Фото 2
    студия, общая площадь 20м²

    Цена актуальна при 100 оплате собственными средствами или любой ипотечной программе без субсидирования. В продаже от застройщика студия 20.3 кв. м с черновой отделкой и практичной планировкой для удобной организации пространства. Корпус сданМир...
    • 20 м²
    • студия-ком
    • 7/16 эт.
    3 401 000 Р
    Агент
    +7 (981) Показать номер
    Посмотреть контакты
    Студия Ленинградская область, Мурино Всеволожский район, ул. ... - Фото 1
    Студия Ленинградская область, Мурино Всеволожский район, ул. ... - Фото 2
    студия, общая площадь 20м²

    Цена актуальна при 100 оплате собственными средствами или любой ипотечной программе без субсидирования. В продаже от застройщика студия 20.4 кв. м с черновой отделкой и практичной планировкой для удобной организации пространства. Корпус сданМир...
    • 20 м²
    • студия-ком
    • 7/16 эт.
    3 401 000 Р
    Агент
    +7 (981) Показать номер
    Посмотреть контакты
    Студия Ленинградская область, Мурино Всеволожский район, ул. ... - Фото 1
    Студия Ленинградская область, Мурино Всеволожский район, ул. ... - Фото 2
    студия, общая площадь 20м²

    Цена актуальна при 100 оплате собственными средствами или любой ипотечной программе без субсидирования. В продаже от застройщика студия 20.2 кв. м с черновой отделкой и практичной планировкой для удобной организации пространства. Корпус сданМир...
    • 20 м²
    • студия-ком
    • 7/16 эт.
    3 401 000 Р
    Агент
    +7 (981) Показать номер
    Посмотреть контакты

    Не нашли подходящего объявления?

    Оставьте заявку, и наши риэлторы подберут квартиру в новостройке в районе Мурино

    (0)